Situated within a quiet cul-de-sac in North Baddesley, this delightful one bedroom cluster house offers spacious rooms throughout. The house is presented in good condition, ensuring that you can move in with ease and start enjoying your new home right away. The ground floor benefits a sitting/dining area and a modern kitchen. The first floor provides a double bedroom with built in wardrobes as well as a tidy bathroom. Externally the property benefits a parking space and large shingled front garden. This home has no forward chain.
Accommodation -
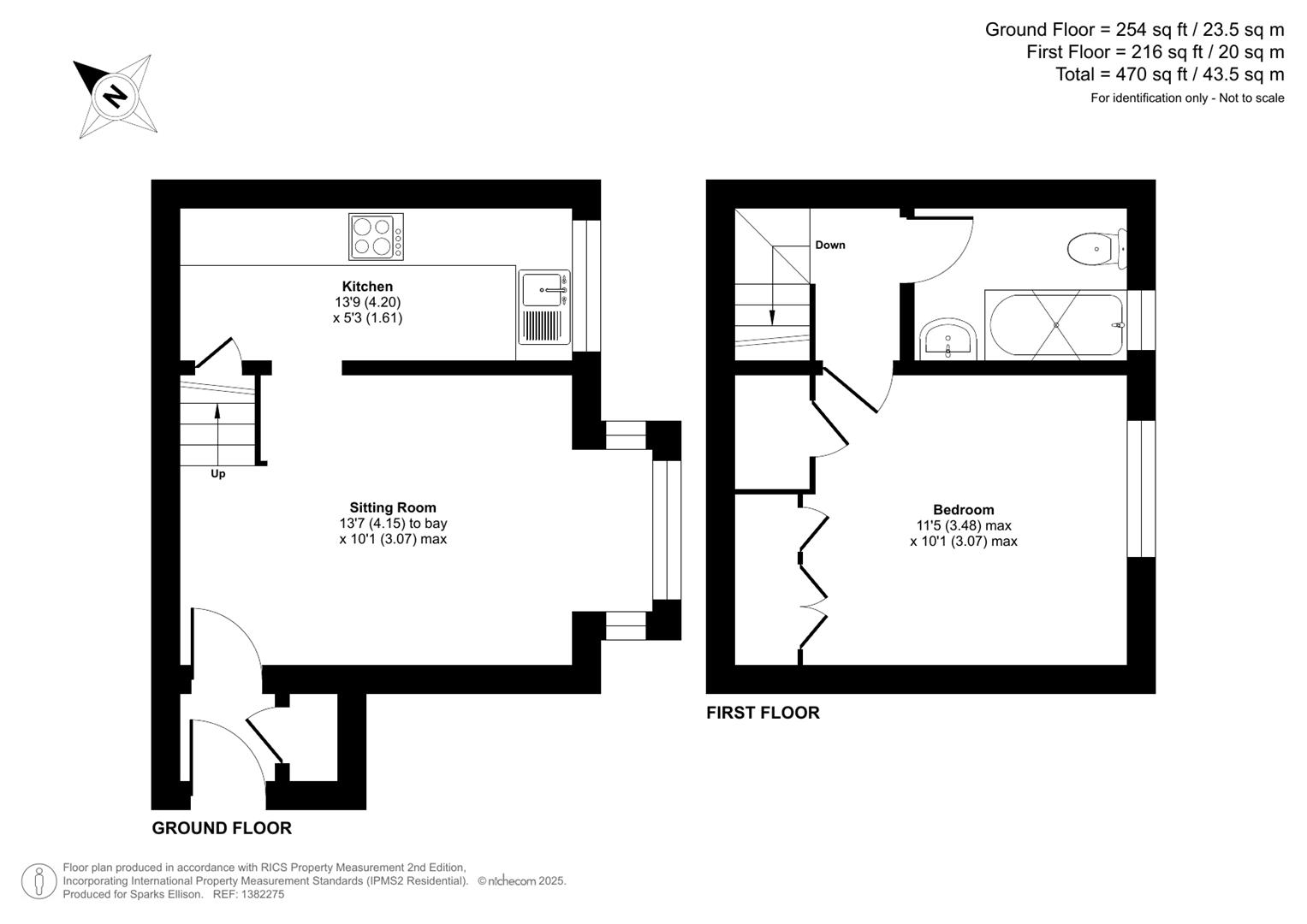
Ground Floor -
Porch: - Storage cupboard, accommodating fuse board and meter.
Sitting/Dining Room: - 13'7" to bay x 10'1" max (4.15m x 3.07m) Bay window.
Kitchen: - 13'9" x 5'3" (4.20m x 1.61m) Range of units including gas hob, electric oven, fridge, freezer and space for washing machine. Under stair cupboard.
First Floor -
Landing: - Access to loft space.
Bedroom 1: - 11'5" x 10'1" (3.48m x 3.07m) Built in wardrobes and airing cupboard above stairs.
Bathroom: - White suite comprising bath with shower over, wash basin, and wc.
Outside -
Other Information -
Tenure: - Freehold
Approximate Age: - 1983
Approximate Area: - 470sqft/43.5sqm
Sellers Position: - No forward chain
Heating: - Gas central heating
Windows: - UPVC double glazing
Local Council: - Test Valley Borough Council - 01264 368000
Council Tax: - Band B
Front: - Parking for one car, shingled front garden
Property Ref: 34315248
Hut Farm Place, Chandlers Ford
2 Bedroom Flat | Offers in excess of £210,000
Offered with no forward chain this modern purpose built two bedroom second floor apartment with balcony overlooking an o...
Hut Farm Place, Chandler's Ford
2 Bedroom Flat | Guide Price £210,000
Positioned within close proximity to the number one bus route and a long list of local amenities, this is a fantastic op...
1 Bedroom Flat | £200,000
Welcome to this exquisite first-floor flat located on Highwood Avenue in Eastleigh. This modern corner apartment, built...
Knightwood Mews, Shannon Way Valley Park, Chandlers Ford
2 Bedroom Retirement Property | £230,000
A well presented two bedroom first floor apartment forming part of this exclusive Brendon Care Development designed for...
Knightwood Mews, Knightwood Park, Chandler's Ford
2 Bedroom Retirement Property | £230,000
An exceptional two bedroom, first floor apartment forming part of this exclusive Brendon Care Development designed for t...
Parkway Gardens, Chandler's Ford, Eastleigh
2 Bedroom Maisonette | £235,000
Located in Parkway Gardens in the heart of Chandler's Ford, this delightful first-floor maisonette offers a perfect blen...
Sparks Ellison (Chandler's Ford)
Chandler's Ford, Hampshire, SO53 2GJ
Use our short form to request a valuation of your property.
Request a Valuation