Bank Street, Bishops Waltham, SO32

Offers in excess of
£600,000
SSTC
This property listing is now SSTC

4 Bedroom Terraced House for sale in Southampton

2 4 3
  • WINCHESTER COUNCIL BAND D
  • FREEHOLD
  • EPC RATING D
  • CHARMING FOUR BEDROOM PERIOD HOME
  • FULL OF CHARACTER AND ORIGINAL FEATURES
  • THOUGHTFULLY EXTENDED BY THE CURRENT OWNERS
  • STUNNING KITCHEN BREAKFAST ROOM
  • TWO ENSUITES AND FAMILY BATHROOM
  • LANDSCAPED REAR GARDEN

INTRODUCTION

Combining both charm and character perfectly, this true hidden gem is set within the very heart of the village. The property has been completely updated and thoughtfully extended by the current owners, has many of the original beams and fireplaces throughout. The main focal point of the house is undoubtedly the beautiful kitchen/breakfast room that forms part of the extension with large light lantern and bi-folding doors that open out into the pretty, walled rear garden. The property then comes with four bedrooms, two of which are ensuite, along with a beautifully appointed modern family bathroom. To fully appreciate everything that this wonderful property has to offer, in addition to its great location, an early viewing is certainly a must.

LOCATION

The property benefits from being in Bishop Waltham's vibrant village centre which offers a broad range of shops and local amenities including shops, post office, pubs, a doctor's surgery and regular bus services. The neighbouring village of Botley is only minutes away and provides a mainline railway station with both Winchester city centre and Southampton Airport being just under half an hour away. All main motorway access routes are within easy reach. This historic market town is set against a backdrop of beautiful Hampshire countryside and offers the convenience of superb transport links.

INSIDE

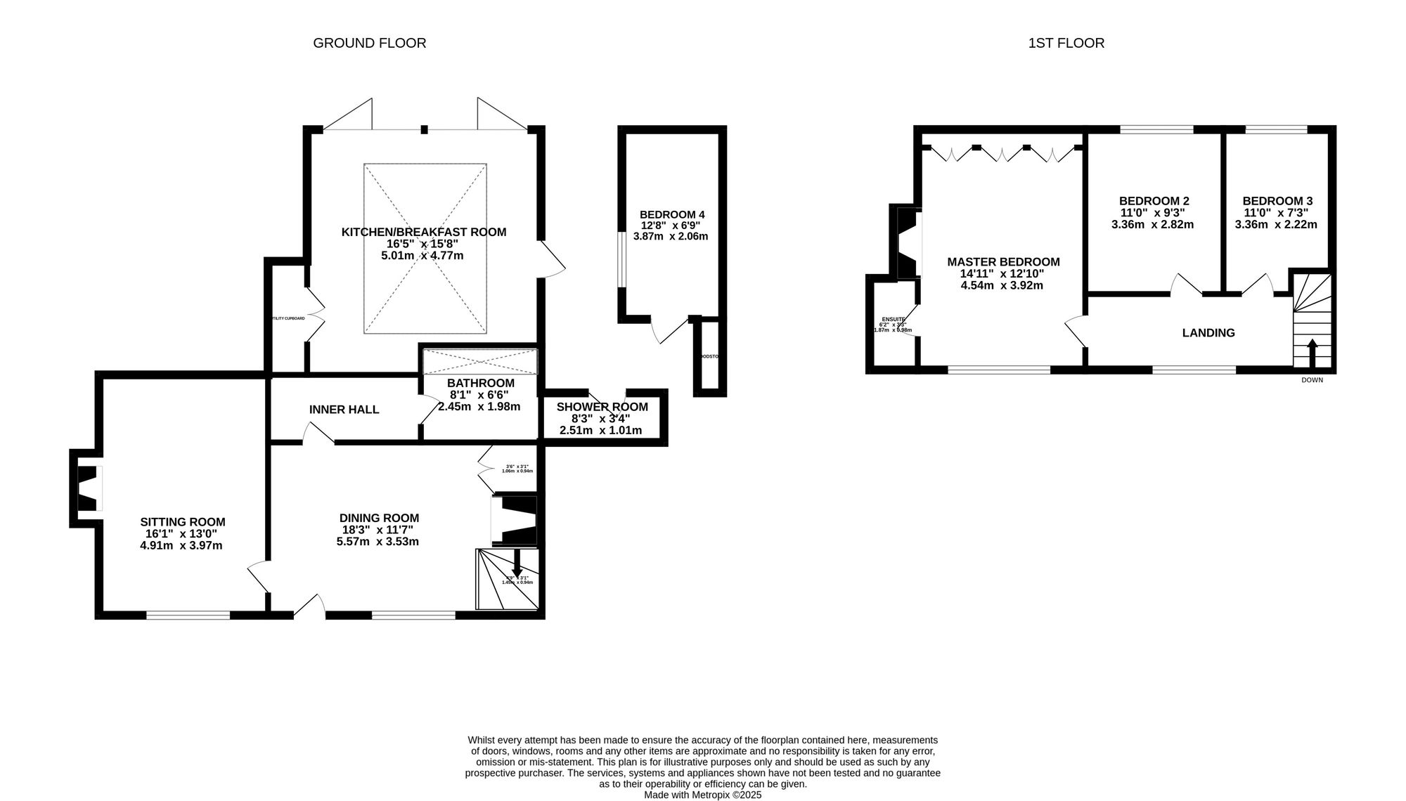
The house is accessed via the front door that then takes you directly into the lovely bright dining room which has a window to the front with internal shutters, limestone tiled flooring, exposed beams, with an attractive fireplace to one side of the room with fitted cupboard to the side and shelving above. Stairs then lead to the first floor with a door opposite taking you through to the sitting room. A well proportioned room, the sitting room overlooks the front of the property and has internal shutters and wall lights, with the main focal point of the room being the open fireplace with herring-bone brick patterning and inset wood burning  stove. There is then an inner hallway with a door leading through to a beautifully appointed bathroom with part vaulted ceiling flooding the room with light, freestanding modern bath with swan-neck tap fitting, wash hand basin set onto a vanity unit and low level WC, separate shower cubicle, the room is also part tiled and with spotlights.

The heart of the house then has to be wonderful kitchen/breakfast room which has been stylishly fitted with a matching range of wall and base units, with Corian worktops, all centred around a large central island. The room has exposed brickwork to one wall, fitted shelving, a large utility cupboard that has various appliance space and fitted shelving. There are then a range of appliances that include a built in NEFF oven with separate grill oven below, dishwasher, fridge and freezer along with further appliance space. Additional benefits to the room include the large light lantern, bi-folding doors through to the rear garden, limestone flooring and spotlights. A door to one side of the room then leads out onto a glass covered pathway with log-store to one side that leads through to a guest bedroom that is a double room and is also used currently as an office by the owners with modern shower room opposite.

On the first floor there are a further three good size bedrooms, all of which have exposed beams. The master has the original wide floorboards, fitted wardrobes along one wall which have been beautifully fitted with reclaimed Oak. The main bedroom also has an ensuite cloakroom.

OUTSIDE

The rear garden has been completely landscaped and is planted with a wide variety of mature flower and shrubs, with additional patio are towards the end that has a pergola and enjoys views over the garden, ideal for those lovely summer days and evenings

SERVICES:

Gas, water, electricity and mains drainage are connected. Please note that none of the services or appliances have been tested by White & Guard.

Broadband: Fibre to the Cabinet Broadband Up to 15 Mbps upload speed Up to 76 Mbps download speed. This is based on information provided by Openreach.

Important Information

  • This is a Freehold property.
  • This Council Tax band for this property is: D
  • EPC Rating is D

Property Ref: 4665e21f-e4d3-418e-b5bc-000a1d87bf73

Share:

Similar Properties

Twynhams Hill, Shirrell Heath, SO32

3 Bedroom Detached Bungalow | Offers in excess of £600,000

Tucked away along Twynham's Hill in the desirable village of Shirrell Heath, Briar Lea is a beautifully renovated three-...

Waltham Road, Bishops Waltham, SO32

4 Bedroom Detached House | Offers in excess of £600,000

Ideally positioned within the development overlooking its attractive green space, The Walberswick,  is a beautiful doubl...

Police Station Lane, Droxford, SO32

4 Bedroom Semi-Detached House | Offers in excess of £600,000

Nestled away in the heart of Droxford is this beautifully appointed four double bedroom character cottage. Originally co...

Knowle Avenue, Knowle, PO17

4 Bedroom Detached House | Offers in excess of £625,000

This beautifully presented, four bedroom detached family home is situated in the popular area of Knowle Village and has...

Lower Basingwell Street, Bishops Waltham Southampton SO32 1AJ

3 Bedroom Terraced House | £625,000

Believed to date to around the 18th Century and situated in the very heart of the village is this Grade II Listed cottag...

Broadway Lane, Lovedean, PO8

Not Specified | Offers in region of £625,000

An exceptional development opportunity situated in a highly desirable rural location, on the outskirts of Lovedean Villa...

White & Guard (Bishops Waltham)

Brook Street, Bishops Waltham, Hampshire, SO32 1GQ

01489 893946

How much is your home worth?

Use our short form to request a valuation of your property.

Request a Valuation

Mortgage Calculator

Amount Borrowed: £
Total Amount Repayable: £
Total Monthly Payment: £
©2026 The Guild of Property Professionals. All rights reserved. Terms and Conditions | Privacy Policy | Cookie Policy | Complaints Policy | Members Login
The Guild of Property Professionals Trading Address: 121 Park Lane, London W1K 7AG. GPEA Limited. Registered in England & Wales.  Company No: 02819824.  Registered Office Address: 2 St. Stephen's Court, St. Stephen's Road, Bournemouth, Dorset, England, BH2 6LA.  VAT Registration No: 576 8795 61
Book a Property Valuation Update Cookies Preferences