Albany Drive, Bishops Waltham, SO32

£375,000
SSTC
This property listing is now SSTC

3 Bedroom Semi-Detached House for sale in Southampton

1 3 1
  • WINCHESTER COUNCIL BAND C
  • EPC RATING C
  • NO FORWARD CHAIN
  • THREE BEDROOM SEMI DETACHED HOME
  • SET WITH A QUIET CUL DE SAC
  • 24FT LOUNGE DINING ROOM
  • MODERN KITCHEN
  • MATURE REAR GARDEN
  • GARAGE AND DRIVEWAY

INTRODUCTION

A deceptively spacious semi-detached family home set within a quiet cul-de-sac, lovely views and within walking distance to Bishops Waltham’s pretty village centre. The house has a lovely light and airy feel and also comes with a mature garden, driveway and garage. Internally the property has an inviting entrance hall, 24ft lounge/dining room and modern kitchen. Whilst on the first floor there are then 3 good size bedrooms including two double rooms and bathroom. To the rear there is then a large, raised decked area that overlooks the garden and makes the most of the lovely view due to the property’s elevated position. To fully appreciate everything that this beautiful family home has to offer, in addition to its great location, an early viewing is certainly a must.

LOCATION

The property is located within the sought after market town of Bishops Waltham and benefits from being within walking distance of the village centre which offers an array of shops, boutiques, restaurants and other amenities. Bishops Waltham is ideally situated close to neighbouring villages of Botley which has a main line railway station and the market town of Wickham, as well as being within half an hour from the Cathedral City of Winchester, Southampton Airport and all main motorway access routes are also within easy reach.

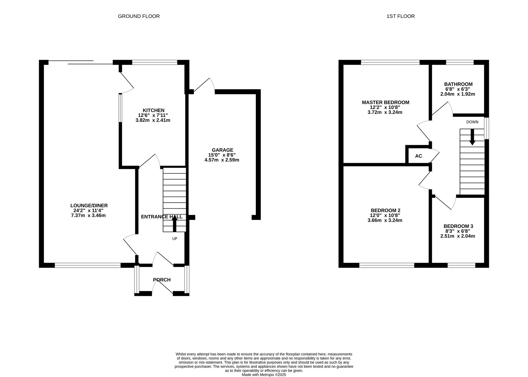
INSIDE

The house is approached via a pathway leading to a double glazed porch from which a front door with window to the side leads directly into the entrance hall. From the hallway stairs lead to the first floor, there is an understairs cupboard with a further door leading through to the well proportioned lounge/dining room.

A lovely bright room, there is a window to the front, feature fireplace, TV and various power points with a set of double glazed sliding doors from the dining area that is at one end of the room overlooking the garden. A door to one side of the dining area leads into the kitchen. This room also overlooks the rear garden and is fitted with a matching range of wall and base units, has a one a half sink unit along with a built in electric oven with gas hob, fried and freezer as well as plumbing and space for washing machine and further appliance space, complimentary tiling and spotlights.

On the first floor landing there is access to the loft and airing cupboard and door leading through to the master bedroom. The main bedroom enjoys views views over the garden and views beyond and is a lovely bright room as is bedroom two, also a double room that overlooks the front of the house. Bedroom three also has a window overlooking the front of the house. The bathroom is then fitted with a modern suite with panelled bath with shower over, wash hand basin set in a vanity unit with cupboards below and matching low level WC.

OUTSIDE

To the front the house has a part walled garden mainly lawned with driveway to the side leading up to the garage which has a metal up and over door and a back door that leads through to the garden. To the rear there is a large, decked patio area spanning the width of the house leaving the garden again mainly lawned. There is a small pond to one side, greenhouse with borders that have been selectively planted in addition to a hedgerow border to the back of the garden.

 

SERVICES:

Gas, water, electricity and mains drainage are connected. Please note that none of the services or appliances have been tested by White & Guard.

Broadband: Fibre to the Cabinet Broadband Up to 15 Mbps upload speed Up to 76 Mbps download speed. This is based on information provided by Openreach.

 

Important Information

  • This is a Freehold property.
  • This Council Tax band for this property is: C
  • EPC Rating is C

Property Ref: 98753e46-9949-4fd7-8167-c0171f5038cf

Share:

Similar Properties

Evelyn Close, Waltham Chase, SO32

3 Bedroom Semi-Detached House | £375,000

10 Evelyn Close, Waltham Chase, a beautifully presented three-bedroom home tucked away in a peaceful cul-de-sac setting....

Winchester Road, Upham, SO32

3 Bedroom Semi-Detached House | Offers in excess of £375,000

Set on the edge of this pretty village and surrounded by lovely walks this traditionally designed modern family home com...

The Old Granary, Bank Street, SO32

2 Bedroom Apartment | Offers in excess of £375,000

A spacious and newly created two bedroom ground floor apartment occupying a prime Bishops Waltham location. Set within a...

Kingsman Drive, Botley, SO32

3 Bedroom Semi-Detached House | £390,000

Situated within a modern and popular development, 194 Kingsman Drive offers flexible accommodation arranged over three w...

Sunningdale Close, Botley, SO32

3 Bedroom Town House | Offers in excess of £390,000

Immaculately presented and positioned in a quiet cul-de-sac, this stunning three bedroom semi-detached home showcases sp...

The Circle, Wickham, PO17

3 Bedroom Semi-Detached House | Offers in excess of £395,000

Tucked away in a peaceful cul-de-sac in the very heart of Wickham village, this beautifully extended three-bedroom semi-...

White & Guard (Bishops Waltham)

Brook Street, Bishops Waltham, Hampshire, SO32 1GQ

01489 893946

How much is your home worth?

Use our short form to request a valuation of your property.

Request a Valuation

Mortgage Calculator

Amount Borrowed: £
Total Amount Repayable: £
Total Monthly Payment: £
©2026 The Guild of Property Professionals. All rights reserved. Terms and Conditions | Privacy Policy | Cookie Policy | Complaints Policy | Members Login
The Guild of Property Professionals Trading Address: 121 Park Lane, London W1K 7AG. GPEA Limited. Registered in England & Wales.  Company No: 02819824.  Registered Office Address: 2 St. Stephen's Court, St. Stephen's Road, Bournemouth, Dorset, England, BH2 6LA.  VAT Registration No: 576 8795 61
Book a Property Valuation Update Cookies Preferences