Oakley Road, Southampton, SO16 4LH

Guide Price
£300,000
SSTC
This property listing is now SSTC

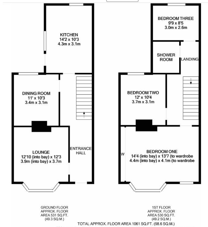
3 Bedroom Terraced House for sale in Southampton

2 3 1
  • Three well-proportioned bedrooms
  • Two spacious reception rooms
  • Modern fitted kitchen with ample storage
  • Stylish contemporary shower room
  • Characterful original fireplace
  • High ceilings and large windows providing excellent natural light
  • Freshly decorated in neutral tones throughout
  • Well-maintained enclosed rear garden
  • Potential to extend (subject to planning permission)
  • Convenient location close to schools, shops, parks, motorway links and Southampton General Hospital

This attractive three-bedroom terraced home on Oakley Road offers generous living space, character features and a well-maintained interior, making it an excellent choice for families, first-time buyers or investors alike. Positioned on a quiet residential road, the property benefits from convenient access to local amenities, schools, transport links and Southampton General Hospital.

Upon entering the property, you are welcomed by a spacious and airy interior enhanced by high ceilings and large windows that allow plenty of natural light to flow throughout the home. The layout has been thoughtfully designed to maximise space and functionality, creating a comfortable and practical environment for everyday living.

The ground floor features two well-proportioned reception rooms, providing flexible living and dining spaces ideal for both relaxing and entertaining. A charming original fireplace adds character to the living area, while the generous dining room offers a perfect setting for family meals or social gatherings.

The modern kitchen is well equipped with ample storage and worktop space, making it both practical and stylish. From here, there is easy access to the enclosed rear garden, which offers a pleasant outdoor space for relaxing, gardening or entertaining during the warmer months.

Upstairs, the property offers three good-sized bedrooms along with a modern shower room finished with stylish tiling. The home has been freshly decorated in neutral tones, allowing new owners to move straight in while also offering scope for further modernisation or extension (subject to the necessary planning permissions).

Important Information

  • This is a Freehold property.
  • This Council Tax band for this property is: B

Property Ref: 1413914

Share:

Similar Properties

Cromer Road, Southampton, SO16 9HS

3 Bedroom End of Terrace House | Offers Over £300,000

A spacious and beautifully refurbished three-bedroom end-of-terrace home with driveway parking, new garage and an enclos...

Harcourt Road, Southampton, SO18 1GP

2 Bedroom Terraced House | Guide Price £300,000

Brook Cottage is a stylish, modern two-bedroom terraced home offering spacious open-plan living and two en-suite bedroom...

Ambulance House, Beaulieu Road, SO45

3 Bedroom Semi-Detached House | Offers Over £300,000

Enfields are pleased to offer to the market this three double bedroom semi detached family home nicely tucked away off B...

Kingsmill Drive, Fair Oak, SO50 7QE

2 Bedroom Semi-Detached House | Guide Price £310,000

A beautifully presented two-bedroom semi-detached home situated on a quiet road in Fair Oak, offering spacious and airy...

Waltons Avenue, Holbury, SO45

3 Bedroom Bungalow | Offers Over £310,000

Enfields are pleased to offer to the market this well presented three bedroom detached bungalow with driveway parking, g...

Kesteven Way, Southampton, SO18 5RJ

3 Bedroom Semi-Detached House | Guide Price £320,000

NO FORWARD CHAINNestled in the sought-after area of Bitterne, Southampton, this spacious extended three-bedroom semi-det...

Enfields Hythe (Hythe)

3 Marsh Parade, Hythe, Hampshire, SO45 6AN

02380 849210

How much is your home worth?

Use our short form to request a valuation of your property.

Request a Valuation

Mortgage Calculator

Amount Borrowed: £
Total Amount Repayable: £
Total Monthly Payment: £
©2026 The Guild of Property Professionals. All rights reserved. Terms and Conditions | Privacy Policy | Cookie Policy | Complaints Policy | Members Login
The Guild of Property Professionals Trading Address: 121 Park Lane, London W1K 7AG. GPEA Limited. Registered in England & Wales.  Company No: 02819824.  Registered Office Address: 2 St. Stephen's Court, St. Stephen's Road, Bournemouth, Dorset, England, BH2 6LA.  VAT Registration No: 576 8795 61
Book a Property Valuation Update Cookies Preferences