Holbeach, PE12 7DE

£200,000

Land for sale in Spalding

  • Development Land
  • Central Location
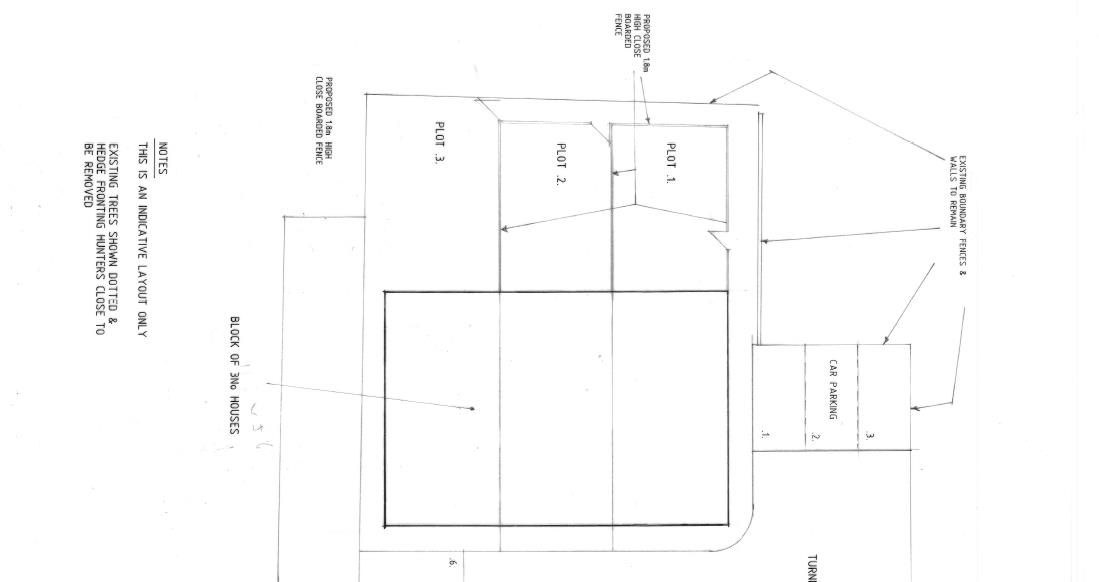
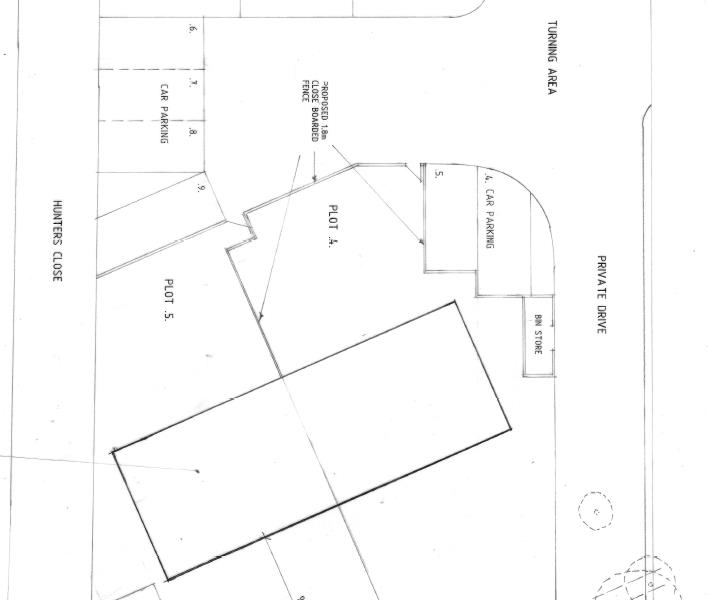
  • Outlined Planning Permission for Three Terrace 3 beds and Two 3 bed semi's
  • Planning Reference : H09-0913-22
  • Close to Secondary School and Primary School
  • Close to Local Shops and Doctor Surgery

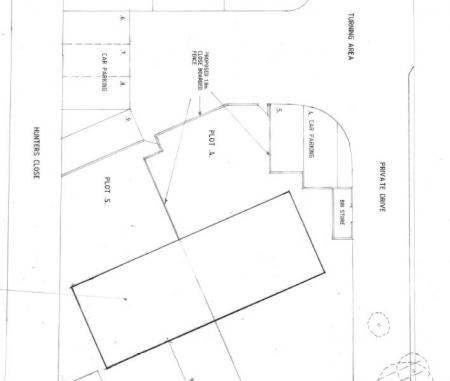
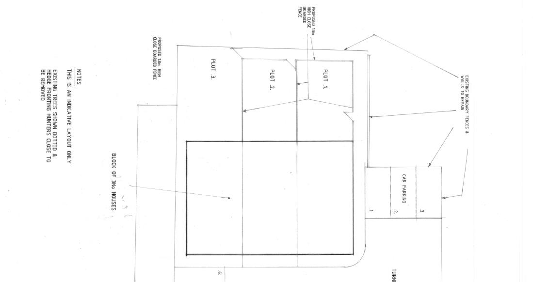
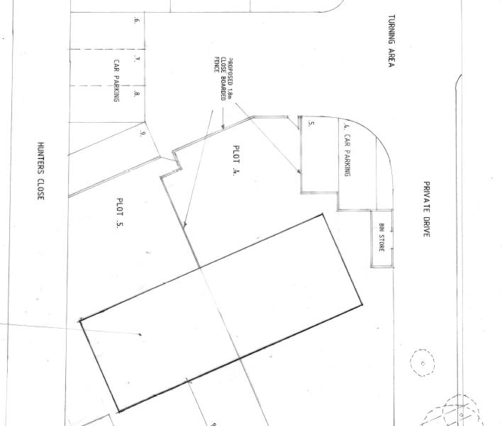
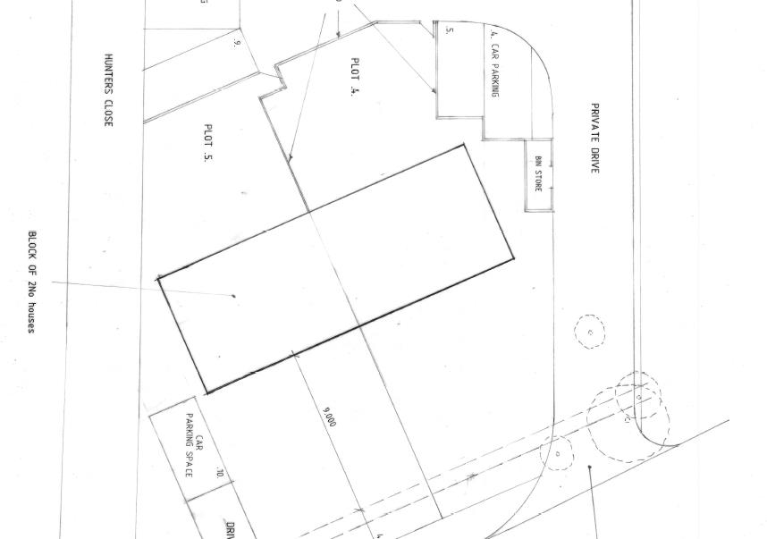
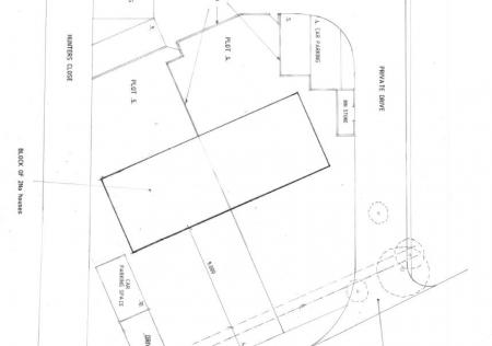
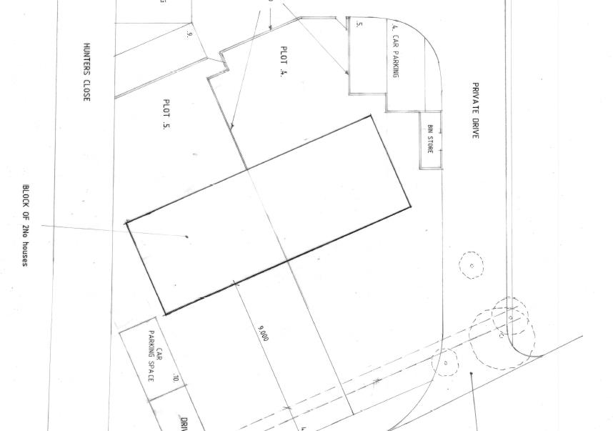
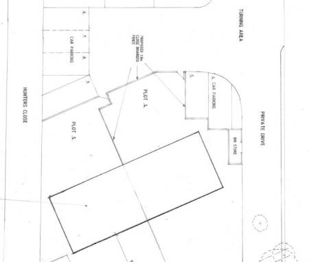
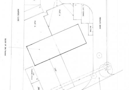
Location The site lies at the rear of 38 Fishpond Lane and has an existing access off Farrow Avenue, Holbeach. It is therefore within walking distance of Holbeach town centre and all the amenities which this Market town has to offer.  

Description The land extends to approximately 1,351m² (0.33 acres). Access to the plot is proposed to come from Farrow Avenue. The plot is broadly rectangular in shape and has a frontage to Farrow Avenue of approximately 28m, and has an average depth of 55m.

The determined Outline Planning Consent is granted for 5 no. properties off a private drive, and indicatively is shown to comprise 3 x 3 Bedroom terrace houses at the rear and 2 x 3 bedroom semi-detached houses at the front of the site. The original buildings on site have now been demolished. The terrace houses are designed in a 'Dorma' style.

There is an Internal Drainage Board byelaw/easement running across the front of the site (9m), which restricts any development in this area, or planting.

The Registered Title number of the site is LL305652, and the property has a Restrictive covenant preventing the development of unsightly structures (to ensure only conventional dwellings i.e not Temporary or Commercial properties).  

Planning Outline Planning Consent with All Matters Reserved, was granted by South Holland District Council - Reference No: H09-0913-22 on 10th October 2023. A copy of the formal Planning Consent is available from the Council's website - www.sholland.gov.uk – or is available from the Agent's Spalding Office. Included in these Particulars is a copy of the plans determined by the Planning Application. The purchaser will be responsible for all costs in obtaining Reserved matters, and condition compliances consents, and for further studies required, which include contamination and drainage.

This planning consent was granted prior to the introduction of the new Biodiversity measures policy, and therefore there is only has a requirement to make 'simple' measures, and one swift brick is also to be added per dwelling. 

Services Electricity has been disconnected, but a water standpipe is still in existence on the site. All mains services are believed to exist in Farrow Avenue, however prospective purchasers should make their own enquiries to establish the suitability and costs of connections.  

Property Ref: 58325_101505031165

Share:

Similar Properties

High Street, Holbeach, Spalding. PE12 7DY

Commercial Property | £200,000

• Single Storey Investment Property currently used as a Meeting Centre (former Bank), with Ancillary offices/amenity are...

Pipwell Gate, Saracens Head

3 Bedroom Detached House | £200,000

Substantial 3 bedroomed detached residence situated in a semi-rural location. Accommodation comprising entrance porch, e...

Land at rear of 38 Fishpond Lane (off Farrow Avenue), PE12 7DE

Residential Development | £200,000

• Residential Development Land situated with access shown off Farrow Avenue• Area extends to approximately 1,351m² (0.33...

Campains Lane, Deeping St Nicholas

3 Bedroom Semi-Detached House | £209,000

Modern semi-detached house in non-estate location with driveway and established gardens. Oil central heating, UPVC windo...

Fishpond Lane, Holbeach

2 Bedroom Detached Bungalow | £210,000

Well presented 2 bedroom detached bungalow situated within walking distance of the popular town of Holbeach. Entrance ha...

St Margarets, Quadring PE11 4PR

3 Bedroom Semi-Detached House | £210,000

Spacious semi detached house with two reception rooms, kitchen, conservatory, utility room, ground floor shower room, th...

Longstaff (Spalding)

5 New Road, Spalding, Lincolnshire, PE11 1BS

01775 766766

How much is your home worth?

Use our short form to request a valuation of your property.

Request a Valuation

Mortgage Calculator

Amount Borrowed: £
Total Amount Repayable: £
Total Monthly Payment: £
©2026 The Guild of Property Professionals. All rights reserved. Terms and Conditions | Privacy Policy | Cookie Policy | Complaints Policy | Members Login
The Guild of Property Professionals Trading Address: 121 Park Lane, London W1K 7AG. GPEA Limited. Registered in England & Wales.  Company No: 02819824.  Registered Office Address: 2 St. Stephen's Court, St. Stephen's Road, Bournemouth, Dorset, England, BH2 6LA.  VAT Registration No: 576 8795 61
Book a Property Valuation Update Cookies Preferences