Doyle Lane, Spalding

£160,000
SSTC
This property listing is now SSTC

2 Bedroom Apartment for sale in Spalding

2 1
  • 2 Double Bedrooms
  • Allocated Parking and Single Garage
  • Gas Central Heating, 2 Solar Panels
  • Dishwasher, Air Con Unit and Fridge Freezer included in the sale
  • No Chain

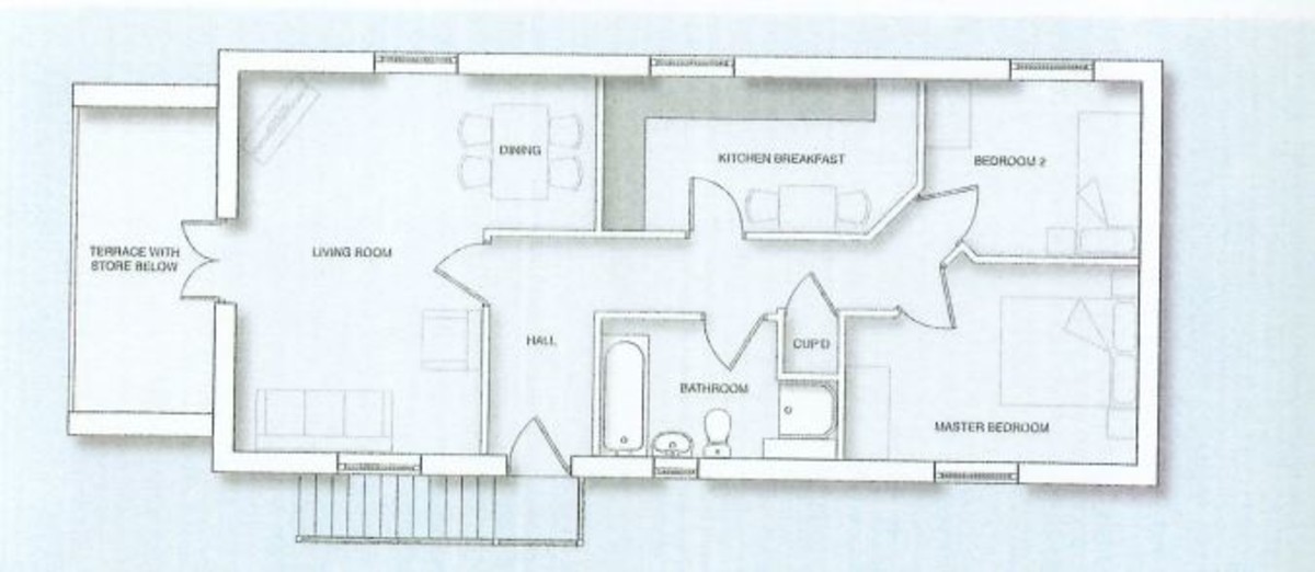
6 DOYLE LANE Superbly presented Coach House situated on the edge of town. Accommodation comprising entrance hallway, lounge diner, kitchen breakfast room, balcony, 2 double bedrooms, bathroom with four piece suite. Single garage and store room to the ground floor. Allocated parking space. No chain. 

ACCOMMODATION Staircase rising to the first floor with external lighting and obscured UPVC double glazed composite door leading into: 

ENTRANCE HALLWAY 10' 7" x 22' 2" (3.24m x 6.77m) Skimmed and coved ceiling, 2 centre light points, access to loft space, smoke alarm, wall mounted electric consumer unit, electric meter, BT point, radiator, storage cupboard off with shelving, vinyl plank effect flooring, fitted coat rail, door to: 

LOUNGE DINER 17' 7" x 16' 9" (5.36m x 5.13m) UPVC double glazed windows to the front and rear elevations, UPVC double glazed French doors to the side elevation leading on to Balcony, skimmed and coved ceiling, 2 centre light points, 2 double radiators, TV point, central heating controls, fitted Fugitsu air conditioning unit (hot and cold air).

From the Entrance Hallway door leading into: 

KITCHEN BREAKFAST ROOM 7' 2" x 14' 10" (2.19m x 4.54m) UPVC double glazed window to the rear elevation, skimmed and coved ceiling, inset LED lighting, double radiator, vinyl plank effect flooring, fitted with a wide range of base and eye level units with work surfaces over, splashbacks, inset one and a quarter bowl sink with mixer tap, plumbing and space for washing machine, space for fridge freezer, integrated Neff gas hob with splashback, Neff stainless steel canopy extractor hood over, integrated Neff stainless steel fan assisted oven, under cabinet lighting, dishwasher.

From the Entrance Hallway into: 

BEDROOM 1 6' 5" x 13' 10" (1.98m x 4.22m) UPVC double glazed window to the front elevation, skimmed and coved ceiling, centre light point, double radiator, telephone point, TV point. 

BEDROOM 2 8' 1" x 10' 2" (2.47m x 3.10m) UPVC double glazed window to the rear elevation, skimmed and coved ceiling, centre light point, double radiator.

From the Entrance Hallway into: 

FAMILY BATHROOM 6' 3" x 10' 11" (1.93m x 3.33m) UPVC obscured double glazed window to the front elevation, skimmed and coved ceiling, inset LED lighting, extractor fan, vinyl plank effect flooring, heated towel rail, shaver point, fitted with a four piece suite comprising low level WC, wash hand basin with mixer tap and tiled splashbacks, bath with mixer tap, fitted shower pod with thermostatic shower, rainfall shower head and further attachment tap.

From the Lounge access is given to: 

BALCONY Wrought iron railings. 

EXTERIOR The front of the property is mainly laid to gravel with fencing, composite door leading into: 

SINGLE GARAGE 8' 2" x 18' 2" (2.51m x 5.56m) Accessed at the rear of the property and is the third garage along. Up and over door, textured ceiling, strip light, electric consumer unit board, power points, wall mounted Ideal gas combination boiler. 

STORAGE ROOM 5' 10" x 14' 4" (1.80m x 4.39m) Textured ceiling, centre light point, power points, ideal for freezer or bike storage. 

DIRECTIONS Leave Spalding along Winsover Road leading into Bourne Road. At the traffic lights into The Broadway, follow the road down to the roundabout take the second turning into The Circus. Follow the road round and then take a right hand turning into Doyle Lane where the property is on the right hand side. 

AMENITIES The property is situated on the western outskirts of Spalding and on the bus route into town. Spalding offers a wide range of facilities including various shops, banks, public houses, restaurants, primary and secondary schools, Churches, sports clubs etc. The Cathedral city of Peterborough is approximately 19 miles to the south and has a fast train link with London's Kings Cross minimum journey time 50 minutes.  

LEASEHOLD 999 year lease starting on 1st January 2017
£120pa (subject to increase)
Garage
999 year lease starting on the 1st January 2017
£60pa
 

Property Ref: 58325_101505015740

Share:

Similar Properties

15/16 Station Street, Spalding, PE11 1EF

Commercial Property | Offers in region of £160,000

• Retail Investment • Ground Floor Retail Unit with First and Second Floor - let as a whole• Good Town Centre location –...

Poachers Gate, Pinchbeck

2 Bedroom Terraced House | £159,950

2 bedroom inner terrace house with gas central heating and UPVC windows. Lounge, kitchen, conservatory, 2 bedrooms and s...

Dozens Bank, West Pinchbeck

2 Bedroom Semi-Detached House | £159,950

Traditional semi-detached house with oil central heating and UPVC windows. Entrance porch, lounge diner, utility/boiler...

Ash Court , Donington

3 Bedroom Semi-Detached House | £163,000

Semi-detached 3 bedroom house with lounge, dining room, kitchen, bathroom and large conservatory in popular village loca...

Garage Site At Bakers Yard, Gosberton PE11 4EQ

Residential Development | Offers Over £170,000

• Site within established residential area in Gosberton• Site Area: 1,696m²• Pre Planning advice for Residential develop...

Land For Sale at Ravens Bank and Stoton's Gate, Holbeach Fen

Land | POA

An enclosure of arable land For Sale by Informal Tender. Total 19.199 acres (7.769 hectares) or thereabouts. Grade 2 Ara...

Longstaff (Spalding)

5 New Road, Spalding, Lincolnshire, PE11 1BS

01775 766766

How much is your home worth?

Use our short form to request a valuation of your property.

Request a Valuation

Mortgage Calculator

Amount Borrowed: £
Total Amount Repayable: £
Total Monthly Payment: £
©2026 The Guild of Property Professionals. All rights reserved. Terms and Conditions | Privacy Policy | Cookie Policy | Complaints Policy | Members Login
The Guild of Property Professionals Trading Address: 121 Park Lane, London W1K 7AG. GPEA Limited. Registered in England & Wales.  Company No: 02819824.  Registered Office Address: 2 St. Stephen's Court, St. Stephen's Road, Bournemouth, Dorset, England, BH2 6LA.  VAT Registration No: 576 8795 61
Book a Property Valuation Update Cookies Preferences