St. Albans Road, Sandridge, St. Albans, Hertfordshire, AL4

Guide Price
£480,000

2 Bedroom Apartment for sale in St. Albans

2

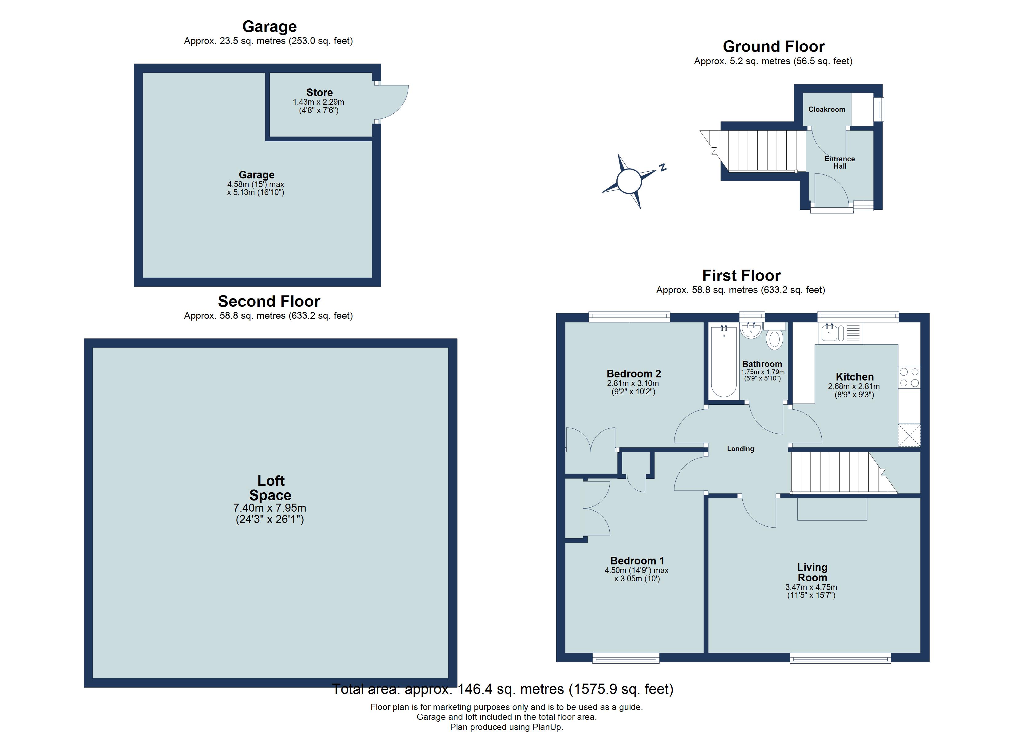
Tucked away in a peaceful location within walking distance of the highly sought-after Sandringham School, this charming TWO-BEDROOM FIRST FLOOR maisonette offers a perfect blend of comfort, practicality, and future potential. Ideal for first-time buyers, growing families, or anyone looking for a home that can evolve with their needs, this property is ready to welcome you.Step inside and you'll find bright, welcoming rooms that are thoughtfully laid out to make the most of the space available. Each area feels comfortable and functional, providing room to relax, entertain, or enjoy quiet moments at home. The light-filled interiors create a warm and inviting atmosphere throughout.The private garden is a true highlight, offering a tranquil outdoor retreat. Perfect for summer barbecues, enjoying a morning coffee in the sunshine, or tending a small vegetable patch, it provides a versatile space to suit your lifestyle. A practical garden store keeps tools and outdoor equipment neatly tucked away, helping maintain a tidy and organised space.For those looking to plan ahead, the property's loft space offers exciting potential. Subject to planning permission, it could be converted into a home office, creative studio, or an additional bedroom, providing flexible options to adapt the home as your needs change.Practicality is also a key feature of this property. A newly built garage and parking for multiple vehicles add convenience and security, while the share of freehold provides peace of mind for the future.Located in a well-regarded area, this maisonette combines everyday convenience with long-term opportunity. Whether you're starting out on your property journey, growing your family, or seeking a home that offers both comfort and potential, this property delivers a lifestyle that balances functionality, charm, and adaptability.

• Spacious Maisonette
• Walking Distance of Sandringham School
• Private Garden
• Garage & Private Parking
• Two Double Bedrooms
• Large Loft With Potential To Convert STPP
• No Onward Chain



Important Information

  • This is a Share of Freehold property.

Property Ref: 10800_MAR250222

Share:

Similar Properties

Elizabeth Court, St. Albans, Hertfordshire, AL4

2 Bedroom Terraced House | Guide Price £440,000

A well-presented two bedroom house, thoughtfully updated by the current owners and located in a quiet and peaceful neigh...

Elizabeth Court, St. Albans, Hertfordshire, AL4

2 Bedroom Terraced House | £399,000

NO UPPER CHAIN Located in the popular Jersey Farm area is this well-presented TWO BEDROOM terraced home with a low maint...

Ryecroft Court, Hatfield Road, St. Albans, AL4

2 Bedroom Maisonette | Guide Price £389,950

Tucked away in a quiet residential cul de sac is this well-presented ground floor maisonette at Ryecroft Court offers ve...

Aldbury Close, St. Albans, Hertfordshire, AL4

2 Bedroom End of Terrace House | Guide Price £485,000

Nestled in a highly sought-after residential location, directly opposite an open green, this charming END OF TERRACE pro...

Chiltern Road, St. Albans, Hertfordshire, AL4

3 Bedroom Terraced House | Guide Price £495,000

A spacious and well-presented three bedroom family home, thoughtfully updated by the current owners and situated within...

Elizabeth Court, St. Albans, Hertfordshire, AL4

3 Bedroom Terraced House | £500,000

This attractive THREE BEDROOM home is ideally positioned within a peaceful CUL-DE-SAC, offering a wonderful setting for...

Bradford & Howley (Marshalswick)

5 The Quadrant, Marshalswick, Hertfordshire, AL4 9RA

01727 856999

How much is your home worth?

Use our short form to request a valuation of your property.

Request a Valuation

Mortgage Calculator

Amount Borrowed: £
Total Amount Repayable: £
Total Monthly Payment: £
©2026 The Guild of Property Professionals. All rights reserved. Terms and Conditions | Privacy Policy | Cookie Policy | Complaints Policy | Members Login
The Guild of Property Professionals Trading Address: 121 Park Lane, London W1K 7AG. GPEA Limited. Registered in England & Wales.  Company No: 02819824.  Registered Office Address: 2 St. Stephen's Court, St. Stephen's Road, Bournemouth, Dorset, England, BH2 6LA.  VAT Registration No: 576 8795 61
Book a Property Valuation Update Cookies Preferences