Lovering Dry, Charlestown

Guide Price
£750,000

Plot for sale in St. Austell

  • Prime Building Plot
  • Full Planning Permission (PA24/04732)
  • For Detached Dwelling and Garage
  • Period Design
  • Private Position
  • Walking Distance to Harbour
  • Rare Opportunity
  • Four Bedrooms

An Exceptional Self-Build Opportunity in Historic Charlestown

A rare opportunity to build a striking Georgian-style manor house with full planning permission, just 100m from the iconic harbour, beaches, caf�s, and coastline of Charlestown - a UNESCO World Heritage Site and one of Cornwall's most desirable villages.

General Comments - A rare opportunity to build a striking Georgian-style manor house with full planning permission, just 100m from the iconic harbour, beaches, caf�s, and coastline of Charlestown - a UNESCO World Heritage Site and one of Cornwall's most desirable villages.

Enjoying an elevated south-facing position, this architect-designed home captures far-reaching views over the sea, countryside, historic harbour, and the village's Grade II listed chimney - a proud industrial landmark.

The spacious 230 sq metre layout blends traditional granite and slate with bold contemporary features. High ceilings run throughout, with reverse living to maximise the outlook. The design includes four generous double bedrooms, all en suite, offering excellent comfort and privacy.

Entering through the front door, a dramatic full-height space opens to a feature staircase and gallery landing, with sightlines rising to the first-floor vaulted ceiling and central roof lantern - flooding the heart of the home with natural light.

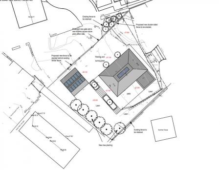
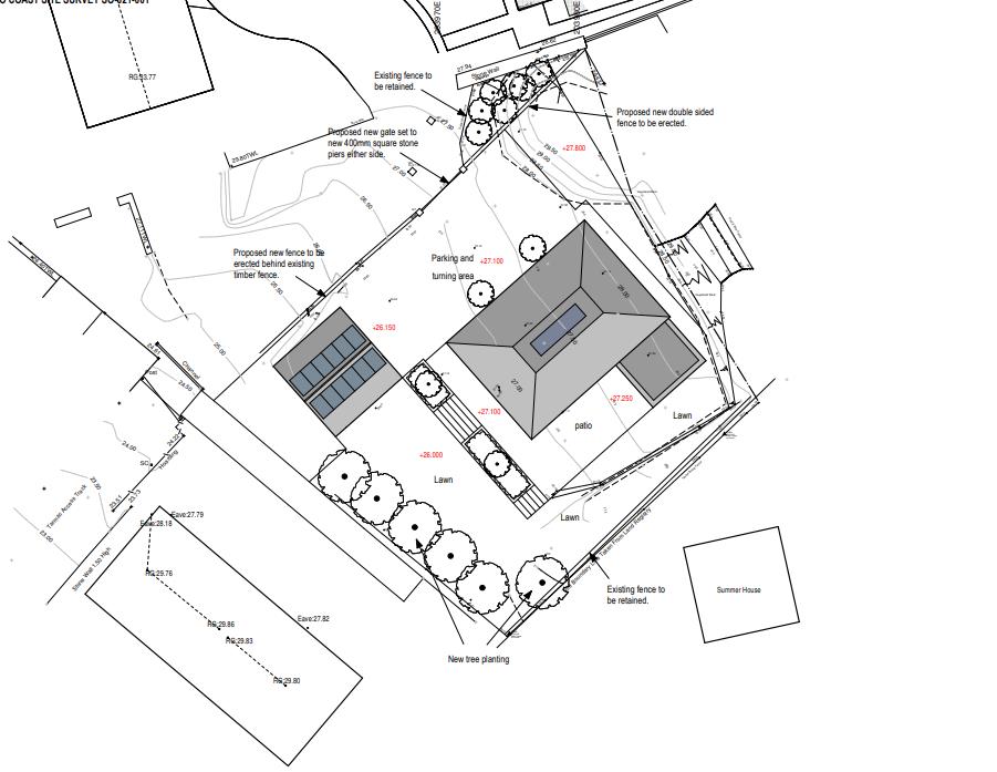
Set behind existing electric secure intercom gates, the plot comes with full planning permission, easements, on-site electricity and water, and a detailed construction pack including building regs package - a rare chance to create a landmark home in a historic coastal setting.

Planning Permission - All details including the conditions can be found via the Cornwall Council Planning Portal with the reference PA24/04732.

Occupying a superb position beside The Nest development in Charlestown, this exceptional building plot enjoys far-reaching sea views and overlooks the historic harbour. Planning consent has been granted for a striking four-bedroom detached home of classic Georgian proportions, carefully set back from the private access road to respect the site levels and surrounding properties.

The approved design features a reverse level layout to maximise the outlook. The ground floor provides a grand entrance hall with feature staircase, utility/plant room and four en-suite bedrooms, including a principal suite with dressing room and sliding doors to a rear terrace. Above, a vaulted open-plan living space incorporates kitchen, dining and lounge areas, a separate WC and store, plus a more formal sitting room with space for a home office and access to a first-floor deck.

Externally, the scheme includes a generous in-and-out driveway with parking for up to four cars, a double garage and landscaped gardens. The architecture draws inspiration from Charlestown's Georgian vernacular, combining classical proportions with subtle contemporary detailing to blend seamlessly into this historic coastal setting.

Proposed Accommodation - Ground Floor: A spacious entrance hall opens to four well-proportioned bedrooms, each including an en-suite as well as a separate utility room.

First Floor: An open-plan kitchen/dining/living area designed to maximise light.

Large windows and a sensitive mix of natural stone and contemporary detailing ensure the interior benefits from ample daylight while remaining in keeping with Charlestown's historic character.

Visuals may differ from the planning portal and are for illustration only.

Viewing - Strictly by Appointment through the Agents Philip Martin, 9 Cathedral Lane, Truro, TR1 2QS. Telephone: 01872 242244 or 3 Quayside Arcade, St. Mawes, Truro TR2 5DT. Telephone 01326 270008.

Data Protection - We treat all data confidentially and with the utmost care and respect. If you do not wish your personal details to be used by us for any specific purpose, then you can unsubscribe or change your communication preferences and contact methods at any time by informing us either by email or in writing at our offices in Truro or St Mawes.

Property Ref: 858996_34187342

Share:

Similar Properties

Tolcarne, St. Day, Redruth

4 Bedroom Farm House | Guide Price £750,000

LARGE DETACHED CHARACTER HOUSE SET IN 0.8 OF AN ACREA beautifully presented property offering versatile accommodation as...

Portmellon

4 Bedroom Detached House | Guide Price £750,000

STUNNING DETACHED MODERN HOUSE LOCATED WITHIN A SHORT WALK OF THE COAST AND BEACH Built approximately ten years ago to a...

Portmellon

2 Bedroom Detached House | Guide Price £750,000

FABULOUS DETACHED MODERN HOUSE WITH FAR REACHING SEA AND COASTAL VIEWSTucked away in a private setting yet within walkin...

Quintrell Downs, Newquay

3 Bedroom Detached House | Guide Price £765,000

DETACHED MODERN HOUSE WITH STABLES AND 1.5 ACRES.In a very convenient location within easy reach of Newquay, the North C...

ROSELAND PENSINSULA

3 Bedroom Cottage | Guide Price £775,000

CHARMING DETACHED GRADE II LISTED COUNTRY COTTAGELocated within a small hamlet deep in the heart of the Roseland Peninsu...

Come-To-Good, Feock

4 Bedroom Cottage | Guide Price £795,000

SUBSTANTIAL DETACHED COTTAGE IN AN ACRE OF GARDENS & GROUNDSSituated in a picturesque setting in one of the most sought...

Philip Martin (Truro)

Truro, Cornwall, TR1 2QS

01872 242244

How much is your home worth?

Use our short form to request a valuation of your property.

Request a Valuation

Mortgage Calculator

Amount Borrowed: £
Total Amount Repayable: £
Total Monthly Payment: £
©2025 The Guild of Property Professionals. All rights reserved. Terms and Conditions | Privacy Policy | Cookie Policy | Complaints Policy | Members Login
The Guild of Property Professionals Trading Address: 121 Park Lane, London W1K 7AG. GPEA Limited. Registered in England & Wales.  Company No: 02819824.  Registered Office Address: 2 St. Stephen's Court, St. Stephen's Road, Bournemouth, Dorset, England, BH2 6LA.  VAT Registration No: 576 8795 61
Book a Property Valuation Update Cookies Preferences