Versatile home with sea views, St. Erth Praze

Guide Price
£875,000

5 Bedroom Detached House for sale in St. Erth Praze

5 5 4
  • DETACHED HOME WITH ANNEXE
  • FLEXIBLE MULTI-GENERATIONAL LIVING
  • SPACIOUS MAIN HOUSE WITH MULTIPLE RECEPTIONS
  • HIGH SPEC SELF CONTAINED ANNEXE
  • BEAUTIFULLY LANDSCAPED GARDENS
  • STUNNING SEA VIEWS
  • LARGE OUTBUILDING & POLYTUNNEL
  • 14 EPC- F 35, 14A EPC- D 55
  • COUNCIL TAX BANDS- C & A
  • FREEHOLD TENURE

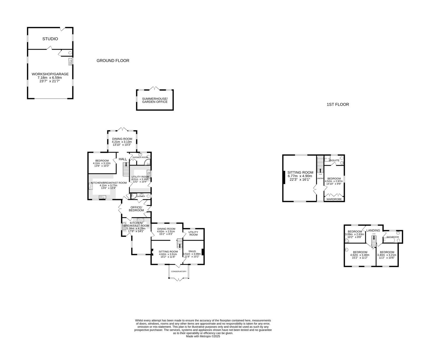
Set within a generous plot approaching just over an acre, this impressive detached home offers expansive and versatile accommodation, stunning sea views, and a beautifully landscaped garden - perfect for families or those seeking multi-generational living.

The main house provides a wealth of space with several separate reception rooms, allowing the layout to be adapted to suit a variety of needs. The light and airy kitchen/breakfast room features an island, creating an ideal spot for entertaining or family gatherings. A connecting dining room leads seamlessly into the spacious living room, complete with a log burner for cosy evenings. Additional reception spaces include a snug and a conservatory overlooking the gardens, providing wonderful flexibility for work, relaxation, or play. Upstairs, there are three well proportioned bedrooms and a family bathroom.

The self contained annexe, finished to a high modern standard, offers excellent potential for use as independent accommodation, a holiday let, or space for a dependent relative. The entrance porch includes a shower room and could easily serve as a home office/bedroom. The newly fitted kitchen has a breakfast bar and enjoys generous storage and worktop space, while the separate bright dining area overlooks the garden. One double bedroom and a stylish shower room complete the ground floor, with a large first floor living room, the heart of the annexe, featuring a media wall and sea views. The master bedroom benefits from built-in storage and an en-suite shower room.

The garden is a true highlight, extending to roughly an acre and offering a haven for gardeners and outdoor enthusiasts alike. Predominantly laid to lawn and bordered by mature shrubs, it includes landscaped seating areas bursting with colour, a large greenhouse for growing vegetables, and a substantial outbuilding ideal for storage or as a workshop.

Guide Price £875,000 -

Location - The property is situated in the rural hamlet of St Erth Praze, just outside of the thriving coastal town of Hayle. The town itself provides many amenities and is becoming one of the most sought after towns within West Cornwall. There is a train station providing national rail links as well as providing easy local access to St Ives, Penzance and Truro. The North coast is a huge draw for Hayle. The beaches are world class, as is the surf! There are numerous beach choices nearby to include Hayle beach, Gwithian & Godrevy to mention just a few. There are good transport links via the A30. The major towns of Penzance, Helston, Camborne, Redruth and Truro are all within easy reach by road. There is a great selection of supermarkets and individual boutique shops, restaurants and cafes. Its a fantastic place to live.

14 Accommodation - Entrance Porch/Study
Shower Room
Kitchen/Breakfast Room
Dining Room
Utility Room
Living Room
Snug
Conservatory
Stairs to Landing
Bedroom Three
Bedroom One with Sink
Bedroom Two
Family Bathroom.

14A Accommodation - Utility Room
Kitchen with Breakfast Bar
Dining Room
Bedroom One
Shower Room
Stairs to
Living Room
Bedroom Two with Ensuite and Built in Storage

Outbuilding - A large outbuilding which has electric inside providing fantastic storage or the capacity to be used as a workshop.

Garden Room - Providing a fantastic space to be utilised as a hobbies room or home office which is enhanced by electrics, water and insulation meaning it can be used all year round.

Parking - Gravelled driveway providing off road parking for plenty of cars.

Outside - The beautifully landscaped gardens surrounding the property extend to just over one acre and have been carefully designed to take full advantage of the space and setting. The grounds are a true feature of the home, offering a wonderful balance of open lawned areas, established planting, and thoughtfully arranged garden features. The garden flows naturally around the property, with defined areas that create both structure and interest. There are wide expanses of neatly maintained lawn, interspersed with mature trees and shrubs that provide colour and texture throughout the seasons aswell as small pond areas that brings an added touch of tranquility. The garden also benefits from a variety of seating areas and open spaces, ideal for entertaining or simply relaxing and enjoying the peaceful rural setting aswell as the sea views.

Services - Mains water, electricity. LPG central heating. Each property has their own septic tank.

Rights Of Way - The neighbouring property has pedestrian and vehicular access over the driveway to their garage.

Council Tax Band- C & A -

What3words - ///ports.aunts.chaos

Anti Money Laundering Regulations - Purchasers - It is a legal requirement that we receive verified ID from all buyers before a sale can be instructed. We will inform you of the process once your offer has been accepted.

Proof Of Finances - Before agreeing a sale, we will require proof of your financial ability to purchase. We will inform you of what we require prior to agreeing a sale.

Broadband & Mobile Phone Coverage - To check the broadband coverage for this property please visit https://www.openreach.com/fibre-broadband. To check mobile phone coverage please visit https://checker.ofcom.org.uk/

Property Ref: 23459_34243154

Share:

Similar Properties

Wendron Nr Helston, Home with approximately 1.75 acres

4 Bedroom Detached House | Offers in excess of £855,000

The property is now being sold in three lots, this lot benefits from approximately 1.75acres just short walk away, this...

Rural Property with income streams, Millpool

7 Bedroom Detached House | Guide Price £849,950

Nestled in the picturesque rural setting of Millpool, this charming detached house offers a unique opportunity for those...

Barn conversion set within generous grounds, Crowntown

5 Bedroom Barn Conversion | Guide Price £833,000

Situated in the charming and sought after village of Crowntown, this stunning barn conversion offers a unique blend of m...

Large family home with stunning views - Coverack Bridges

7 Bedroom Character Property | Guide Price £895,000

This captivating country property is perfectly tailored for a family home with the addition of a versatile annexe - perf...

Wendron, Charming home with approx 6.37 acres

4 Bedroom Detached House | Offers in excess of £895,000

The property is now offered in three separate lots. This particular lot includes a beautifully maintained detached 4/5 b...

Wendron Nr Helston, Detached home with approx 10.52 acres

4 Bedroom Detached House | Offers in excess of £950,000

This property is now available in three lots, including a beautifully presented detached 4/5 bedroom home accompanied by...

The Mather Partnership (Helston)

Helston, Cornwall, TR13 8AA

01326 565016

How much is your home worth?

Use our short form to request a valuation of your property.

Request a Valuation

Mortgage Calculator

Amount Borrowed: £
Total Amount Repayable: £
Total Monthly Payment: £
©2026 The Guild of Property Professionals. All rights reserved. Terms and Conditions | Privacy Policy | Cookie Policy | Complaints Policy | Members Login
The Guild of Property Professionals Trading Address: 121 Park Lane, London W1K 7AG. GPEA Limited. Registered in England & Wales.  Company No: 02819824.  Registered Office Address: 2 St. Stephen's Court, St. Stephen's Road, Bournemouth, Dorset, England, BH2 6LA.  VAT Registration No: 576 8795 61
Book a Property Valuation Update Cookies Preferences