New Street, St. Helens

£270,000

3 Bedroom Semi-Detached House for sale in St. Helens

1 3 2
  • Exclusive Brand New Build Houses
  • Private Developer With August 2026 Targeted Completion Date
  • Three Storey Town House
  • Three Bedrooms
  • En Suite To Master
  • Handy Ground Floor WC
  • Built To Regulations And NHBC Will Be Provided
  • Driveway Parking
  • Sought After Location
  • RESERVE YOUR PLOT TODAY!

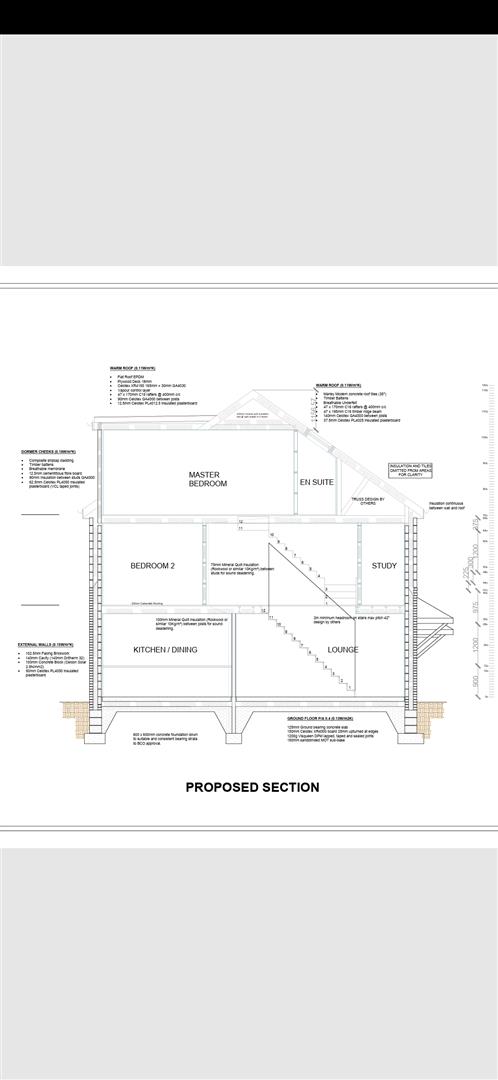
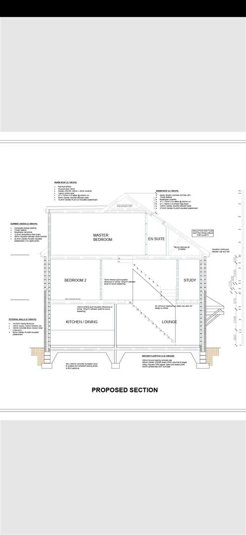
Currently under construction on a lovely spot on New Street in the charming town of St. Helens, this three storey town house presents a unique opportunity to secure one of only four exclusive new build homes. Anticipated for completion in August 2026, this three-storey townhouse is designed to meet modern regulations, ensuring both comfort and safety, with an NHBC certificate provided for your peace of mind.

Plots One & Four are End Town Houses priced at £280,000, plots Two & Three are the Mid-Townhouses priced at £270,000.

Upon entering, you will find a hallway leading to a spacious lounge that flows seamlessly into an open-plan kitchen diner, perfect for entertaining family and friends. The ground floor also features a convenient WC, enhancing the practicality of the living space. Ascending to the first floor, you will discover two well-proportioned bedrooms accompanied by a stylish bathroom. The master bedroom, located on the top floor, boasts an en suite, providing a private retreat for relaxation.

This property is thoughtfully designed with quality fixtures and fittings throughout, ensuring a contemporary and stylish living environment. Additionally, the home offers driveway parking for one vehicle, a valuable feature in this popular location. Families will appreciate the proximity to local schools, making it an ideal choice for those with children.

This is a rare chance to invest in a modern home in a desirable area, combining comfort, convenience, and contemporary living. Don’t miss out on the opportunity to make this exceptional property your own.

Important Information

  • This is a Freehold property.

Property Ref: 34555043

Share:

Similar Properties

New Street, St. Helens

3 Bedroom Semi-Detached House | £270,000

Currently under construction on a lovely spot on New Street in the charming town of St. Helens, this three storey town h...

Carmelite Crescent, Eccleston, St. Helens

3 Bedroom Semi-Detached House | £265,000

Located in the highly sought-after area of Eccleston, St Helens, this impressive extended three-bedroom semi-detached ho...

Cambridge Road, St. Helens

3 Bedroom End of Terrace House | £250,000

***ATTENTION INVESTORS - THREE SEPARATE TENANTS IN SITU WISHING TO REMAIN***Nestled in the heart of St. Helens, this rem...

Broadway, Eccleston, St. Helens

3 Bedroom Semi-Detached House | £279,000

Perfectly positioned in a tranquil cul-de-sac section in the charming area of Broadway, Eccleston, this immaculately pre...

Slag Lane, Haydock, St. Helens

2 Bedroom Detached Bungalow | £279,500

NO UPWARD CHAIN INVOLVED We as agents are delighted to offer for sale this beautiful detached bungalow situated on a lar...

Moss Bank Road, St. Helens

3 Bedroom Semi-Detached House | £280,000

Welcome to this charming extended semi-detached house located on Moss Bank Road in St. Helens. This delightful property...

Stapleton Derby (St. Helens)

St. Helens, WA10 1SX

01744 883322

How much is your home worth?

Use our short form to request a valuation of your property.

Request a Valuation

Mortgage Calculator

Amount Borrowed: £
Total Amount Repayable: £
Total Monthly Payment: £
©2026 The Guild of Property Professionals. All rights reserved. Terms and Conditions | Privacy Policy | Cookie Policy | Complaints Policy | Members Login
The Guild of Property Professionals Trading Address: 121 Park Lane, London W1K 7AG. GPEA Limited. Registered in England & Wales.  Company No: 02819824.  Registered Office Address: 2 St. Stephen's Court, St. Stephen's Road, Bournemouth, Dorset, England, BH2 6LA.  VAT Registration No: 576 8795 61
Book a Property Valuation Update Cookies Preferences