St Issey, PL27

£585,000
SSTC
This property listing is now SSTC

4 Bedroom Detached House for sale in St Issey

1 4 4
  • ENCLOSED GARDEN * TWO PARKING SPACES
  • UTILITY ROOM * FAMILY BATHROOM
  • TWO EN-SUITE FACILITIES
  • FOUR BEDROOMS
  • IPRESSIVE OPEN PLAN KITCHEN/LIVING ROOM/DINING ROOM
  • CARBON NEUTRAL PROPERTY WITHIN UNIQUE DEVELOPMENT
  • PHOTOVOLTAIC ELECTRICITY SUPPLY
  • GROUND SOURCE HEAT PUMP
  • CONTEMPORARY STYLE
  • VILLAGE LOCATION

3 The Oaks is an impressive 4 bedroom family residence, located within a unique, brand new carbon neutral development located within the heart of the village of St Issey. 
 
Designed by an award winning architect John Newton RIBA is this delightful detached property built of a handmade oak frame alongside a ground source heating system, borehole water supply and photovoltaic electric supply with battery storage.
 
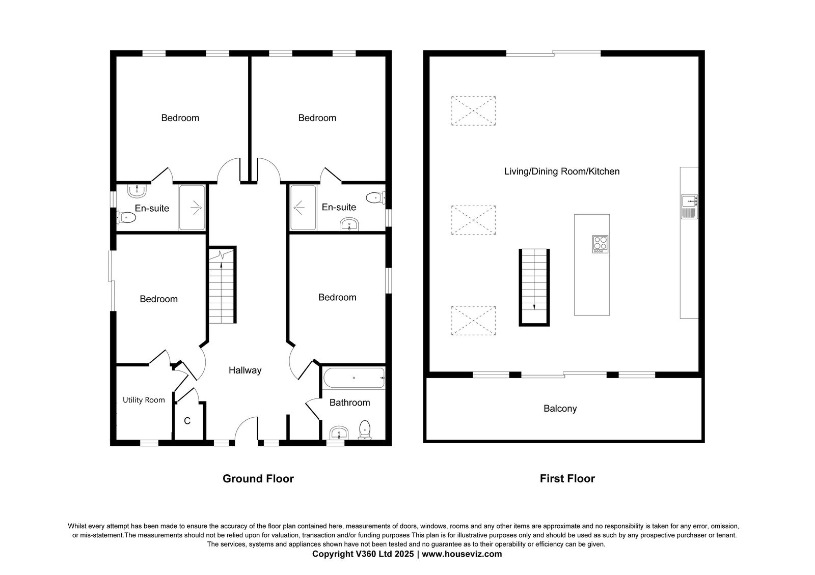
Located on the ground floor is a spacious entrance hall leading to four good sized bedrooms, with two contemporary style en-suite facilities, family bathroom and separate family shower room.
 
At first floor level is an impressive open plan kitchen/living room/dining room with feature high vaulted ceiling with handmade oak A frame, beams and detailing.  The kitchen area comprises of contemporary style base units, central island unit and built-in eye level double oven.
 
There is an enclosed rear garden and two allocated parking spaces.
 
The concept behind The Oaks is that each of the six properties have been built with forward thinking for the purpose of maintenance free occupation and a future with no energy costs and carbon neutrality with the benefit of heat from a district ground source heat pump system that supplies all heating and hot water requirements.  The property has its own battery backed 4KW photovoltaic electrical supply and benefits from a dedicated water treatment works which delivers pure borehole water.  Additionally, the property is connected to mains electricity and south west water supplies if ever required.  
 
The property benefits from underfloor heating throughout with each room having its own dedicated thermal control and there is LED lighting alongside connectivity and supply for an EV charger if required.
 
A viewing is advised to fully appreciate the qualities this property has to offer.

The village of St Issey is located equidistant between the harbour town of Padstow and the former market town of Wadebridge. The village benefits from a public house, church, primary school and village hall. 

The property would be ideal as a permanent or holiday home.

A viewing is strongly recommended to appreciate the qualities this property has to offer.

ACCOMMODATION WITH ALL MEASUREMENTS BEING APPROXIMATE:

GLAZED FRONT ENTRANCE DOOR WITH GLAZED PANELS TO SIDE INTO:

ENTRANCE HALLWAY
Cupboard housing heat exchanger and electricity consumer unit, 5 inset ceiling spotlights, power points, stairs to first floor, doors to:
BEDROOM ONE - 3.53m x 3.45m (11'6" x 11'3")
Two double glazed windows overlooking rear elevation, 4 inset ceiling spotlights, television point, power points, door to:
EN-SUITE SHOWER ROOM - 1.37m x 2.58m (4'5" x 8'5")
Frosted double glazed window, enclosed double shower cubicle with glazed screen and drencher head and hand shower over, low level WC, pedestal wash hand basin, heated towel rail, Nuance wall panelling, 2 inset ceiling spotlights, extractor fan.
BEDROOM TWO - 3.53m x 3.43m (11'6" x 11'3")
Two double glazed windows overlooking rear elevation, 4 inset ceiling spotlights, television point, power points, door to:
EN-SUITE SHOWER ROOM - 2.57m x 1.37m (8'5" x 4'5")
Frosted double glazed window, enclosed double shower cubicle with glazed screen with drencher head over and hand shower, low level WC, pedestal wash hand basin, heated towel rail, Nuance wall panelling, 2 inset ceiling spotlights, extractor fan.
BEDROOM THREE - 3.46m x 2.6m (11'4" x 8'6")
Double glazed window to side elevation, power points, television point, 4 inset ceiling spotlights, door to:
BEDROOM FOUR - 3.47m x 2.6m (11'4" x 8'6")
Double glazed patio doors to side elevation, power points, television point, 4 inset ceiling spotlights, door to:
UTILITY ROOM - 2.15m x 1.6m (7'0" x 5'2")
Frosted double glazed window, heated towel rail, 2 inset ceiling spotlights, extractor fan, door to hallway.
FAMILY BATHROOM - 2.14m x 1.68m (7'0" x 5'6")
Frosted double glazed window, panelled bath with glazed screen to side with drencher head over and side shower, low level WC, pedestal wash hand basin, Nuance wall panelling, heated towel rail, extractor fan, 2 inset ceiling spotlights.
STAIRS TO FIRST FLOOR

OPEN PLAN KITCHEN/LIVING ROOM/DINING ROOM - 8.69m x 7.26m (28'6" x 23'9")
Impressive room with vaulted ceiling and oak beams.  Range of base units with inset single stainless steel single drainer sink and Quartz worksurface over, central island with inset Fabor induction hob with central downdraft extractor fan, integrated Bosch dishwasher, integrated fridge, power points, television point, 3 ceiling lights, double glazed patio doors with glazed ballustrade enjoying views over the rear elevation to open countryside. Further patio doors overlooking front elevation with glazed panels to side open to:
BALCONY - 7.21m x 1.96m (23'7" x 6'5")
With glazed balustrade.
OUTSIDE

GARDEN
Enclosed rear garden with access via both side of the property.
 
STORAGE SHED - 5.4m x  by 3.1m 
PARKING
There is allocated parking for two vehicles.

PLEASE NOTE - Photos taken before the garden has been extended and storage shed added - up to date photos coming soon

TENURE
Freehold
COUNCIL TAX BAND
D

Important Information

  • This is a Freehold property.

Property Ref: 1091000

Share:

Similar Properties

St. Eval, PL27

4 Bedroom Bungalow | £565,000

Immaculately presented semi-detached 3/4 bedroom bungalow with garage, workshop, hot tub and covered bar, attractive bri...

Padstow, PL28

3 Bedroom Detached House | £559,999

An immaculately presented detached 3 bedroom family home boasting impressive open plan living accommodation, utility/clo...

Penrose, Wadebridge, PL27

3 Bedroom Semi-Detached House | £545,000

A picturesque character cottage with self contained annexe benefitting from three bedrooms in a glorious rural setting o...

St Merryn, PL28

3 Bedroom Detached House | £595,000

Enjoying a private and secluded setting this 3 bedroom (1 bathroom and 1 en-suite) detached bungalow with secluded South...

Padstow, PL28

5 Bedroom Terraced House | Guide Price £600,000

Magnificent Grade II listed period town house retaining a wealth of original features together with double garage.  EPC:...

Harlyn Bay, PL28

3 Bedroom Semi-Detached House | £600,000

A contemporary and spacious 3 bedroom semi detached family home located within 150m of Harlyn's beautiful Sandy Beach. ...

Cole Rayment & White (Padstow)

Padstow, Cornwall, PL28 8AB

01841 533386

How much is your home worth?

Use our short form to request a valuation of your property.

Request a Valuation

Mortgage Calculator

Amount Borrowed: £
Total Amount Repayable: £
Total Monthly Payment: £
©2026 The Guild of Property Professionals. All rights reserved. Terms and Conditions | Privacy Policy | Cookie Policy | Complaints Policy | Members Login
The Guild of Property Professionals Trading Address: 121 Park Lane, London W1K 7AG. GPEA Limited. Registered in England & Wales.  Company No: 02819824.  Registered Office Address: 2 St. Stephen's Court, St. Stephen's Road, Bournemouth, Dorset, England, BH2 6LA.  VAT Registration No: 576 8795 61
Book a Property Valuation Update Cookies Preferences