Plot in desirable location, Carbis Bay

Guide Price
£299,000

Plot for sale in St. Ives

  • PLOT WITH PLANNING PERMISSION
  • OPPORTUNITY TO CREATE YOUR DREAM HOME
  • SEA AND COASTAL VIEWS
  • SOUGHT AFTER LOCATION
  • EPC- EXEMPT
  • COUNCIL TAX BAND- EXEMPT
  • FREEHOLD TENURE

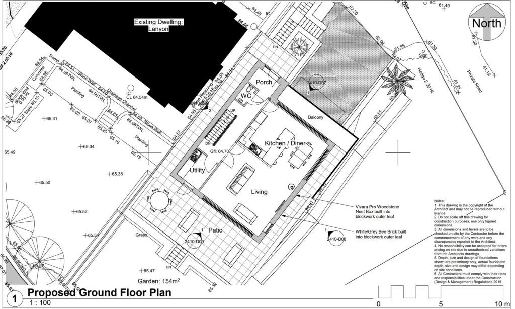
Nestled in the picturesque Carbis Bay, St. Ives, this exceptional building plot presents a rare opportunity to create your dream home. With planning permission already granted for a contemporary detached dwelling, the plot offer the potential for a stunning residence that will perfectly complement the breathtaking surroundings. The location is highly sought after, known for its stunning beaches and vibrant coastal community. From this prime position, you will enjoy magnificent sea and coastal views, providing a serene backdrop to your future home. The approved design includes four spacious bedrooms, an integral garage, and a garden, offering ample space for family living and outdoor enjoyment. The further documents related to the planning permission can be accessed under reference PA24/09518, ensuring you have all the necessary information to proceed with your plans. Embrace the opportunity to build in one of Cornwall's most desirable locations, where the beauty of nature meets the charm of coastal living. This is a chance to invest in a property that promises both comfort and a lifestyle enriched by the stunning surroundings of Carbis Bay.
Guide Price - £299,000 -
Location - Carbis Bay, located near St Ives in Cornwall, is a picturesque seaside village known for its stunning crescent-shaped beach with golden sands and clear, calm waters. The area is perfect for families and those seeking tranquility, offering activities like paddle boarding and swimming. Carbis Bay gained international recognition when it hosted the G7 Summit in 2021. The South West Coast Path runs through the village, providing scenic walks to nearby attractions. Carbis Bay offers an excellent and well renowned junior school along with a number of quality restaurants and pub. There is a local Tesco supermarket. The internationally renowned Carbis Bay Hotel is located directly above the beach and now incorporates the famed Ugly Butterfly restaurant.
Outside - The finished property will benefit from off road parking in front of an integral garage, and a patio area and garden to the rear elevation.
Agents Note - The planning permission has a CIL liability totaling £29,140.57. The planning permission warrants the construction of a detached dwelling with an H2 restriction, meaning it can not be used as a holiday home once built. Further information can be found on the Cornwall Council planning portal, under reference number PA24/09518.
Council Tax Band- Exempt -
What3words - ///unicorns.zealous.woof
Anti Money Laundering Regulations – Purchasers - It is a legal requirement that we receive verified ID from all buyers before a sale can be instructed. We will inform you of the process once your offer has been accepted.
Proof Of Finances - Before agreeing a sale, we will require proof of your financial ability to purchase. We will inform you of what we require prior to agreeing a sale.
Broadband & Mobile Phone Coverage - To check the broadband coverage for this property please visit check mobile phone coverage please visit

Important Information

  • This is a Freehold property.

Property Ref: 485609

Share:

Similar Properties

Helston, Modernised two bed bungalow

2 Bedroom Detached Bungalow | Guide Price £295,000

Located on a popular estate that is entirely on the flat, this modernised two bedroom bungalow is ready to move straight...

Helston, Stylish three bedroom home

3 Bedroom Semi-Detached House | Guide Price £290,000

Set within a sought after residential area, this stylish three bedroom semi detached home has been tastefully modernised...

Helston, Spacious three bed home

3 Bedroom Terraced House | Guide Price £290,000

Situated in a convenient and well connected location, this beautifully presented three bedroom mid terrace home offers s...

Charming cottage nearby to town, Hayle

3 Bedroom Cottage | Guide Price £299,950

Nestled on Millpond Avenue in the picturesque town of Hayle, this charming double-fronted terraced cottage is a delightf...

High Specification Barn conversion, Breage

1 Bedroom Semi-Detached House | Guide Price £299,950

Located in a highly sought-after area, this charming one bedroom property, currently used as a successful holiday let, i...

Tucked away home close to the town, Helston

3 Bedroom Town House | Offers in excess of £300,000

Step inside this captivating Grade II listed Georgian home, tucked away in a peaceful mews just off elegant Cross Street...

The Mather Partnership (Helston)

Helston, Cornwall, TR13 8AA

01326 565016

How much is your home worth?

Use our short form to request a valuation of your property.

Request a Valuation

Mortgage Calculator

Amount Borrowed: £
Total Amount Repayable: £
Total Monthly Payment: £
©2026 The Guild of Property Professionals. All rights reserved. Terms and Conditions | Privacy Policy | Cookie Policy | Complaints Policy | Members Login
The Guild of Property Professionals Trading Address: 121 Park Lane, London W1K 7AG. GPEA Limited. Registered in England & Wales.  Company No: 02819824.  Registered Office Address: 2 St. Stephen's Court, St. Stephen's Road, Bournemouth, Dorset, England, BH2 6LA.  VAT Registration No: 576 8795 61
Book a Property Valuation Update Cookies Preferences