Copse Road, St Johns, Surrey, GU21

Guide Price
£225,000
SSTC
This property listing is now SSTC

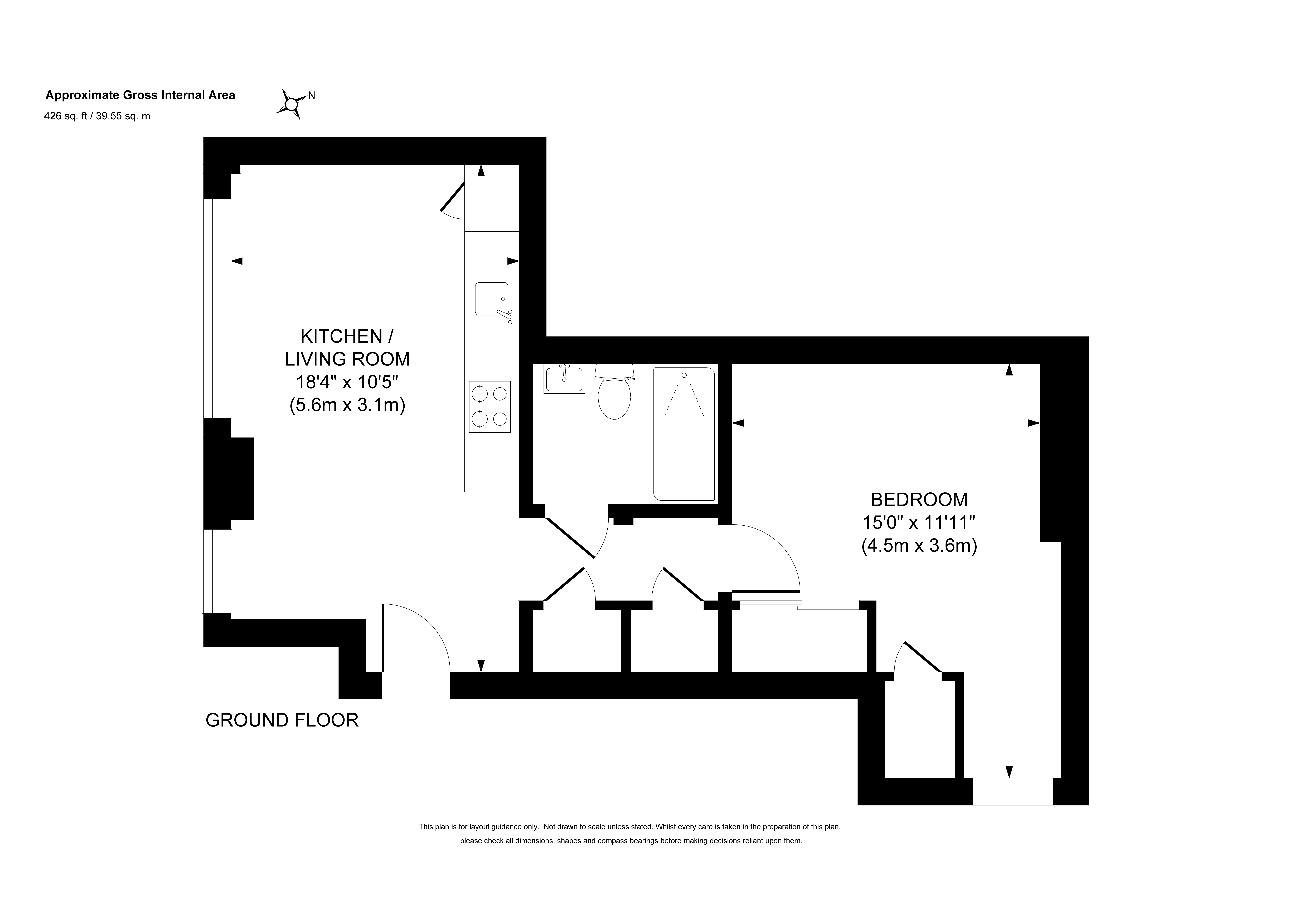
1 Bedroom Apartment for sale in St Johns

1 1 1
  • Ground Floor Apartment
  • Double Bedroom
  • Luxury kitchen
  • Stunning Bathroom
  • Bright and Spacious Living/Dining Room
  • High ceilings
  • Allocated parking
  • Quiet St John's village location

Welcome to this delightful modern ground-floor apartment, nestled in the heart of St Johns village. Offering one spacious bedroom, a comfortable reception room, and a contemporary bathroom, this well-presented home provides a stylish and inviting living space perfect for first time buyers, or those looking to downsize.

Beautifully maintained and filled with natural light, the apartment boasts a bright and airy feel throughout. Ideally located within walking distance of local shops, amenities, and public transport links, it offers the perfect blend of village charm and everyday convenience.

Additional benefits include residents’ parking and off-street parking, providing ease and flexibility for both homeowners and guests.

Don’t miss the chance to secure this appealing home in a highly sought-after location. Contact us today to arrange a viewing and discover all this lovely apartment has to offer.

Important Information

  • This is a Leasehold property.

Property Ref: WOK240620

Share:

Similar Properties

Woking, Surrey, GU22

1 Bedroom Apartment | Guide Price £225,000

A well-presented top floor apartment located within the ever-popular Mount Hermon area of Woking, within walking distanc...

Oriental Road, Woking, Surrey, GU22

1 Bedroom End of Terrace House | Offers Over £225,000

Charming One Bedroom End of Terrace Home Close to Woking Town Centre.Welcome to this delightful end of terrace house, id...

Woking, Surrey, GU22

2 Bedroom Apartment | Guide Price £225,000

This fantastic two-bedroom ground-floor flat is ideally located just a 10-minute walk from Woking Station, set on the le...

Woking, Surrey, GU22

1 Bedroom Apartment | Guide Price £230,000

A beautifully presented ground floor apartment located within the popular Olympian Heights development in Woking, offere...

Oriental Road, Woking, Surrey, GU22

1 Bedroom End of Terrace House | £230,000

Freehold one-bedroom house positioned in a popular development on the edge of Woking Town Centre.

Woking, Surrey, GU22

1 Bedroom Apartment | Guide Price £230,000

Situated within a highly regarded and attractive development in Woking, this rarely available first-floor apartment offe...

Seymours (Woking)

Woking, Surrey, GU21 6XR

01483 757700

How much is your home worth?

Use our short form to request a valuation of your property.

Request a Valuation

Mortgage Calculator

Amount Borrowed: £
Total Amount Repayable: £
Total Monthly Payment: £
©2026 The Guild of Property Professionals. All rights reserved. Terms and Conditions | Privacy Policy | Cookie Policy | Complaints Policy | Members Login
The Guild of Property Professionals Trading Address: 121 Park Lane, London W1K 7AG. GPEA Limited. Registered in England & Wales.  Company No: 02819824.  Registered Office Address: 2 St. Stephen's Court, St. Stephen's Road, Bournemouth, Dorset, England, BH2 6LA.  VAT Registration No: 576 8795 61
Book a Property Valuation Update Cookies Preferences