Bolden Street

Asking Price
£400,000
SSTC
This property listing is now SSTC

1 Bedroom Ground Floor Flat for sale in St Johns

1 1 1
  • Chain free
  • Private Garden
  • Own Entrance
  • Long lease
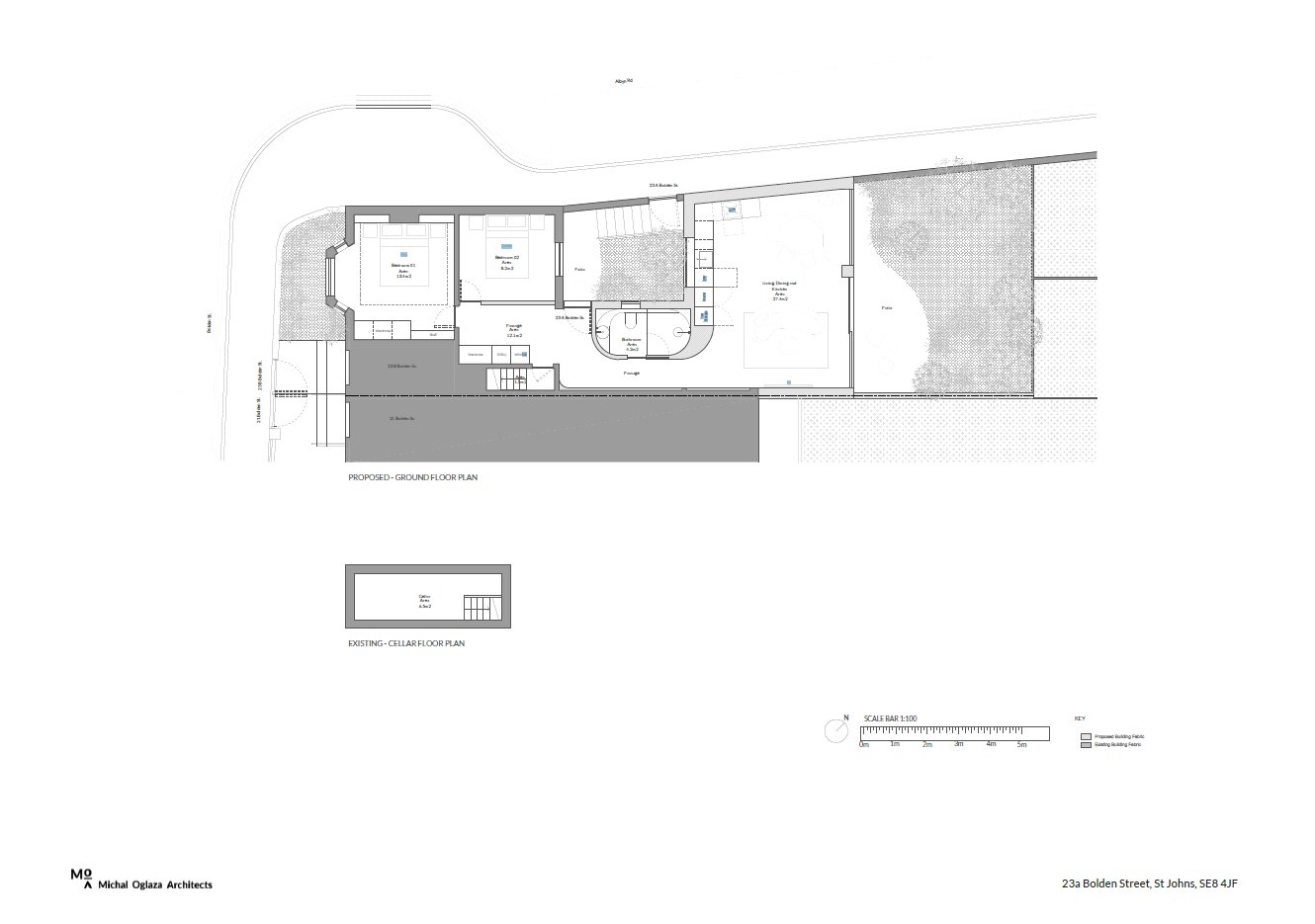
  • Scope for extension

*Guide Price £400,000 - £425,000*

A rare opportunity to purchase this larger than average one-bedroom ground-floor flat, which has tremendous scope for extension to the side or the rear (subject to the necessary planning and building consents), and benefits from a long lease and its own entrance.

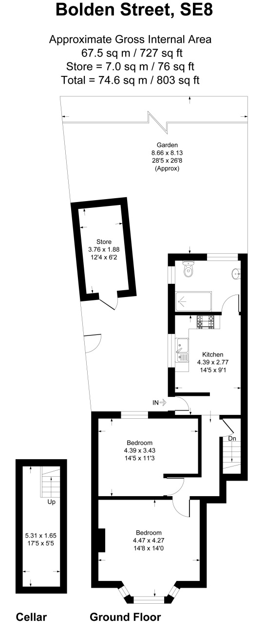
The property measures in excess of 725 square feet and is located on a popular road within the St John's conservation area. The property is also being sold with the added advantage of no onward chain.

Key features include a bright front reception room (currently used as a bedroom), boasting a large bay window, a double bedroom, a neutral bathroom, a cellar, and a large kitchen diner.

Externally, there is direct access to a private garden measuring approximately 30ft, as well as a large shed/outbuilding.

For transport, you will find access to Deptford Station and New Cross Station (Zone 2) for fast commutes to London Bridge, Cannon Street and the wider London network.

You are just a short stroll to Deptford Market Yard, local shops, cafés, Deptford Park, and creative spaces.

This advert contains some computer generated images and architect designs which illustrate potenial future development options.

Important Information

  • This is a Leasehold property.
  • EPC Rating is D

Property Ref: BBY250139

Share:

Similar Properties

Wickham Road, London

2 Bedroom Ground Floor Flat | Asking Price £400,000

| Chain Free | Split level maisonette | Private front door | Private garden | Large communal garden | Internal accommoda...

Arica Road, London

1 Bedroom Ground Floor Flat | Guide Price £400,000

Guide Price of £400,000-£420,000 | One double bedroom | Ground-floor | Period conversion | Desirable Street | Private ga...

Loampit Hill, London

2 Bedroom Flat | Asking Price £375,000

| Two bedrooms | Quiet neighbourhood | Double glazed windows | Access to a well presented communal garden | Excellent tr...

Darfield Road

1 Bedroom Flat | Asking Price £425,000

| Double bedroom | Private garden | Garden Summer house/studio | Newly modernised | Close to Public transport | Popular...

Sunnyside, Blythe Hill

2 Bedroom End of Terrace House | Offers in excess of £425,000

| Offers between £425,000 - £450,000 | Private garden | Two bedrooms | Chain free | Close to local amenities | EPC ratin...

Crofton Park Road, London

1 Bedroom Ground Floor Flat | Offers in excess of £425,000

| Chain free | Share of freehold | In excess of 620 Square feet | Large private garden | Edwardian style property | Pote...

Bryan & Keegan (Lewisham)

190 Hither Green Lane, Lewisham, London, SE13 6QB

0208 852 2388

How much is your home worth?

Use our short form to request a valuation of your property.

Request a Valuation

Mortgage Calculator

Amount Borrowed: £
Total Amount Repayable: £
Total Monthly Payment: £
©2026 The Guild of Property Professionals. All rights reserved. Terms and Conditions | Privacy Policy | Cookie Policy | Complaints Policy | Members Login
The Guild of Property Professionals Trading Address: 121 Park Lane, London W1K 7AG. GPEA Limited. Registered in England & Wales.  Company No: 02819824.  Registered Office Address: 2 St. Stephen's Court, St. Stephen's Road, Bournemouth, Dorset, England, BH2 6LA.  VAT Registration No: 576 8795 61
Book a Property Valuation Update Cookies Preferences