Vicarage Road, Brewood, Stafford ST19

Asking Price
£350,000
SSTC
This property listing is now SSTC

3 Bedroom House for sale in Stafford

2 3 1
  • Village location
  • Immaculate presentation
  • Converted garage > utility & store
  • Landscaped rear garden
  • Ample driveway
  • Viewings available

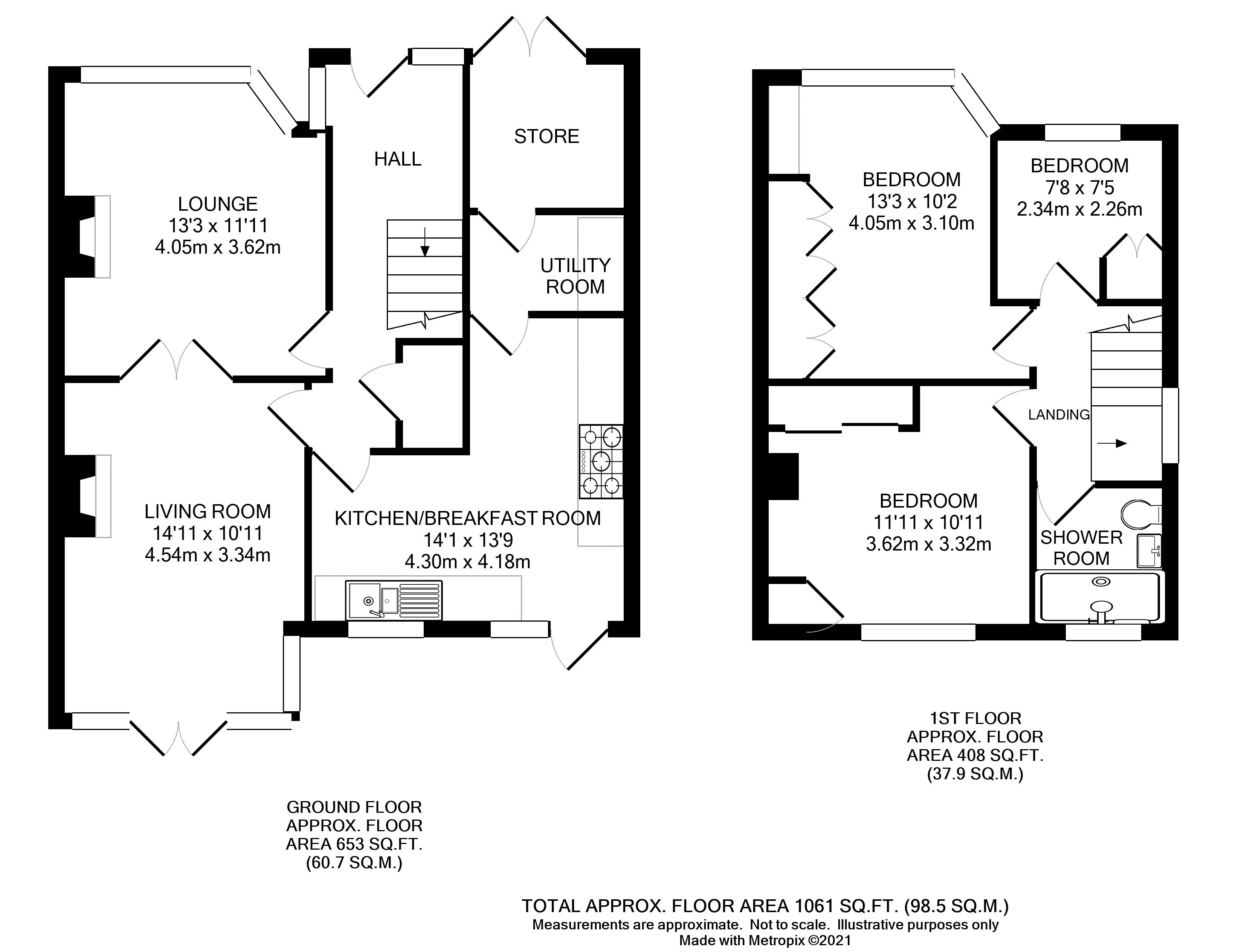
Located within the heart of Brewood village which continues to be a sought after location due to local schooling, independent shops, cafes and road network access this semi detached home is presented to an exceptionally high standard with accommodation comprising of an entrance hall, 2 reception rooms, breakfast kitchen, utility & store, 3 bedrooms, stunning bathroom, immaculate rear garden and an ample driveway to the fore.

EPC D64











Anti Money Laundering & Proceeds of Crime Acts
: To ensure compliance with the Anti Money Laundering Act and Proceeds of Crime Act: All intending purchasers must produce identification documents prior to the memorandum of sale being issued. If these are not produced in person we will require certified copies from professionals such as doctor, teacher, solicitor, bank manager, accountant or public notary, To avoid delays in the buying process please provide the required documents as soon as possible. We may also use an online service provider to also confirm your identity. A list of acceptable ID documents is available upon request. We will also require confirmation of where the funding is coming from such as a bank statement with funding for deposit or purchase price and if mortgage finance is required a mortgage agreement in principle from your chosen lender.

 

 

 

 

Important Information

  • This is a Freehold property.

Property Ref: EAXML985_8656800

Share:

Similar Properties

Clark Road, Compton, Wolverhampton, WV3

4 Bedroom Semi-Detached House | Offers in region of £350,000

No upward chain.A stunning period residence which has undergone a tremendous amount of thoughtful updating to effortless...

Wrottesley Road, Tettenhall, Wolverhampton WV6

3 Bedroom House | Offers in region of £350,000

An individually designed detached home is found on one of Wolverhampton's most sought after and prestigious roads surrou...

Eastleigh, Sedgley, Dudley, DY3

4 Bedroom Semi-Detached House | Offers in region of £350,000

Occupying a choice position in a popular and established residential area this much improved and sympathetically extende...

Birches Road, Codsall, Wolverhampton, WV8

3 Bedroom Semi-Detached House | Offers in region of £365,000

A fine opportunity to purchase a semi-detached property within a popular and sought after location is placed most conven...

Castlecroft Road, Castlecroft, Wolverhampton WV3

4 Bedroom House | Offers in region of £365,000

Set conveniently to local shops and amenities as well as being placed within the catchment area of a number of desired s...

Windsor Gardens, Castlecroft, Wolverhampton WV3

4 Bedroom Semi-Detached House | Offers in region of £375,000

Set conveniently to local shops and amenities as well as being placed within the catchment area of a number of desired s...

Nick Tart (Tettenhall)

Tettenhall, West Midlands, WV6 8QH

01902 755585

How much is your home worth?

Use our short form to request a valuation of your property.

Request a Valuation

Mortgage Calculator

Amount Borrowed: £
Total Amount Repayable: £
Total Monthly Payment: £
©2026 The Guild of Property Professionals. All rights reserved. Terms and Conditions | Privacy Policy | Cookie Policy | Complaints Policy | Members Login
The Guild of Property Professionals Trading Address: 121 Park Lane, London W1K 7AG. GPEA Limited. Registered in England & Wales.  Company No: 02819824.  Registered Office Address: 2 St. Stephen's Court, St. Stephen's Road, Bournemouth, Dorset, England, BH2 6LA.  VAT Registration No: 576 8795 61
Book a Property Valuation Update Cookies Preferences