Bishops Offley, Stafford, ST21

£300,000

2 Bedroom Semi-Detached House for sale in Stafford

1 2 1
  • Located in the hamlet of Bishops Offley, this charming two bedroom semi detached cottage offers a comfortable and modern feel, ideal for those looking to escape to a more rural setting and unwind.
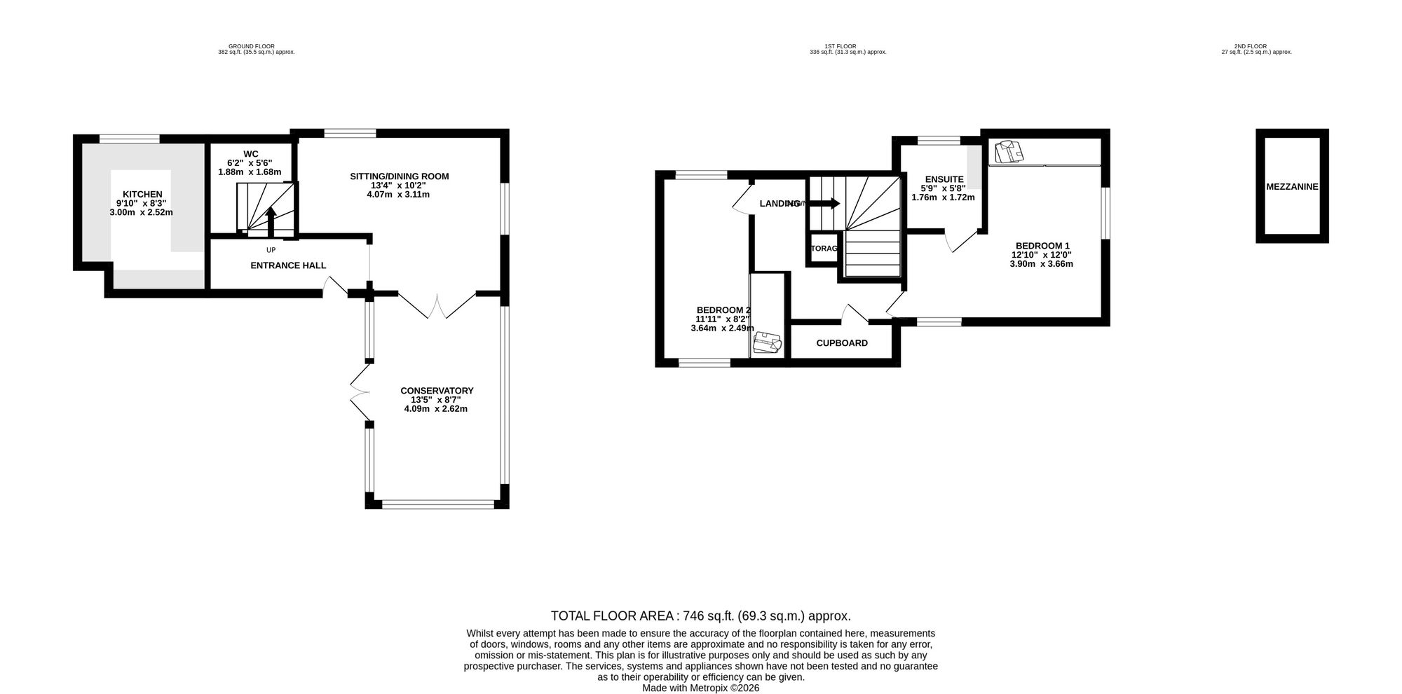
  • Upon entry, you're welcomed by a cosy sitting room, with a log burning fire and accessible W/C. This leads into spacious and inviting conservatory, filled with an abundance of natural lighting.
  • The kitchen space is well equipped with top of the range Siemens appliances, brilliant for those who love to cook. The beautiful tiled flooring and vast storage makes this room inviting and practi...
  • The master bedroom invites you in with a generous amount of space, grand exposed beams above, and a quaint window nook to relax on. Benefitting from an ensuite shower room, filled with natural lig...
  • The second bedroom offers versatility due to it's size which can work as both a spare room or home office. You can also access a mezzanine level from this floor which offers additional storage spa...

Nestled within an attractive residential setting, this charming two-bedroom semi-detached cottage beautifully combines traditional character with modern-day comfort, creating a warm and inviting home suited to a variety of lifestyles.

Upon entering the property, you are welcomed by a bright and inviting hallway that sets the tone for the rest of the home. This leads through to the cosy yet spacious living room, where a log-burning stove takes centre stage, providing both a striking focal point and a comforting atmosphere, perfect for relaxing evenings or unwinding during the colder months. The living room flows seamlessly into a light-filled conservatory, offering an additional versatile living space. This area is ideal for use as a dining space, reading nook, or simply a peaceful spot to enjoy views of the garden while benefiting from an abundance of natural light throughout the year.

The ground floor also features a well designed kitchen, thoughtfully equipped with ample storage and workspace, making it both practical and enjoyable for everyday cooking and entertaining. Completing the downstairs accommodation is a convenient WC, enhancing the functionality of the home for both residents and guests.

Upstairs, the property continues to impress with two comfortable and tastefully presented bedrooms. The principal bedroom benefits from generous built-in storage and a private ensuite, offering a sense of privacy and convenience. The second bedroom is equally appealing and highly versatile, making it suitable as a guest room, home office, nursery, or hobby space depending on your needs.

Throughout the home, a range of charming cottage-style features—such as exposed beams, warm wood finishes, and carefully selected design touches—enhance its character and create a welcoming, homely feel. These elements are thoughtfully balanced with modern upgrades, ensuring comfort without compromising on charm.

Externally, the property continues to offer practical benefits. The garden is designed to be low-maintenance, making it ideal for those who want to enjoy outdoor space without extensive upkeep. Whether used for relaxing, light gardening, or entertaining, providing an extension of the indoor living space. In addition, a separate garage offers valuable storage for vehicles, tools, or household items.

This delightful home is perfectly suited for those looking to downsize without sacrificing comfort, as well as buyers seeking a manageable property with character and charm. It also appeals to anyone wishing to embrace a quieter, more relaxed lifestyle while still enjoying modern conveniences.

Offering a rare combination of warmth, practicality, and timeless appeal, this cottage presents an excellent opportunity to acquire a truly special home. Early viewing is highly recommended to fully appreciate everything this unique and inviting property has to offer.

Important Information

  • This is a Freehold property.
  • This Council Tax band for this property is: D

Property Ref: 7d1be42d-7eb7-4700-9667-682b49502ce4

Share:

Similar Properties

Meadow View, Yarnfield, ST15

3 Bedroom Detached House | Offers in excess of £300,000

Ground floor living at its finest in this unique bungalow with ample parking, lush gardens, spacious lounge/diner, styli...

Bridge Court, Woodseaves, ST20

4 Bedroom Semi-Detached House | Offers in excess of £300,000

Hidden gem semi-detached home in Woodseaves with 4 beds and stunning views. Modern kitchen, spacious lounge/diner, maste...

Wheelwright Drive, Eccleshall, ST21

3 Bedroom Semi-Detached House | £300,000

Home Sweet Home has never felt so fun! Step into good vibes and great living with this feel-good, three-bed, two-bath se...

The Paddocks, Market Drayton, TF9

4 Bedroom Detached House | Offers in excess of £308,500

This impressive four-bedroom, two-bathroom detached house is a real front-runner, offering spacious, versatile family li...

Castle Meadows, Eccleshall, ST21

3 Bedroom Semi-Detached House | Price from £310,000

New development in Eccleshall. Beaufort: 3-bed semi-detached home with two bathrooms, open reception room and high-quali...

Castle Meadows, Eccleshall, ST21

3 Bedroom Semi-Detached House | Price from £310,000

New development in Eccleshall. Beaufort: 3-bed semi-detached home with two bathrooms, open reception room and high-quali...

James Du Pavey Estate Agents (Eccleshall)

Eccleshall, Staffordshire, ST21 6BH

01785 851886

How much is your home worth?

Use our short form to request a valuation of your property.

Request a Valuation

Mortgage Calculator

Amount Borrowed: £
Total Amount Repayable: £
Total Monthly Payment: £
©2026 The Guild of Property Professionals. All rights reserved. Terms and Conditions | Privacy Policy | Cookie Policy | Complaints Policy | Members Login
The Guild of Property Professionals Trading Address: 121 Park Lane, London W1K 7AG. GPEA Limited. Registered in England & Wales.  Company No: 02819824.  Registered Office Address: 2 St. Stephen's Court, St. Stephen's Road, Bournemouth, Dorset, England, BH2 6LA.  VAT Registration No: 576 8795 61
Book a Property Valuation Update Cookies Preferences