Eccleshall Road, Stafford, ST16

Offers in excess of
£795,000

5 Bedroom Detached House for sale in Stafford

2 5 2
  • Extensively renovated period home blending original features including high ceilings, coving, traditional doors, all with a sleek, modern finish throughout.
  • Spacious shaker-style kitchen/diner with quartz worktops, Belfast sink, island, breakfast bar, and high-end integrated appliances including wine cooler.
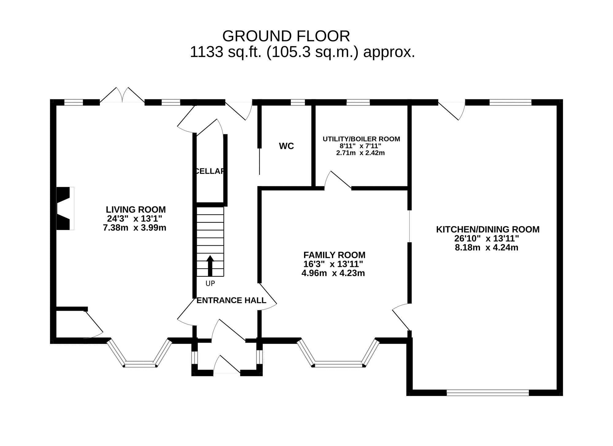
  • Flexible living spaces including bay-fronted family room, dual-aspect living room with open fire, plus cellar with potential for cinema or office.
  • Five bedrooms (four doubles), additional study/nursery, luxury bathroom with freestanding bath & views, plus separate high-spec shower room.
  • Landscaped South-West garden with porcelain patio & lawn, plus wrap-around driveway offering ample off-road parking in central Stafford location.

Dearest Reader, it is with the utmost delight that we unveil a residence most worthy of admiration. This beautifully presented period home has been thoughtfully and extensively renovated by its current owners, creating a space with high ceilings and original features, detailed coving and traditional doors, all while offering a sleek and contemporary finish, perfectly blending old and new.

An entrance porch with a stunning composite door welcomes you to kick off your coats and shoes before entering. Continue into a bright entrance hall that guides you seamlessly throughout the home. The beating heart of this home is a stunning kitchen/dining room with a traditional shaker-style kitchen with ample cabinetry space; integrated appliances, including a dishwasher, an American fridge/freezer, a range oven and hob, and a wine cooler; plus quartz marble-effect worktops, a dual Belfast sink, and a central island with further cabinetry and a double-sided breakfast bar for 6.

The versatile family room awaits with a deep bay window and plenty of room. Whether you prefer a separate dining space, living space, bar or games room, the options are endless. The living room is a bright, open space with dual-aspect windows and a feature open fire. Completing the ground floor is a convenient W/C and a utility/boiler room. Under the stairs provides access to a head-height cellar that is perfectly suited for storage or the potential to add a cinema room or office space.

Upstairs, you’ll discover five generously sized bedrooms, including four doubles, and a further single with its own dressing area. You have an additional versatile room that would be perfectly suited as a study/nursery. The family bathroom off the master bedroom boasts a sleek freestanding bath with views over Doxey Mashes and Stafford Castle, plus a high-spec corner shower, his-and-hers vanity sinks and W/C. The shower room also offers a high-spec shower, sink, and W/C and is perfect for busy family life.

Outside, a landscaped South-West facing rear garden awaits with an L-shaped porcelain patio seating space, well-placed planters, and a lush grass lawn. To the front, a walled entrance awaits, leading you into a wrap-around driveway with ample off-road parking.

The land sitting directly to the rear of the home offers an opportunity to purchase through separate negotiations and either develop or leave un-touched. Please contact our Stone office on 01785 814917 for further information.

Location

Living in central Stafford combines character, heritage, and modern amenities; it’s an ideal location for those seeking a lively atmosphere with everything on their doorstep. Offering vibrant, convenient living at the heart of one of Staffordshire’s most historic and attractive market towns.

The town centre boasts an excellent range of shops, cafés, restaurants, and leisure facilities, including independent boutiques, national retailers, and a selection of popular bars and eateries.

For commuters, Stafford railway station offers direct services to London, Birmingham, Manchester, and Liverpool, while the nearby M6 motorway (Junctions 13 and 14) provides easy road access across the Midlands and beyond.

Stafford town centre is also rich in history, with landmarks such as Stafford Castle, Victoria Park, and the Ancient High House offering culture and green space within easy reach. Residential options range from stylish apartments and period terraces to modern townhouses, appealing to families, professionals, downsizers, and investors alike.

Important Information

  • This is a Freehold property.
  • This Council Tax band for this property is: F
  • EPC Rating is D

Property Ref: bed5f1f9-7e36-43cf-8668-18068914b174

Share:

Similar Properties

Chase Lane, Tittensor, ST12

4 Bedroom Detached House | Offers in excess of £775,000

Welcome to Wellswood – where all’s well that ends well. Set proudly back from the highly sought-after Chase Lane, Wellsw...

Kibblestone Road, Oulton, ST15

4 Bedroom Detached House | £775,000

Beautifully restored four-bed detached home in Oulton. Spacious living, modern kitchen, landscaped garden, double garage...

Sandy Lane, Newcastle, ST5

4 Bedroom Detached House | £770,000

The secrets out on Sandy Lane… Tucked behind a curtain of leafy green and just enough mystery to make everyone pause wit...

Longton Road, Stoke-On-Trent, ST4

6 Bedroom Detached House | £799,950

Charming six-bed period cottage on 0.37 acres near Trentham Gardens. Includes detached two-bed annexe, stunning views, w...

Stallington Road, Blythe Bridge, ST11

7 Bedroom Detached House | £850,000

Grade II listed residence dating back to the 16th and 17th centuries offering 7 bedrooms, 3 reception rooms, with versat...

The Blythe, Stafford, ST18

7 Bedroom Detached House | Offers in region of £950,000

Wow is the only word for this property! Grade II listed, converted corn mill within 11.27 acres! Character features, out...

James Du Pavey Estate Agents (Stone)

Christchurch Way, Stone, Staffordshire, ST15 8BZ

01785 814917

How much is your home worth?

Use our short form to request a valuation of your property.

Request a Valuation

Mortgage Calculator

Amount Borrowed: £
Total Amount Repayable: £
Total Monthly Payment: £
©2026 The Guild of Property Professionals. All rights reserved. Terms and Conditions | Privacy Policy | Cookie Policy | Complaints Policy | Members Login
The Guild of Property Professionals Trading Address: 121 Park Lane, London W1K 7AG. GPEA Limited. Registered in England & Wales.  Company No: 02819824.  Registered Office Address: 2 St. Stephen's Court, St. Stephen's Road, Bournemouth, Dorset, England, BH2 6LA.  VAT Registration No: 576 8795 61
Book a Property Valuation Update Cookies Preferences