Light Oaks Estate, Oakamoor, Staffordshire, ST10 3AN

Guide Price
£575,000

3 Bedroom Semi-Detached House for sale in Staffordshire

2 3 2
  • Bolton Lodge; an exceptional Grade II listed residence
  • Set within the prestigious and historic Lightoaks Estate
  • Surrounded by mature woodland and beautifully maintained grounds
  • Exceptionally well maintained and enhanced by the current owners
  • Superb Breakfast Kitchen with Central Island and Quality Integrated Appliances
  • Sizeable Lounge with Multi-Fuel Stove which leads on to separate Dining Room
  • Downstairs WC and Spacious Cellar with Utility Area
  • Three Large Double Bedrooms, Ensuite Shower Room and Family Bathroom
  • Lovely Private Courtyard and Garden. Two Allocated Parking Spaces plus Guest Parking
  • Viewing ESSENTIAL!

CALL US TO ARRANGE A VIEWING 9AM TO 9PM 7 DAYS A WEEK!

** GUIDE PRICE £575,000 to £585,000 **

"Beauty of proportion and clarity of design are the hallmarks of classical architecture" Sir John Soane

Bolton Lodge is a stunning Grade II listed residence set within the historic and prestigious Lightoaks Estate in Oakamoor. Offering a rare blend of period charm and modern comfort, the property comprises spacious and well-balanced accommodation, including three double bedrooms, a principal suite with ensuite, and a beautifully appointed kitchen at the heart of the home. Surrounded by private gardens and mature woodland, Bolton Lodge provides a tranquil, semi-rural lifestyle within an exclusive estate, making it a truly desirable family home.

Denise White Estate Agents Comments - Bolton Lodge is an exceptional Grade II listed residence set within the prestigious and historic Lightoaks Estate, offering a rare opportunity to acquire a home of character in one of Oakamoor's most sought-after locations. Surrounded by mature woodland and beautifully maintained grounds, the property enjoys a tranquil and private setting, perfectly suited to modern family living while retaining a strong sense of heritage and charm.

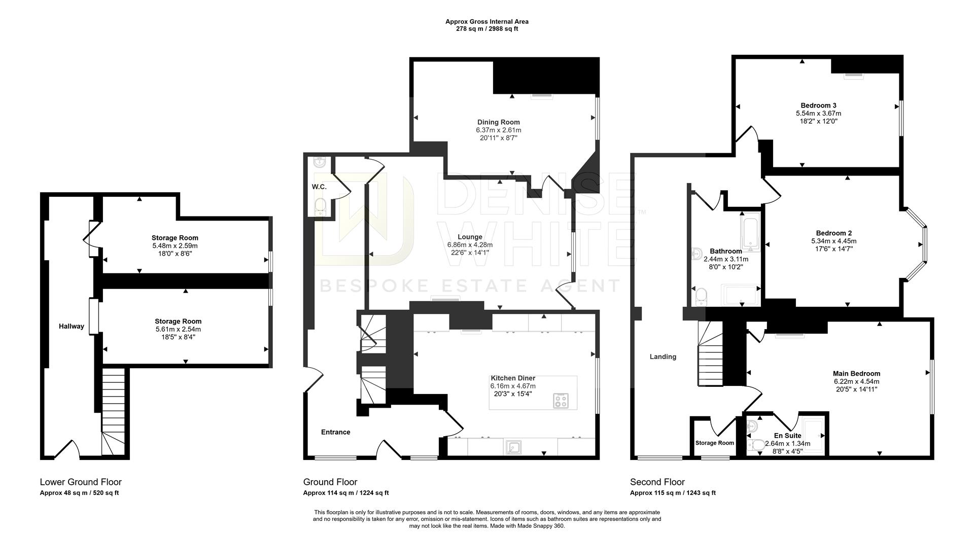
The property has been exceptionally well maintained and enhanced by the current owners, presenting spacious and well-balanced accommodation arranged over two floors. A welcoming entrance hall sets the tone, leading through to a superb breakfast kitchen, downstairs WC, and lounge, which in turn leads on to a spacious Dining Room. Stairs from the entrance hall also lead to a large cellar, which provides a sizeable storage room alongside a utility room with ample storage space.

The lounge is a generous room, enjoying attractive views over the rear gardens and featuring a multi-fuel stove as a cosy focal point. The dining room, set just off of the lounge, provides a cosy, characterful space for dining and entertaining. The kitchen is beautifully appointed, fitted with an extensive range of built-in cupboards and units, integrated appliances, and a central island with a quartz worksurface-creating the perfect space for informal dining and making it the true heart of the home.

To the first floor, the property continues to impress. The spacious landing not only provides access to the bedrooms and family bathroom but also offers versatile space for a home office or reading area. Bolton Lodge comprises three sizeable double bedrooms, including a superb principal suite with a stylish ensuite shower room. A large family bathroom, complete with a double-ended bath and walk-in shower, completes the first-floor accommodation.

Externally, the property is equally appealing. Set within attractive grounds, Bolton Lodge enjoys a delightful private garden, ideal for outdoor dining and relaxation. The gardens are laid mainly to lawn with paved and decked seating areas, while the surrounding estate provides a picturesque backdrop of rolling countryside and mature trees.

Lightoaks Estate itself is steeped in history and offers an exclusive, semi-rural lifestyle within the beautiful Churnet Valley. The village of Oakamoor provides a range of local amenities, while excellent road links connect to the wider Staffordshire Moorlands and beyond.

Combining period charm with modern comfort, Bolton Lodge represents a unique opportunity to enjoy refined living in an idyllic and highly desirable location.

History Of The Light Oaks Estate - Lightoaks Estate is a charming and historically significant setting within the picturesque village of Oakamoor, dating back to the early 19th century. Originally centred around Lightoaks House, the estate was closely linked to the influential Wilson Patten family and the area's rich industrial heritage.

Set within the scenic Churnet Valley, the estate evolved alongside Oakamoor's thriving iron and copper industries, later becoming associated with the renowned Bolton family. Today, Lightoaks has been thoughtfully adapted into an exclusive residential enclave, where a collection of characterful, often Grade II listed properties sit within attractive, landscaped surroundings.

Combining period charm with a peaceful countryside setting, Lightoaks Estate offers a unique opportunity to enjoy a slice of Staffordshire's heritage in an idyllic and private environment.

Location - Nestled within the picturesque Churnet Valley, the charming village of Oakamoor offers an idyllic countryside lifestyle surrounded by rolling hills, woodland, and unspoilt natural beauty. Rich in history and character, the village provides a peaceful retreat while remaining well-connected to nearby towns and amenities.

Oakamoor is particularly well known for its access to outdoor pursuits, with a wealth of scenic walks and cycling routes right on the doorstep, including the renowned Churnet Valley Railway and the ever-popular Alton Towers Resort just a short drive away. The surrounding countryside offers a haven for nature lovers, with riverside paths, ancient woodland, and far-reaching views across the Staffordshire Moorlands.

Despite its tranquil setting, Oakamoor benefits from a welcoming community atmosphere and a selection of local amenities, including a village pub, primary school, and convenient transport links to nearby market towns such as Cheadle and Ashbourne, where a wider range of shops, restaurants, and services can be found.

Combining rural charm with everyday convenience, Oakamoor presents an attractive lifestyle choice for those seeking countryside living without complete isolation-making it a truly desirable location within the Staffordshire Moorlands.

Entrance Hall - Internal entrance door to the front aspect which leads to the communal entrance hallway. Herringbone style vinyl flooring. Three radiators. Two original Windows to the side aspect with built-in shutters. Stairs leading to the first floor and down to the cellar. Three ceiling lights. One wall light. Wooden door to the side aspect which leads to the rear garden. Doors leading into:-

Kitchen - 3.62 x 5.05 extending to 6.26 (11'10" x 16'6" exte - Fitted with an extensive range of wall and base units with quartz work surfaces over incorporating a four ring induction hob and a 'Blanco' stainless steel sink unit with boiling mixer tap. Integrated double electric oven, coffee machine, dishwasher and fridge freezer. Herringbone style vinyl flooring. Feature fireplace. Radiator. Original window to the rear aspect fitted with shutters. Ceiling light and spotlights.

Wc - 2.02 x 0.80 (6'7" x 2'7") - Fitted with a low-level WC and wall mounted wash hand basin. Herringbone style vinyl flooring. Ceiling light.

Lounge - 7.02 x 5.11 maximum (23'0" x 16'9" maximum) - Carpet. Two radiators. Multi fuel stove set on a slate hearth. Two wall lights. Two ceiling lights. Original arched window to the rear aspect with built-in shutters. Original wooden door with stained glass window to the rear aspect. Door leading into: -

Dining Room - 6.60 x 3.43 maximum (21'7" x 11'3" maximum) - Carpet. Two radiators. Open fire with a ceramic tiled hearth and wooden surround. Three wall lights. Original arched window to the rear aspect with built-in shutters. Original built-in storage cupboards.

Cellar - 8.30 x 1.62 (27'2" x 5'3") - Rubber mat flooring. Two ceiling lights. Openings leading to a storage room and utility room.

Cellar Storage Room - 5.58 x 2.52 (18'3" x 8'3") - Providing ample storage space with a ceiling light.

Cellar Utility Room - 5.49 x 2.51 max (18'0" x 8'2" max) - Providing ample storage space together with plumbing for automatic washing machine and space for a condensing tumble dryer. Ceiling light.

First Floor Landing - Carpet. Two radiators. Original sash window to the side aspect with built-in shutters. Ceiling light. Boiler cupboard off housing the hot water cylinder. Doors leading into: -

Bedroom One - 6.22 x 2.70 extending to 4.71 (20'4" x 8'10" exten - Carpet. Radiator. Original feature fireplace. Original arched Windows to the rear aspect with built-in shutters. Picture rail. Coving to the ceiling. Ceiling light. Original building cupboards. Door leading into:-

En-Suite - 2.73 x 1.42 (8'11" x 4'7") - Fitted with a suite comprising of walk-in shower with rainfall showerhead, back to wall WC and wall mounted wash hand basin. Tiled flooring. Part tiled walls. Wall mounted heated towel rail. Ceiling spotlights.

Family Bathroom - 3.67 x 2.43 (12'0" x 7'11") - Fix it with a suite comprising of double ended bath with central mixer tap, walk-in shower with rainfall showerhead, low-level WC and pedestal wash hand basin. Tiled flooring. Part tiled walls. Wall mounted heated towel rail. Coving to the ceiling. Ceiling spotlights.

Bedroom Two - 4.49 x 4.49 max (14'8" x 14'8" max) - Carpet. Two radiators. Original bay window to the rear aspect with built-in shutters. Picture rail. Coving to the ceiling. Ceiling light.

Bedroom Three - 5.47 x 3.64 max (17'11" x 11'11" max) - Carpet. Radiator. Original feature fireplace. Original arch windows to the rear aspect with built-in shutters. Picture rail. Coving to the ceiling. Ceiling light.

Outside - Bolton Lodge is set within the prestigious Lightoaks Estate; electric gates open on to a gravelled driveway which leads on to two allocated parking spaces to the front of the property. Bolton Lodge not only enjoys use of the manicured estate grounds, but also enjoys it's own private garden area which can be accessed directly to the property.

Garden - The gardens at Bolton Lodge offer a private and tranquil outdoor space that complements the character of the property. A door leads from the Entrance Hallway through a brickl paved courtyard and covered storage area, to a fabulous garden with the stunning picturesque backdrop of Lightoaks Estate. Laid mainly to lawn, the gardens also feature gravelled pathways and decked seating areas, perfect for alfresco dining, entertaining, or simply relaxing amidst the peaceful surroundings.

Agents Notes - Council Tax: Staffordshire Moorlands Band F
Tenure: Leasehold
Services: Mains electricity, water and sewarage are connected. Communal Biomass Central Heating System.
Please note: all residents of the Light Oaks Estate are directors of a limited company set up to purchase and manage the Biomass boiler system. The purhcaser must pay a £2,500 fee to the current owners to buy their share of the limited company. There is currently a £266 per month standing charge for the boiler, which will be reviewed annualy, and the individual running cost for Bolton Lodge currently sits in the region of £174 per month.

Leasehold Information - 999 year lease with 992 years remaining
Property Management Company is Rory Mack
£3076 paid annually which covers both ground rent and service charges.

Please Note - Please note that all areas, measurements and distances given in these particulars are approximate and rounded. The text, photographs and floor plans are for general guidance only. Denise White Estate Agents has not tested any services, appliances or specific fittings - prospective purchasers are advised to inspect the property themselves. All fixtures, fittings and furniture not specifically itemised within these particulars are deemed removable by the vendor.

About Your Agent - "In a world where you can be anything, be kind"

Denise is the director of Denise White Estate agents and has worked in the local area since 1999. Denise and the team can help and advise with any information on the local property market and the local area.

Denise White Estate Agents deal with all aspects of property including residential sales and lettings.
Please do get in touch with us if you need any help or advise.

We Won! - Denise White Bespoke Estate Agents has been honoured with the esteemed Gold Award for two years running; 2024 & 2025 from the British Property Awards for their exceptional customer service and extensive local marketing knowledge in Leek and its surrounding areas.

The British Property Awards, renowned for their inclusivity and comprehensive evaluation process, assess estate agents across the United Kingdom based on their customer service levels and understanding of the local market. Denise White Estate Agents demonstrated outstanding performance throughout the rigorous and independent judging period.

Additionally the team have been successful in receiving the GOLD EXCEPTIONAL award from the British Estate Agency Guide 2025 & 2025 and being listed as one of the Top 500 Estate Agents in the UK.

The Best Estate Agency Guide assess data such as the time taken from listing as for sale to sale agreed, achieving the asking price vs the achieved price, market share of properties available, positive reviews and much more!

Property To Sell? - We can arrange an appointment that is convenient with yourself, we'll view your property and give you an informed FREE market appraisal and arrange the next steps for you.

You Need A Solicitor - A good conveyancing solicitor can make or break your moving experience - we're happy to recommend or get a quote for you, so that when the times comes, you're ready to go.

Do You Need A Mortgage? - Speak to us, we'd be more than happy to point you in the direction of a reputable adviser who works closely with ourselves.

Buyer Id Checks - Once an offer is accepted on a property marketed by Denise White Estate Agents we are required to complete ID verification checks on all buyers and to apply ongoing monitoring until the transaction ends. Whilst this is the responsibility of Denise White Estate Agents we may use the services of Guild365, to verify Clients' identity. This is not a credit check and therefore will have no effect on your credit history. You agree for us to complete these checks, and the cost of these checks is £30.00 inc. VAT per buyer. This is paid in advance, when an offer is agreed and prior to a sales memorandum being issued. This charge is non-refundable.

Property Ref: 34565325

Share:

Similar Properties

Edgefold Road, Matlock, Derbyshire, DE4 3NJ

4 Bedroom Detached House | Offers in region of £575,000

"Whatever good things we build - end up building us."This stunning detached stone property has been designed and constru...

Consall, Wetley Rocks, Staffordshire, ST9 0AE

5 Bedroom Detached House | Offers in region of £575,000

"Discover a serene escape from urban life in this architecturally designed five-bedroom detached country retreat, where...

Bluebell House, Cheddleton Road, Leek, ST13 5QZ

5 Bedroom Detached House | £570,000

** CALL US 9AM - 9PM 7 DAYS A WEEK TO ARRANGE A VIEWING! **"It takes hands to build a house, but only hearts can build a...

Hurds Hollow, Matlock, Derbyshire, DE4 3JZ

5 Bedroom Semi-Detached House | Offers in region of £585,000

CALL US TO ARRANGE A VIEWING 9AM - 9PM 7 DAYS A WEEK!"Preserving heritage buildings is a way of preserving our history,...

Grindley Lane, Blythe Bridge, Staffordshire, ST11 9JS

4 Bedroom Detached House | Guide Price £585,000

'By mixing the function with the art of design, we can make the heart of the home feel special.'- The Art Of The Home, S...

Nab Hill Court, Leek, Staffordshire, ST13 8BZ

4 Bedroom Detached House | £595,000

CALL US TO ARRANGE A VIEWING 9AM TO 9PM 7 DAYS A WEEK!"The ultimate luxury is being able to relax and enjoy your home" J...

Denise White (Leek)

St Edward Street, Leek, Staffordshire, ST13 5DL

01538 381772 / 01782 901088

How much is your home worth?

Use our short form to request a valuation of your property.

Request a Valuation

Mortgage Calculator

Amount Borrowed: £
Total Amount Repayable: £
Total Monthly Payment: £
©2026 The Guild of Property Professionals. All rights reserved. Terms and Conditions | Privacy Policy | Cookie Policy | Complaints Policy | Members Login
The Guild of Property Professionals Trading Address: 121 Park Lane, London W1K 7AG. GPEA Limited. Registered in England & Wales.  Company No: 02819824.  Registered Office Address: 2 St. Stephen's Court, St. Stephen's Road, Bournemouth, Dorset, England, BH2 6LA.  VAT Registration No: 576 8795 61
Book a Property Valuation Update Cookies Preferences