New Sheepwalk Farm, Thorncliffe, Staffordshire, ST13 8UP

Guide Price
£800,000

3 Bedroom Detached House for sale in Staffordshire

2 3 1
  • New Sheepwalk Farm; a wonderful country dwelling set on Morridge Side
  • Enjoying the most breathtaking across the Staffordshire Moorlands and beyond
  • Set within approximately nine acres of land
  • Substantial barn suitable for a variety of agricultural or domestic uses
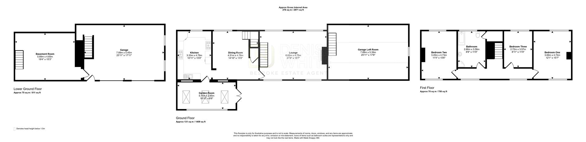
  • Accommodation is arranged over three floors
  • Lounge, Garden Room and Superb Basement Room
  • Breaskfast Kitchen with Rayburn
  • Three Sizeable Double Bedrooms and Large Family Bathroom
  • Extensive Parking and Integral Double Garage
  • Viewing ESSENTIAL!

CALL US TO ARRANGE A VIEWING 9AM TO 9PM 7 DAYS A WEEK!

** GUIDE PRICE ?800,000 TO ?850,000 **

"Everything I want to do in life, is out here on the farm" Joel Salatin

New Sheepwalk Farm is a superb country home occupying a breathtaking elevated position on Morridge Side, on the outskirts of Thorncliffe, enjoying spectacular far-reaching views across the Staffordshire Moorlands countryside, and beyond. The property offers spacious and versatile accommodation arranged over three floors, including three double bedrooms, multiple reception spaces and an impressive entertaining basement. Set within approximately nine acres together with a substantial barn and extensive parking, the property is ideal for those seeking a rural lifestyle or smallholding opportunity. Perfectly positioned for access to Leek and the spectacular landscapes of the Peak District National Park.

Denise White Estate Agents Comments - Perched in an enviable elevated position on Morridge Side, on the rural fringes of the highly regarded village of Thorncliffe, New Sheepwalk Farm is a wonderful country dwelling enjoying some of the most breathtaking and far-reaching views the Staffordshire Moorlands has to offer. From its commanding vantage point, the outlook stretches across rolling countryside and moorland, reaching as far as the distinctive silhouette of The Wrekin on the horizon. Set within approximately nine acres of land and accompanied by a substantial barn suitable for a variety of agricultural or domestic uses, the property offers an exceptional opportunity for those seeking a rural lifestyle with space, versatility and spectacular scenery.

The accommodation is arranged over three floors and provides a warm and welcoming home. The ground floor offers a spacious lounge, where a multi-fuel stove creates a cosy focal point, while dual aspect windows frame beautiful countryside views in both directions. A door leads through to the dining room, which comfortably accommodates a large dining table and chairs, creating the ideal setting for family gatherings and entertaining. From here, stairs rise to the first floor and a further door leads into the kitchen.

The kitchen is fitted with a comprehensive range of units and integrated appliances, and features a traditional Rayburn which provides part of the home's heating and hot water, alongside space for a freestanding electric range style cooker. From the kitchen, a door leads into the delightful garden room, a bright and relaxing space with large windows and French doors opening onto the front patio, perfectly positioned to enjoy the stunning panoramic views over the surrounding countryside.

To the first floor there are three generously proportioned double bedrooms, each benefitting from magnificent rural outlooks, together with a large family bathroom.

At lower ground floor level is a superb basement room, currently utilised as a sitting and entertainment space complete with a bar area - an ideal place for hosting friends and family. A door from this room leads through to the double garage, which features two electric up-and-over doors and stairs rising to an excellent loft storage room. This additional space offers superb potential for conversion, subject to obtaining the necessary planning and building consents.

Externally, the property is approached via a large driveway providing extensive off-road parking and access to the integral garage. To the front of the property is a sizeable patio area which takes full advantage of the outstanding views - the perfect place to enjoy a morning coffee in the sunshine or relax with an evening drink while watching the light fade across the moorlands.

The land at New Sheepwalk Farm extends to approximately nine acres and includes two paddocks, with a picturesque gulley of designated Site of Special Scientific Interest land running between them. The grounds are ideally suited to grazing sheep or other smallholding livestock, making the property particularly appealing to those seeking a rural lifestyle.

Despite its wonderfully peaceful and private setting, the property remains conveniently located within easy reach of the nearby market town of Leek and its wide range of amenities. The stunning landscapes of the Peak District National Park lie close at hand, with renowned beauty spots including The Roaches and Three Shires Head also within easy reach.

A viewing of New Sheepwalk Farm is essential to truly appreciate not only the size and versatility of the accommodation on offer, but also the remarkable setting and panoramic countryside views which make this property such a special place to call home.

Lounge - 6.80 x 4.81 (22'3" x 15'9") - Laminate flooring. Two radiators. Multi fuel stove set on a stone flagged hearth with a stone surround and wooden mantle. Dado rail. Coving to the ceiling. uPVC windows to the front and rear aspects. Five wall lights. Ceiling light. Door leading into:-

Dining Room - 4.82 x 4.58 (15'9" x 15'0") - Laminate flooring. Radiator. uPVC windows to the front and rear aspects. Two wall lights. Ceiling light. Stairs leading to the first floor. Under stairs storage cupboard. Opening into:-

Kitchen - 4.81 x 3.34 (15'9" x 10'11") - Fitted with the range of wall and base units with work surfaces over incorporating a stainless steel sink and drainer unit with mixer tap. Oil fired Rayburn which runs the central heating system and also heats the hot water. Space for a freestanding electric range cooker with extractor over. Integrated fridge freezer and dishwasher. Tiled flooring. Radiator. uPVC windows to the front and rear aspects. Ceiling spotlights. Door leading into: -

Garden Room - 5.76 x 2.71 (18'10" x 8'10") - Tiled flooring with underfloor heating. uPVC windows to the front aspect. uPVC French doors leading to the patio. Three roof lights. Ceiling spotlights.

First Floor Landing - Carpet. Radiator. Two uPVC windows to the front aspect. Coving to the ceiling. Two ceiling lights. One wall light. Doors leading into: -

Bedroom One - 4.81 x 3.83 (15'9" x 12'6") - Newly fitted carpet. Two radiators. uPVC windows to the front aspects. Coving to the ceiling. Ceiling light.

Bedroom Two - 4.82 x 3.50 (15'9" x 11'5") - Carpet. Radiator. uPVC windows to the front and rear aspects. Ceiling light.

Bedroom Three - 3.64 x 2.73 (11'11" x 8'11") - Carpet. Radiator. uPVC window to the rear aspect. Coving to the ceiling. Ceiling light.

Bathroom - 3.61 x 2.67 (11'10" x 8'9") - Fitted with a suite comprising of paneled bath, vanity wash hand basin unit, low-level WC and large corner shower cubicle with electric 'Triton' shower. Laminate flooring. Fully tiled walls. Radiator. Obscured uPVC window to the rear aspect. Airing cupboard off housing the hot water cylinder. Ceiling light.

Lower Ground Floor -

Basement Room - 5.92 x 4.68 (19'5" x 15'4") - Laminate flooring. Two radiators. Fitted with a range of shelving units and a bar area. Ceiling spotlights. Stairs leading to the ground floor. Internal door leading to the Double Garage.

Double Garage - 9.09 x 6.32 (29'9" x 20'8") - Two electric up and over doors to the front aspect. Pedestrian door to the front aspect. Door leading into the basement room. Power and light. Two uPVC Windows to the side aspect. Stairs leading up to the loft storage space.

Garage Loft Storage Room - 9.15 x 3.89 maximum (30'0" x 12'9" maximum ) - With power and light. uPVC window to the side aspect. Suitable for a variety of uses and offers potential for conversion subject to obtaining the necessary consents.

Barn - 17.88 x 10.1 (58'7" x 33'1") - Sliding barn doors to the side aspect. Windows to the front and rear aspects. Power and light.

Outside -

Agents Notes - Tenure: Freehold
Services: Mains water connected. Septic tank drainage. Oil fired central heating.
Council Tax: Staffordshire Moorlands Band E

Please Note - Please note that all areas, measurements and distances given in these particulars are approximate and rounded. The text, photographs and floor plans are for general guidance only. Denise White Estate Agents has not tested any services, appliances or specific fittings - prospective purchasers are advised to inspect the property themselves. All fixtures, fittings and furniture not specifically itemised within these particulars are deemed removable by the vendor.

About Your Agent - "In a world where you can be anything, be kind"

Denise is the director of Denise White Estate agents and has worked in the local area since 1999. Denise and the team can help and advise with any information on the local property market and the local area.

Denise White Estate Agents deal with all aspects of property including residential sales and lettings.
Please do get in touch with us if you need any help or advise.

We Won! - Denise White Bespoke Estate Agents has been honoured with the esteemed Gold Award for two years running; 2024 & 2025 from the British Property Awards for their exceptional customer service and extensive local marketing knowledge in Leek and its surrounding areas.

The British Property Awards, renowned for their inclusivity and comprehensive evaluation process, assess estate agents across the United Kingdom based on their customer service levels and understanding of the local market. Denise White Estate Agents demonstrated outstanding performance throughout the rigorous and independent judging period.

Additionally the team have been successful in receiving the GOLD EXCEPTIONAL award from the British Estate Agency Guide 2025 & 2025 and being listed as one of the Top 500 Estate Agents in the UK.

The Best Estate Agency Guide assess data such as the time taken from listing as for sale to sale agreed, achieving the asking price vs the achieved price, market share of properties available, positive reviews and much more!

Property To Sell? - We can arrange an appointment that is convenient with yourself, we'll view your property and give you an informed FREE market appraisal and arrange the next steps for you.

You Need A Solicitor! - A good conveyancing solicitor can make or break your moving experience - we're happy to recommend or get a quote for you, so that when the times comes, you're ready to go.

Do You Need A Mortgage? - Speak to us, we'd be more than happy to point you in the direction of a reputable adviser who works closely with ourselves.

Buyer Id Checks - Once an offer is accepted on a property marketed by Denise White Estate Agents we are required to complete ID verification checks on all buyers and to apply ongoing monitoring until the transaction ends. Whilst this is the responsibility of Denise White Estate Agents we may use the services of Guild365, to verify Clients' identity. This is not a credit check and therefore will have no effect on your credit history. You agree for us to complete these checks, and the cost of these checks is ?30.00 inc. VAT per buyer. This is paid in advance, when an offer is agreed and prior to a sales memorandum being issued. This charge is non-refundable.

Property Ref: 34514396

Share:

Similar Properties

School Lane, Church Leigh, Staffordshire, ST10 4SR

4 Bedroom Detached House | Guide Price £800,000

CALL US TO ARRANGE A VIEWING 9AM - 9PM 7 DAYS A WEEK!"The reality is that old houses were built by actual craftsmen, the...

Bradnop Grange, Bradnop, Staffordshire, ST13 7ND

4 Bedroom Detached House | Guide Price £775,000

CALL US TO ARRANGE A VIEWING 9AM TO 9PM 7 DAYS A WEEK!GUIDE PRICE ?775,000 - ?800,000"Elegance is not about being notice...

Park Lane, Endon, Stoke-On-Trent. ST9 9JA

4 Bedroom Detached House | Guide Price £750,000

CALL US TO ARRANGE A VIEWING 9AM UNTIL 9PM 7 DAYS A WEEK !An outstanding detached home located on the outskirts of Endon...

Sheep Market, Leek, Staffordshire, ST13 5HN

7 Bedroom Retail Property (High Street) | Guide Price £850,000

**Mixed-Use Investment Opportunity**We are pleased to present a valuable mixed-use investment opportunity comprising a f...

Sheep Market, Leek, Staffordshire, ST13 5HN

7 Bedroom Not Specified | Guide Price £850,000

**Mixed-Use Investment Opportunity**We are pleased to present a valuable mixed-use investment opportunity comprising a f...

Cotton Lane, Cotton, Stoke-On-Trent

5 Bedroom Detached House | Guide Price £850,000

CALL US TO ARRANGE A VIEWING 9AM TO 9PM 7 DAYS A WEEK!GUIDE PRICE - ?850,000 - ?875,000"There is nothing more lovely in...

Denise White (Leek)

St Edward Street, Leek, Staffordshire, ST13 5DL

01538 381772 / 01782 901088

How much is your home worth?

Use our short form to request a valuation of your property.

Request a Valuation

Mortgage Calculator

Amount Borrowed: £
Total Amount Repayable: £
Total Monthly Payment: £
©2026 The Guild of Property Professionals. All rights reserved. Terms and Conditions | Privacy Policy | Cookie Policy | Complaints Policy | Members Login
The Guild of Property Professionals Trading Address: 121 Park Lane, London W1K 7AG. GPEA Limited. Registered in England & Wales.  Company No: 02819824.  Registered Office Address: 2 St. Stephen's Court, St. Stephen's Road, Bournemouth, Dorset, England, BH2 6LA.  VAT Registration No: 576 8795 61
Book a Property Valuation Update Cookies Preferences