Swans View, Staines upon Thames, Surrey

£312,500

1 Bedroom Apartment for sale in Staines upon Thames

1 1 1

50% reserved! A development of 10 luxury one and two bedroom apartments in the heart of Staines-upon-Thames
Each apartment benefits from controlled warm air heating, comfort cooling systems and very large private balconies

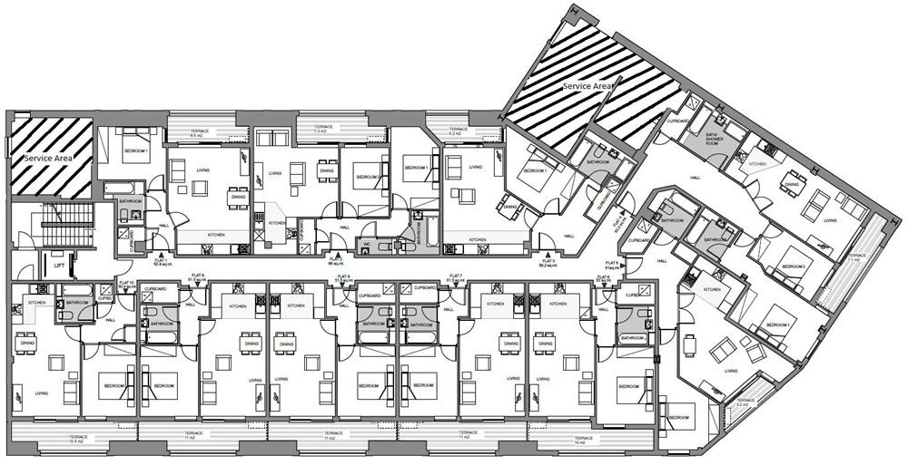
Specification List & Second Floor Plan

Kitchens

o Individually designed fitted kitchens, Vienna white gloss with silver edging and concealed lighting and fittings
o Attractive Pebble Stone Laminate worksurfaces and upstands
o AEG Pyrolitic built in single oven with induction hob and extractor hood with stainless steel splashback
o Caple built in microwave
o Integrated Teka 50/50 fridge freezer - remove 50/50
o Integrated Teka dishwasher
o Teka 1 bowl stainless steel sink and mixer tap

Bathrooms and en-suites

o All apartments benefit from bathrooms in stylish modern white sanitary ware with chrome mixer taps and fittings
o Baths complete with glass shower screen and showers
o Quality Marmo Borghini Bianco wall tiles to 3 walls accompanied by Metro Anthracite floor tiles
o Heated chrome towel rail
o Mirrored wall cabinet or cabinet and separate mirror
o Down lighters and ventilation
o One wall of white emulsion paint or to colour of purchasers' choice if required
o Apartment 2 in addition benefits from a separate WC
o Apartment 3 in addition has a thermostatic shower cubicle in the bathroom
o Apartment 4 in addition has a thermostatic shower cubicle in the bathroom and en-suite bathroom to the master bedroom

Internal finishes and electrics

o Controlled warm air and comfort cooling systems
o Internal lounge doors by Vicaima in white with glazed panels and chrome ironmongery
o Internal flush doors by Vicaima in white with silver inlaid pattern ad chrome ironmongery
o Carpeted throughout in New Oakland Silverstone except to the kitchen and store cupboard which are in Atelier Metalic colour slip resistant sheet vinyl flooring - apparently metallic is spelt with one "L"
o Fitted wardrobes with mirrored doors to master bedroom
o Walls and ceilings in white emulsion with recessed down lighters
o TV sockets to living room and bedroom
o Wiring for satellite TV and Virgin Media
o BT points to living room
o Switches and sockets throughout
o Plumbing connection point in store cupboard for washing machine

Residential Main Entrance

o Main entrance with video door entry system and secure post boxes
o Disabled lift and fully carpeted stairs
o Entrance lobby ceramic tiles
o Ceiling with downlighters and spot lights

External Features

o Very large private balconies with silver, grey and black Eco Deck floor coverings per apartment
o Secure bike stand
o Secure bin store

To view the specification please see below link:
https://youtu.be/yAlcgAPPmdM

A development of 10 luxury one and two bedroom apartments in the heart of Staines-upon-Thames
Each apartment benefits from controlled warm air heating, comfort cooling systems and very large private balconies

Specification List & Second Floor Plan

Kitchens

o Individually designed fitted kitchens, Vienna white gloss with silver edging and concealed lighting and fittings
o Attractive Pebble Stone Laminate worksurfaces and upstands
o AEG Pyrolitic built in single oven with induction hob and extractor hood with stainless steel splashback
o Caple built in microwave
o Integrated Teka 50/50 fridge freezer - remove 50/50
o Integrated Teka dishwasher
o Teka 1 bowl stainless steel sink and mixer tap

Bathrooms and en-suites

o All apartments benefit from bathrooms in stylish modern white sanitary ware with chrome mixer taps and fittings
o Baths complete with glass shower screen and showers
o Quality Marmo Borghini Bianco wall tiles to 3 walls accompanied by Metro Anthracite floor tiles
o Heated chrome towel rail
o Mirrored wall cabinet or cabinet and separate mirror
o Down lighters and ventilation
o One wall of white emulsion paint or to colour of purchasers' choice if required
o Apartment 2 in addition benefits from a separate WC
o Apartment 3 in addition has a thermostatic shower cubicle in the bathroom
o Apartment 4 in addition has a thermostatic shower cubicle in the bathroom and en-suite bathroom to the master bedroom

Situated around 150 metres from the elevated banks of the River Thames, providing a peaceful escape from the busy town, adjacent to a popular picnic spot in the summer months.
The development offers a wealth of convenient transportation links, being within a half mile radius of the mainline railway station, a direct bus route to London Heathrow Airport and within one mile of the M25 motorway.
Ideally located on the doorstep of the popular Two Rivers retail park, Elmsleigh Shopping Centre and bustling high street, complete with multi-screen cinema, leisure club, bars and restaurants.


Internal finishes and electrics

o Controlled warm air and comfort cooling systems
o Internal lounge doors by Vicaima in white with glazed panels and chrome ironmongery
o Internal flush doors by Vicaima in white with silver inlaid pattern ad chrome ironmongery
o Carpeted throughout in New Oakland Silverstone except to the kitchen and store cupboard which are in Atelier Metalic colour slip resistant sheet vinyl flooring - apparently metallic is spelt with one "L"
o Fitted wardrobes with mirrored doors to master bedroom
o Walls and ceilings in white emulsion with recessed down lighters
o TV sockets to living room and bedroom
o Wiring for satellite TV and Virgin Media
o BT points to living room
o Switches and sockets throughout
o Plumbing connection point in store cupboard for washing machine

Residential Main Entrance

o Main entrance with video door entry system and secure post boxes
o Disabled lift and fully carpeted stairs
o Entrance lobby ceramic tiles
o Ceiling with downlighters and spot lights

External Features

o Very large private balconies with silver, grey and black Eco Deck floor coverings per apartment
o Secure bike stand
o Secure bin store

Important Information

  • This is a Leasehold property.

Property Ref: DRSXML314-480_4573882

Share:

Similar Properties

Gresham Road, Staines upon Thames, Surrey

2 Bedroom Apartment | Offers in excess of £300,000

Offered to the market with no onward chain and situated within close proximity to Staines upon Thames town centre, railw...

Penton Court, Jamnagar Close, Staines upon Thames, Surrey

2 Bedroom Apartment | Offers in excess of £300,000

Situated in one of Staines upon Thames premier locations within easy reach of the town centre, mainline station and the...

Meadway Close, Staines upon Thames, Surrey

2 Bedroom Maisonette | £300,000

A spacious two bedroom maisonette in a sought after location. The property is currently tenanted and would make an ideal...

Springs Close, Stanwell, Staines upon Thames, Surrey

2 Bedroom Apartment | Offers in excess of £315,000

Built in 2013, finished to a high standard throughout and located within close distance of Heathrow Airport and Ashford...

Broad View, Long Lane, STAINES-UPON-THAMES, Surrey

2 Bedroom Flat | £315,000

Broadview is a development of just ten luxury apartments. The development has been thoughtfully designed and built to a...

New Road, Staines upon Thames, Surrey

2 Bedroom Cottage | Offers in excess of £320,000

Located within a sought after location, close to Staines upon Thames town centre and railway station is this semi-detach...

Oasis Estate Agents (Staines Upon Thames)

4 Clarence Street, Staines Upon Thames, Middlesex, TW18 4SP

01784 441818

How much is your home worth?

Use our short form to request a valuation of your property.

Request a Valuation

Mortgage Calculator

Amount Borrowed: £
Total Amount Repayable: £
Total Monthly Payment: £
©2026 The Guild of Property Professionals. All rights reserved. Terms and Conditions | Privacy Policy | Cookie Policy | Complaints Policy | Members Login
The Guild of Property Professionals Trading Address: 121 Park Lane, London W1K 7AG. GPEA Limited. Registered in England & Wales.  Company No: 02819824.  Registered Office Address: 2 St. Stephen's Court, St. Stephen's Road, Bournemouth, Dorset, England, BH2 6LA.  VAT Registration No: 576 8795 61
Book a Property Valuation Update Cookies Preferences