O'Connor Close, Staunton

Guide Price
£399,950
SSTC
This property listing is now SSTC

4 Bedroom Semi-Detached House for sale in Staunton

3 4 2
  • Rarely Available Four Bedroom Semi Detached House
  • Private Enclosed South Facing Garden 42' x 42' Approximately
  • Deceptively Spacious Accommodation
  • Master Bedroom With En-Suite
  • Single Garage, Off Road Parking
  • EPC Rating - C, Council Tax - E, Freehold

DECEPTIVELY SPACIOUS AND RARELY AVAILABLE FOUR DOUBLE BEDROOM SEMI DETACHED HOUSE with EN-SUITE TO THE MASTER BEDROOM, SINGLE GARAGE, PARKING and a PRIVATE ENCLOSED SOUTH FACING REAR GARDEN 42' X 42' APPROXIMATELY.

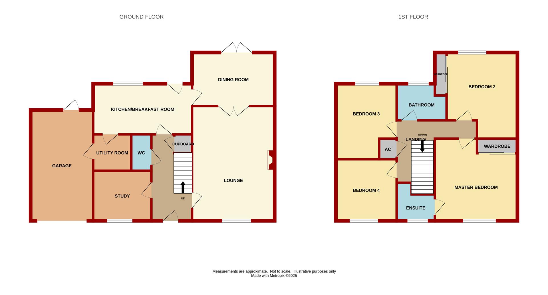
Entrance Hall - Via part glazed door, solid oak flooring, single radiator, under stairs storage cupboard, stairs to the first floor.

Cloakroom - White suite comprising close coupled w.c., pedestal wash hand basin, tiled splashback, oak flooring, heated towel rail.

Study - 2.84m x 2.26m (9'04 x 7'05) - Single radiator, front aspect window.

Lounge - 5.61m x 4.04m (18'05 x 13'03) - Wall mounted electric living flame fire, two radiators, front aspect window overlooking the gardens. Half glazed double doors through to:

Dining Room - 4.04m x 2.62m (13'03 x 8'07) - Radiator, coving, fully glazed double glazed french doors to the private rear garden. Door to:

Family Kitchen/Breakfast Room - 4.85m x 2.46m (15'11 x 8'01) - Stainless steel one and half bowl single drainer sink unit, mixer tap, cupboard under, range of base and wall mounted units, integrated electric double oven, four ring hob over, cooker hood above, integrated dishwasher, fridge/freezer, built-in breakfast bar, double radiator, spotlighting, rear aspect window with a private outlook over the gardens, half glazed door to the rear. Door to:

Utility - 1.80m x 1.78m (5'11 x 5'10) - Stainless steel single drainer sink unit, mixer tap, cupboard under, base and wall mounted units, plumbing for automatic washing machine, single radiator, personal door to the garage.

FROM THE ENTRANCE HALL, STAIRS LEAD TO THE FIRST FLOOR:

Landing - Single radiator, access to insulated roof space, airing cupboard with hot water tank and slatted shelving.

Master Bedroom - 4.04m x 4.01m (13'03 x 13'02) - Single radiator, fitted triple wardrobe with full height mirror faced sliding doors, hanging rail and shelving, front aspect window. Door to:

En-Suite Shower Room - Fitted shower cubicle and tray, tiled surround, close coupled w.c., pedestal wash hand basin, tiled splashback, heated towel rail, front aspect frosted window.

Bedroom 2 - 4.27m x 3.43m (14'00 x 11'03) - Built-in double wardrobe with full height mirror faced sliding doors, hanging rail and shelving, rear aspect window with an outlook over the gardens.

Bedroom 3 - 3.68m x 2.97m (12'01 x 9'09) - Radiator, rear aspect window.

Bedroom 4 - 2.97m x 2.77m (9'09 x 9'01) - Radiator, front aspect window.

Family Bathroom - White suite comprising modern panelled bath with shower attachment over, tiled surround, pedestal wash hand basin, tiled splashback, close coupled w.c., heated towel rail, rear aspect frosted window.

Outside - Tamac driveway suitable for PARKING TWO VEHICLES leads to a:

Attached Single Garage - 5.41m x 3.07m (17'09 x 10'01) - Via up and over door, power and lighting, eaves storage space, space for tumble dryer, oil fired central heating and domestic hot water boiler, half glazed frosted door to the rear.

There is a pathway to the front door, lawned area to either side, border with shrubs, outside lighting and outside power point.

There is a private enclosed south facing rear garden measuring 42' x 42' approximately with paved patio area, pathways, outside tap, outside lighting, large expanse of lawn, raised borders with shrubs and bushes, summer house.

Services - Mains water, electricity and drainage. Oil heating.

Mobile Phone Coverage / Broadband Availability - It is down to each individual purchaser to make their own enquiries. However, we have provided a useful link via Rightmove and Zoopla to assist you with the latest information. In Rightmove, this information can be found under the brochures section, see "Property and Area Information" link. In Zoopla, this information can be found via the Additional Links section, see "Property and Area Information" link.

Water Rates - Severn Trent - to be advised.

Local Authority - Council Tax Band: E
Forest of Dean District Council, Council Offices, High Street, Coleford, Glos. GL16 8HG.

Tenure - Freehold.

Viewing - Strictly through the Owners Selling Agent, Steve Gooch, who will be delighted to escort interested applicants to view if required. Office Opening Hours 8.30am - 7.00pm Monday to Friday, 9.00am - 5.30pm Saturday.

Directions - From Gloucester, proceed along the A417 passing through Maisemore and Hartpury. On approaching Staunton, turn left at the old Prince of Wales pub into Prince Crescent, take the first right into Chartist Way and proceed along until you see O'Connor Close on the left. Turn left here, proceed to the end and the property will be found in front of you.

Property Surveys - Qualified Chartered Surveyors (with over 20 years experience) available to undertake surveys (to include Mortgage Surveys/RICS Housebuyers Reports/Full Structural Surveys).

Property Ref: 531960_34213137

Share:

Similar Properties

Holts Road, Newent

4 Bedroom Detached Bungalow | Guide Price £399,950

SPACIOUS SPLIT LEVEL DETACHED BUNGALOW offering TWO EN SUITE BEDROOMS, TWO FURTHER BEDROOMS/RECEPTION ROOMS, LARGE LOUNG...

Grange Court, Westbury-On-Severn

2 Bedroom Detached Bungalow | Guide Price £395,000

A DECEPTIVELY SPACIOUS and RARELY AVAILABLE TWO DOUBLE BEDROOM LARGELY EXTENDED DETACHED BUNGALOW, EN-SUITE TO MASTER, S...

Chestnut Drive, Staunton

3 Bedroom Semi-Detached House | £395,000

A THREE BEDROOM SEMI-DETACHED BRAND NEW FAMILY HOME BUILT TO A VERY HIGH STANDARD, having KITCHEN / FAMILY ROOM plus SEP...

Pincoate, Highnam

4 Bedroom Detached House | £399,995

VERY WELL PRESENTED FOUR BEDROOM DETACHED FAMILY HOME situated in a POPULAR VILLAGE LOCATION having a SEPARATE UTILITY R...

Brimsome Meadow, Highnam

4 Bedroom Detached House | Guide Price £399,995

*** REDUCED TO SELL ***A WELL PRESENTED, SPACIOUS and EXTENDED FOUR BEDROOM DETACHED FAMILY HOME located towards the end...

Lakeside, Newent

3 Bedroom Detached Bungalow | Guide Price £400,000

A GREATLY EXTENDED THREE BEDROOM DETACHED BUNGALOW in the HIGHLY SOUGHT AFTER LAKESIDE LOCATION, CLOSE TO NEWENT TOWN CE...

Steve Gooch Estate Agents (Newent)

Newent, Gloucestershire, GL18 1AN

01531 820844

How much is your home worth?

Use our short form to request a valuation of your property.

Request a Valuation

Mortgage Calculator

Amount Borrowed: £
Total Amount Repayable: £
Total Monthly Payment: £
©2025 The Guild of Property Professionals. All rights reserved. Terms and Conditions | Privacy Policy | Cookie Policy | Complaints Policy | Members Login
The Guild of Property Professionals Trading Address: 121 Park Lane, London W1K 7AG. GPEA Limited. Registered in England & Wales.  Company No: 02819824.  Registered Office Address: 2 St. Stephen's Court, St. Stephen's Road, Bournemouth, Dorset, England, BH2 6LA.  VAT Registration No: 576 8795 61
Book a Property Valuation Update Cookies Preferences