Rakeway Road, Cheadle, ST10

£275,000

3 Bedroom Semi-Detached House for sale in Stoke-On-Trent

2 3 1
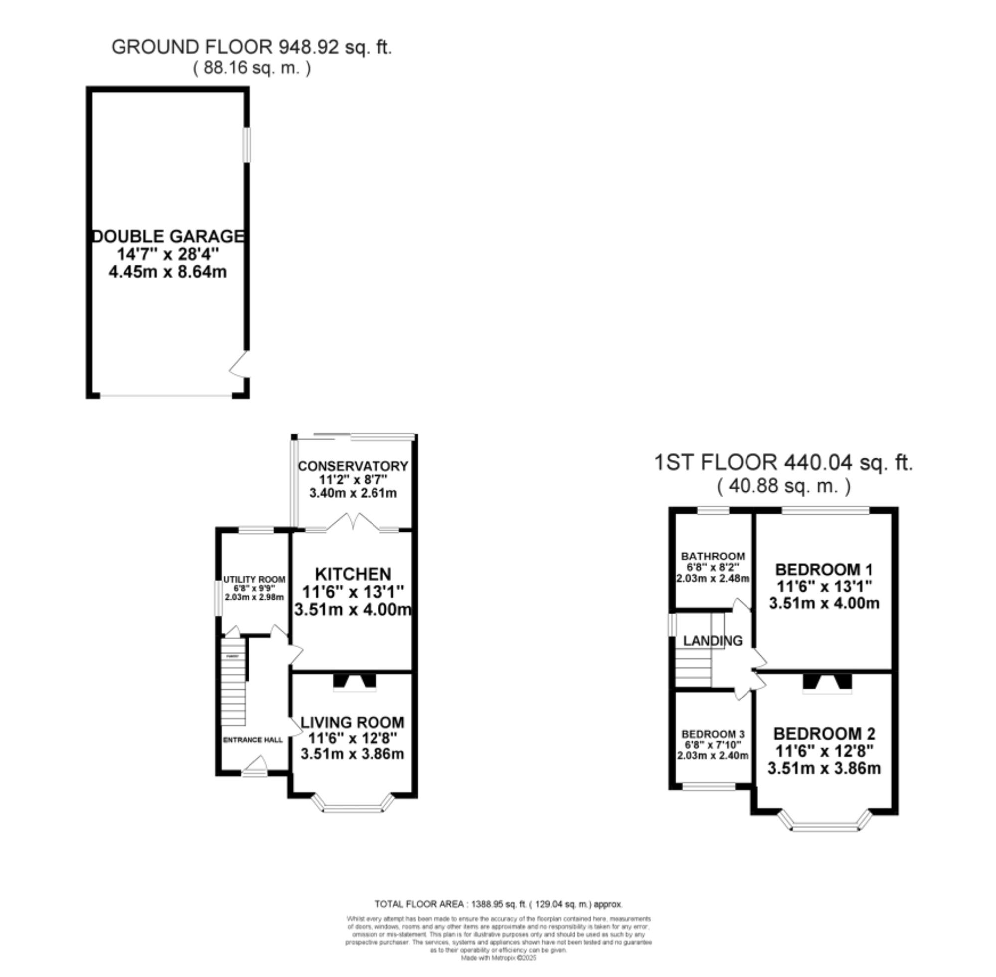
  • Outside, you’ll find a spacious driveway with room for up to six vehicles, plus an exceptionally large garage/workshop, an engineer’s dream!
  • A large kitchen, conservatory & living room. Lots of space to relax or entertain.
  • Upstairs, the home boasts three inviting bedrooms: two generous doubles and a well-sized single, ideal as a nursery, guest room, home office, or dressing room.
  • The rear garden features a raised pond home to a few fish, surrounded by lush lawns, mature shrubs, and privacy-giving hedges. Two garden sheds offer even more space.
  • On the edge of Cheadle, you’ll enjoy modern conveniences such as shops, supermarkets, and eateries close by. Excellent local schools and strong transport links via the A50.

Holy Moley! What a Home! Burrow on through, and you’ll find this house opens right up, spacious, full of character, and brimming with charm. Step through the entrance porch and be greeted by a generous hallway with tall ceilings and featuring classic, traditional tiles. To the right, a cosy living room awaits, complete with an electric fireplace and a bright bay window that floods the space with natural light. Next, you’ll find the heart of the home, the kitchen. With plenty of sturdy wood-effect cabinets and sleek white worktops, there’s ample room to cook up a storm. Flowing seamlessly from the kitchen is a stunning conservatory overlooking the garden, the perfect spot to relax and enjoy views of the pond and greenery beyond. The ground floor also includes a practical utility room, offering space for appliances and extra storage, keeping everything neat and out of sight. Upstairs, the home boasts three inviting bedrooms: two generous doubles and a well-sized single, ideal as a nursery, guest room, home office, or dressing room. A modern family shower room completes the upper level. Outside, you’ll find a spacious driveway with room for multiple vehicles, plus a large garage/workshop, an engineer’s dream! Just beyond the vast driveway, tucked behind tall private gates, is a secure parking area; sizeable enough to store a work van, caravan or more! The rear garden is a true retreat, featuring a raised pond home to a few fish, surrounded by lush lawns, mature shrubs, and privacy-giving hedges. Two garden sheds offer even more space for tools and storage. Perfectly positioned on the edge of Cheadle, you’ll enjoy modern conveniences such as shops, supermarkets, and eateries close by. Excellent local schools and strong transport links via the A50 make this home ideal for families, all while being just a stone’s throw from peaceful, rural surroundings. Ready to make this charming Cheadle gem your new burrow? Don’t wait, homes like this don’t stay hidden for long. Book your viewing today.

Important Information

  • This is a Freehold property.
  • This Council Tax band for this property is: C
  • EPC Rating is C

Property Ref: ecd4d56d-2140-4773-86a5-da6e91b95589

Share:

Similar Properties

The Birches, Cheadle, ST10

3 Bedroom Semi-Detached House | £275,000

“Schools out for summer” well, not quite yet, but when it is, this home will make those long-awaited holidays even more...

Saltersford Lane, Alton, ST10

3 Bedroom Semi-Detached House | £275,000

“Chestnuts roasting on an open fire…” This charming three-bedroom home embodies warmth, comfort, and countryside living.

Glebe Close, Blythe Bridge, ST11

3 Bedroom Detached House | £275,000

Farnworth Road, Stoke-On-Trent, ST3

3 Bedroom Detached House | Offers in region of £280,000

“Raindrops on roses and whiskers on kittens, Bright copper kettles and warm woollen mittens… These are a few of my favou...

Patch Meadow Road, Cheadle, ST10

3 Bedroom Detached Bungalow | Offers in region of £285,000

Tucked away like a delightful secret at the end of a quiet cul-de-sac, stunning panoramic views set the scene at Patch M...

Riverside Road, Tean, ST10

3 Bedroom Semi-Detached House | £285,000

“Riverside, let's go.” Located in Tean on a quiet road that runs along a peaceful river sits number 34 Riverside Road.

James Du Pavey Estate Agents (Cheadle)

Cheadle, Staffordshire, ST10 1UY

01538711400

How much is your home worth?

Use our short form to request a valuation of your property.

Request a Valuation

Mortgage Calculator

Amount Borrowed: £
Total Amount Repayable: £
Total Monthly Payment: £
©2026 The Guild of Property Professionals. All rights reserved. Terms and Conditions | Privacy Policy | Cookie Policy | Complaints Policy | Members Login
The Guild of Property Professionals Trading Address: 121 Park Lane, London W1K 7AG. GPEA Limited. Registered in England & Wales.  Company No: 02819824.  Registered Office Address: 2 St. Stephen's Court, St. Stephen's Road, Bournemouth, Dorset, England, BH2 6LA.  VAT Registration No: 576 8795 61
Book a Property Valuation Update Cookies Preferences