Kingfisher Crescent, Cheadle, ST10

Offers in region of
£165,000

2 Bedroom Semi-Detached Bungalow for sale in Stoke-On-Trent

1 2 1
  • Just the right size: a well-proportioned two-bedroom bungalow on one level.
  • Just the right space: a bright and cosy lounge with large windows and an electric fire.
  • Just the right garden: a generous rear garden with plenty of potential to make it your own.
  • Just the right parking: garage and driveway with space for multiple vehicles.
  • Just the right location: well-connected with great transport links and local amenities.

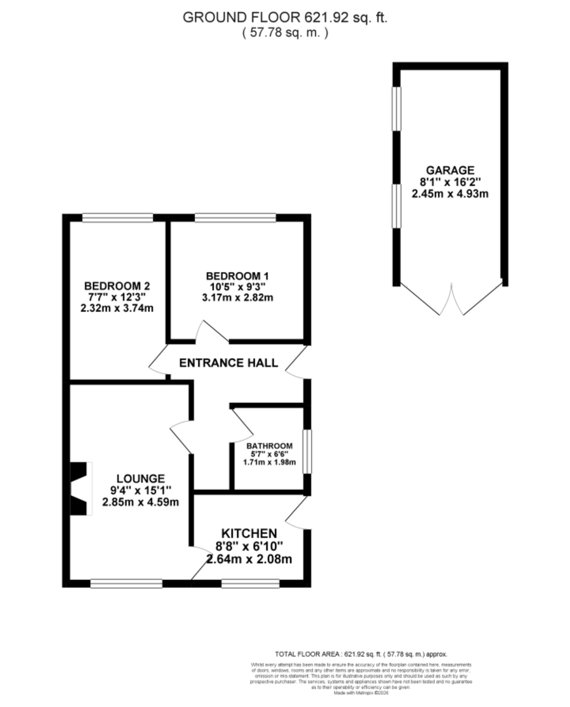
“Baby Bear said it was just right.” Located on the outskirts of Cheadle is 5 Kingfisher Crescent, a two-bedroom bungalow neatly packaged on one level. Whilst in need of some updating and TLC, this bungalow offers just the right amount of space and location for its next occupant. As you step through the door, you enter the entrance hallway, and straight ahead is the lounge. Spacious and bright, thanks to large windows, it also features a gas fire for that extra cosy touch. Sit back and watch the world go by. Just off the lounge is the kitchen, with space for both storage and appliances. It’s just the right size. For slumber, two double bedrooms sit at the rear of the bungalow, overlooking the garden. The home is complete with a bathroom featuring a shower-over-bath combination. To the rear of the property, a good-sized garden awaits. Whilst it’s not a woodland, it is a generous space that’s just right. In need of a green-fingered owner, it will soon become the perfect haven. A gravel patio are enclosed by a fence and hedgerow, along with some mature plants and a garden shed for some handy extra storage. It has it all. For parking, the property boasts a garage as well as a driveway for multiple vehicles. The front of the property is dressed with a lush green garden. All this is located in Cheadle, where you will find modern conveniences, great bus routes, a lovely community, and fantastic transport links to the A50. Think this home could be just right with some tender loving care? This bungalow is waiting for you.

Important Information

  • This is a Freehold property.
  • This Council Tax band for this property is: B
  • EPC Rating is C

Property Ref: d9fe2995-cc44-4f2f-ac69-10be4d184e36

Share:

Similar Properties

Queen Street, Cheadle, ST10

4 Bedroom Terraced House | £165,000

Spacious four-bedroom terraced home on Queen Street offers generous living space, a private garden, and the rare benefit...

Church Street, Cheadle, ST10

2 Bedroom Semi-Detached House | £159,950

"Going to the chapel and we’re gonna get married…” and this charming townhouse might just be the one!

Goldenhill Road, Stoke-On-Trent, ST4

3 Bedroom Semi-Detached House | Offers in excess of £150,000

“It’s Luigi time—mamma mia, the race is on!” This beautifully spacious three-bedroom semi-detached family home offers ge...

Cromer Road, Stoke-On-Trent, ST1

2 Bedroom Terraced House | £169,950

Pass the baton and take the gold, because this home truly is finish-line worthy.

Cheadle Road, Uttoxeter, ST14

3 Bedroom Semi-Detached House | Offers in region of £170,000

“You would not have called to me unless I had been calling to you”

Epsom Close, Cheadle, ST10

2 Bedroom Semi-Detached House | £175,000

Hakuna Matata, what a wonderful phrase! It means ‘no worries,’ and this gorgeous starter home truly lives up to it. With...

James Du Pavey Estate Agents (Cheadle)

Cheadle, Staffordshire, ST10 1UY

01538711400

How much is your home worth?

Use our short form to request a valuation of your property.

Request a Valuation

Mortgage Calculator

Amount Borrowed: £
Total Amount Repayable: £
Total Monthly Payment: £
©2026 The Guild of Property Professionals. All rights reserved. Terms and Conditions | Privacy Policy | Cookie Policy | Complaints Policy | Members Login
The Guild of Property Professionals Trading Address: 121 Park Lane, London W1K 7AG. GPEA Limited. Registered in England & Wales.  Company No: 02819824.  Registered Office Address: 2 St. Stephen's Court, St. Stephen's Road, Bournemouth, Dorset, England, BH2 6LA.  VAT Registration No: 576 8795 61
Book a Property Valuation Update Cookies Preferences