Cedar Close, Cheadle, ST10

Offers in region of
£200,000
SSTC
This property listing is now SSTC

2 Bedroom Semi-Detached Bungalow for sale in Stoke-On-Trent

1 2 1
  • Charming two-bedroom bungalow offering magical single-level living.
  • Peaceful cul-de-sac setting, tucked away like a hidden retreat in the market town of Cheadle.
  • Cosy living room and sunlit conservatory, perfect for watching the garden change with the seasons.
  • Stylish kitchen and elegant shower room, beautifully finished with sparkling surfaces and marble-effect tiles.
  • Enchanted low-maintenance garden, with patio seating, artificial lawn, driveway parking, and a garage.

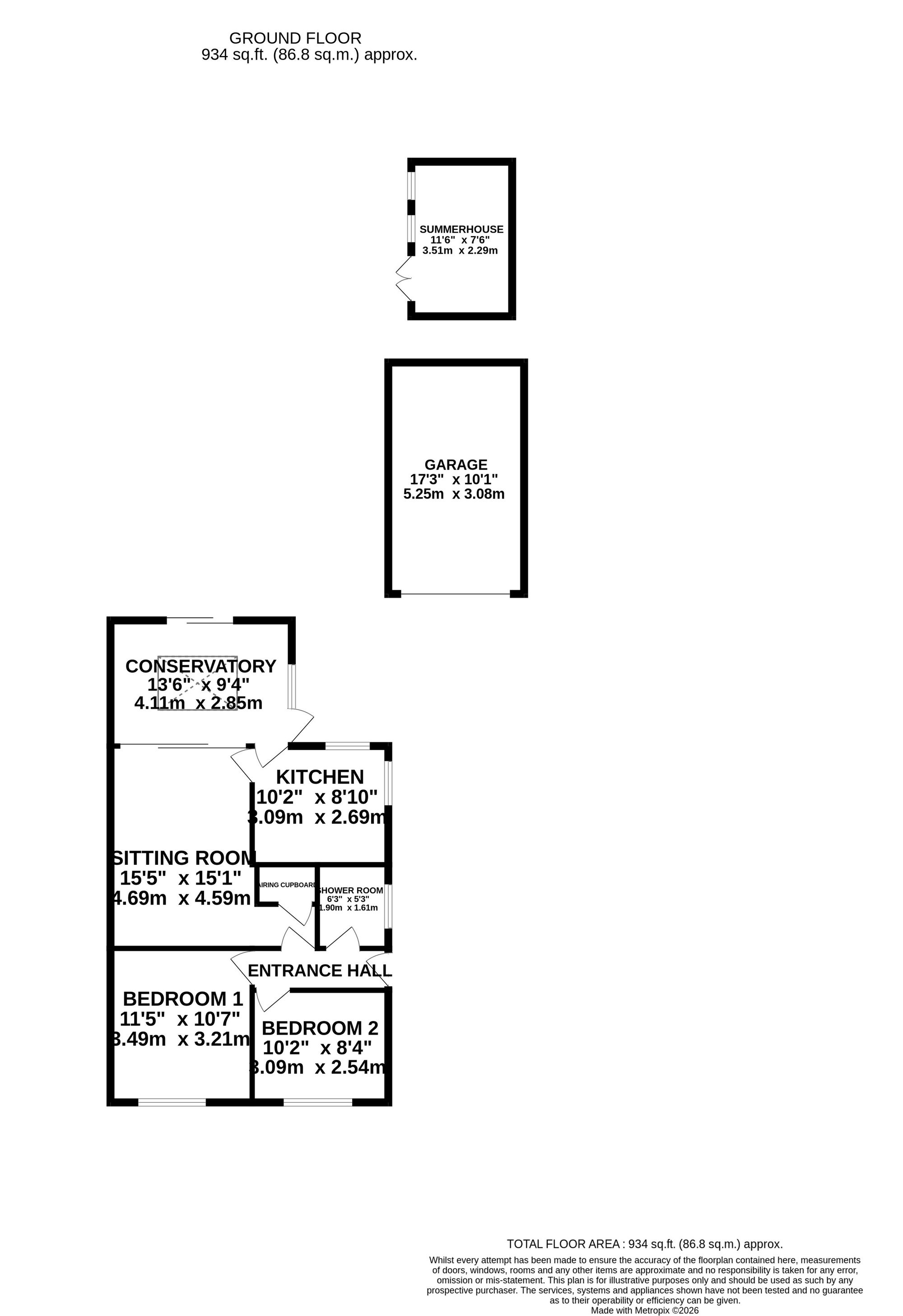
“A dream is a wish your heart makes. If you’re dreaming of the next chapter of your life and a bungalow ready to move straight into, this charming home could be just what you’re looking for. Tucked away on a quiet cul-de-sac in the market town of Cheadle, this delightful bungalow offers comfortable living all on one convenient level. An attractive gravel frontage creates a smart and welcoming first impression. Step down the driveway and through the front door and you are greeted by a bright entrance hall that sets the tone for the rest of the home. To your right, the modern shower room awaits, beautifully finished with light, white marble-effect tiles that create a fresh and airy feel. To the left, the property offers two well-proportioned double bedrooms, perfect spaces to relax and unwind. Continue along the hallway and you are welcomed into a spacious yet cosy living room, with views through to the conservatory and the peaceful garden beyond. It’s the ideal spot to settle down with a cup of tea and enjoy the comforts of home. At the heart of the property is the stylish kitchen, featuring glossy white cabinets paired with sleek, sparkling grey worktops, offering both practicality and plenty of storage while you cook up a storm. Completing the interior is the lovely conservatory, a light-filled space where you can sit back with a good book and watch the seasons gently change in the garden. Outside, the multi-layered landscaped garden provides a beautiful yet low-maintenance retreat, thanks to the combination of patio areas and artificial lawn. It’s a wonderful place to enjoy the best of the British weather and relax outdoors or indoors thanks to the summer house. Parking is well catered for with a tarmac driveway and a garage, offering space for an additional vehicle or useful extra storage. All of this is set within the welcoming market town of Cheadle, known for its strong community spirit. The town offers a great range of everyday amenities including supermarkets, shops, and eateries, while excellent bus links make getting around simple and convenient. Think this bungalow ticks your wish list? Book your viewing

Important Information

  • This is a Freehold property.
  • This Council Tax band for this property is: B
  • EPC Rating is D

Property Ref: 78e8a470-fc7f-4fea-bdce-bff4ce4ba25b

Share:

Similar Properties

Southborough Crescent, Stoke-On-Trent, ST6

3 Bedroom Semi-Detached House | £200,000

“Loving it, loving it, loving it like that.”

Parkhead Drive, Stoke-On-Trent, ST3

3 Bedroom Semi-Detached House | £200,000

Shaken, not stirred, served with an olive, please. A home with taste and sophistication to match its surroundings.

Beswick Close, Cheadle, ST10

2 Bedroom Detached Bungalow | £200,000

Delightful 2-bed detached bungalow in peaceful cul-de-sac in Cheadle. Two double bedrooms, dining area (or potential 3rd...

Charles Street, Cheadle, ST10

2 Bedroom Detached House | £210,000

A detached two bedroom property within the Market town of Cheadle, close to local independent shops and primary schools,...

Leek Road, Cheadle, ST10

2 Bedroom Detached Bungalow | £210,000

A new chapter begins! Turn the page and discover the potential of this characterful 1930’s detached bungalow.

New Avenue, Draycott, ST11

2 Bedroom Semi-Detached Bungalow | £210,000

Like a fox in the henhouse, swoop up this gorgeous bungalow in Draycott and discover a home full of charm and semi-rural...

James Du Pavey Estate Agents (Cheadle)

Cheadle, Staffordshire, ST10 1UY

01538711400

How much is your home worth?

Use our short form to request a valuation of your property.

Request a Valuation

Mortgage Calculator

Amount Borrowed: £
Total Amount Repayable: £
Total Monthly Payment: £
©2026 The Guild of Property Professionals. All rights reserved. Terms and Conditions | Privacy Policy | Cookie Policy | Complaints Policy | Members Login
The Guild of Property Professionals Trading Address: 121 Park Lane, London W1K 7AG. GPEA Limited. Registered in England & Wales.  Company No: 02819824.  Registered Office Address: 2 St. Stephen's Court, St. Stephen's Road, Bournemouth, Dorset, England, BH2 6LA.  VAT Registration No: 576 8795 61
Book a Property Valuation Update Cookies Preferences