Longton Road, Barlaston, ST12

Offers in excess of
£625,000

4 Bedroom Detached House for sale in Stoke-On-Trent

3 4 2
  • This home offers ample potential to be a dream forever home and is being offered for sale with no chain!
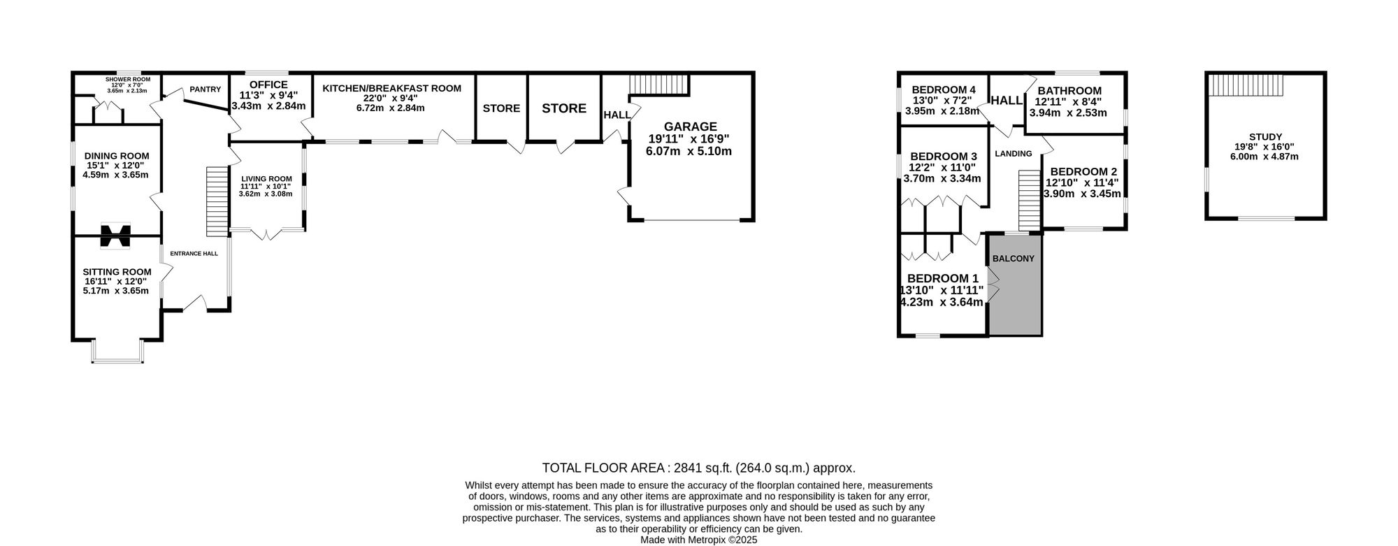
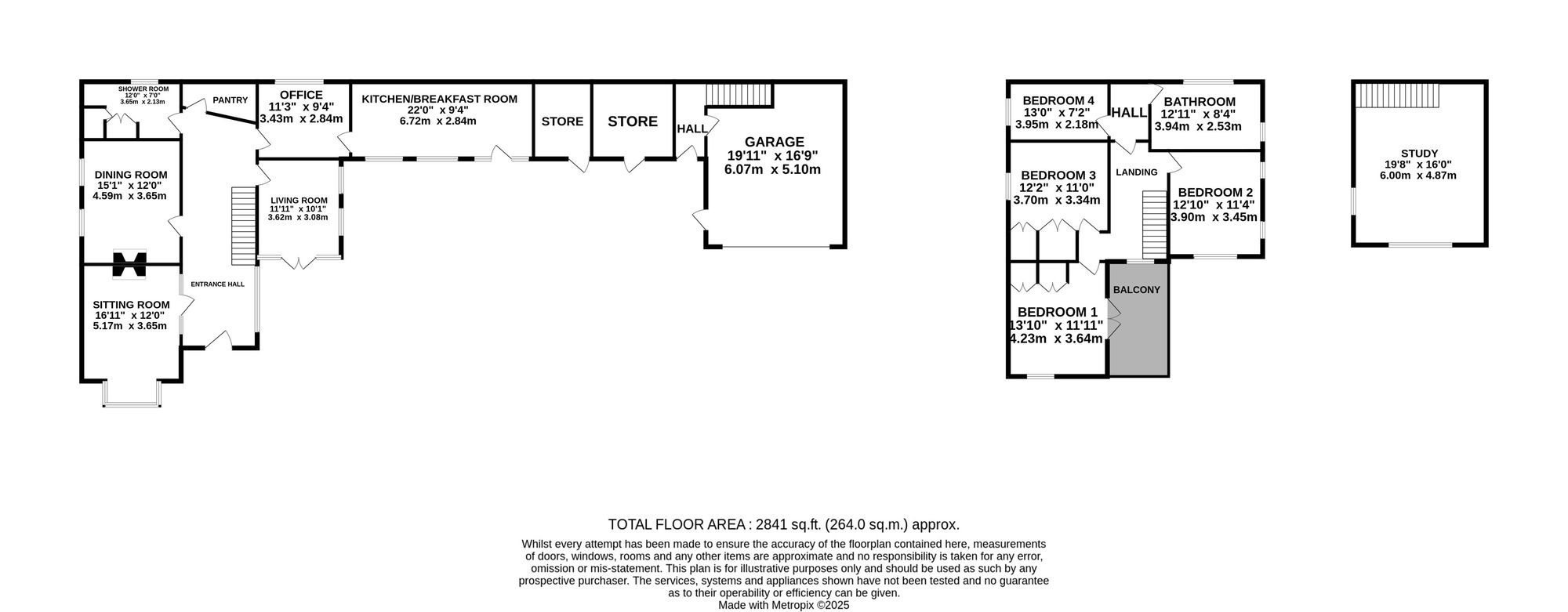
  • Generous 0.34-acre plot with gated driveway entrance, lush front gardens, and a coach house garage with a ground floor double garage and upstairs space with potential to be an annex (STNPP)
  • Located in sought-after Barlaston within walking distance of a school, local shops, two pubs and the National Trust Downs Banks. Nearby travel links to the A34 and Stone train station.
  • Three double bedrooms, two with fitted wardrobes, and a further single that's perfect for guests, a nursery, office, or dressing room.
  • Flexible living with three reception rooms, a kitchen/breakfast room, office, shower room, and pantry.

Welcome to Your Forever Home in Beautiful Barlaston! Brimming with character, sprinkled with quirky corners, and radiating a warm, welcoming soul, this delightful home is far more than just bricks and mortar – it’s a personality waiting to be loved. Tucked away in the ever-desirable village of Barlaston, this charming residence sits proudly on a generous 0.34-acre plot of beautifully maintained gardens, with lush lawns, mature shrubbery, and greenery galore. Oh, and did we mention? It’s being sold with no onwards chain – so your dream move could happen sooner than you think! Step inside and you’ll find space in all the right places. There’s a generous sitting room, a cosy dining room, and a further living room perfect for family time or flopping down with a good book. Exposed beams and traditional fireplaces add a touch of timeless charm, while there’s also scope to extend (STNPP) if your dreams need even more room to grow. At the heart of the home is the kitchen/breakfast room, complete with ample cabinetry, space to entertain, and a standout feature: an AGA cooker. You’ll also find a handy separate shower room with storage, a pantry, and a dedicated home office. Upstairs, there are three spacious double bedrooms – two with built-in wardrobes – plus a cosy single bedroom, perfect for a nursery, guest room, or even your very own dressing room. The bathroom includes a bath, sink, and W/C. But wait – there’s more! Outside, two separate outbuildings and a charming coach house garage offer endless potential. The ground floor is home to a double garage, while upstairs offers a flexible space ideal for a home studio, office, or even a self-contained annex (STNPP) for multi-generational living or extra income. A gated driveway welcomes you in with ample off-road parking, and the location? Simply lovely. In peaceful Barlaston, you’re within strolling distance of local shops, a school, two pubs, and lush countryside walks at the National Trust Downs Banks. Commuting is a breeze too, with the A34 and Stone train station close by. Whether you're upsizing, nesting, or dreaming of a lifestyle change, this home has the space, character, and charm to grow with you. So, what are you waiting for? Your forever home is calling.

Energy Efficiency Current: 19.0
Energy Efficiency Potential: 76.0

Important Information

  • This is a Freehold property.
  • This Council Tax band for this property is: G

Property Ref: 38337dee-8132-46ce-87d0-87a3bd362240

Share:

Similar Properties

Lightwood Road, Stoke-On-Trent, ST3

4 Bedroom Detached House | £615,000

Stunning 4-bed detached home on Lightwood Road with a spacious and versatile layout, four double bedrooms, an ensuite an...

Trentham, Stoke-On-Trent, ST4

5 Bedroom Detached House | Price from £609,995

The Ash is a beautifully designed, five bedroom, detached family home with detached double garage set within the sensati...

Hilderstone Road, Stoke-On-Trent, ST3

3 Bedroom Detached Bungalow | Offers in excess of £600,000

Country calm meets modern comfort in this stunning 3-bed bungalow off Hilderstone Road. Spacious living areas, sleek kit...

Franklin Drive, Blythe Bridge, ST11

6 Bedroom Detached House | Offers in region of £635,000

Take a roll of the dice and home to land on this 6-bedroom detached home in the sought-after Stallington. This home offe...

Sandy Lane, Newcastle, ST5

4 Bedroom Detached House | Offers in region of £650,000

Tucked away beyond the trees, The Willows is a hidden gem — a spacious four-bed home with leafy views, stylish interiors...

Hartshill Road, Stoke-On-Trent, ST4

4 Bedroom Detached House | Offers in excess of £650,000

Exquisite residence in Hartshill on 0.50-acre plot, featuring 3 bedrooms, elegant interiors, spacious rooms, expansive g...

James Du Pavey Estate Agents (Stone)

Christchurch Way, Stone, Staffordshire, ST15 8BZ

01785 814917

How much is your home worth?

Use our short form to request a valuation of your property.

Request a Valuation

Mortgage Calculator

Amount Borrowed: £
Total Amount Repayable: £
Total Monthly Payment: £
©2025 The Guild of Property Professionals. All rights reserved. Terms and Conditions | Privacy Policy | Cookie Policy | Complaints Policy | Members Login
The Guild of Property Professionals Trading Address: 121 Park Lane, London W1K 7AG. GPEA Limited. Registered in England & Wales.  Company No: 02819824.  Registered Office Address: 2 St. Stephen's Court, St. Stephen's Road, Bournemouth, Dorset, England, BH2 6LA.  VAT Registration No: 576 8795 61
Book a Property Valuation Update Cookies Preferences