Westsprink Crescent, Stoke-On-Trent, ST3

£185,000

3 Bedroom Semi-Detached House for sale in Stoke-On-Trent

2 3 1
  • Set your compass WEST and find this fabulous three bedroom semi-detached home in Westonfields.
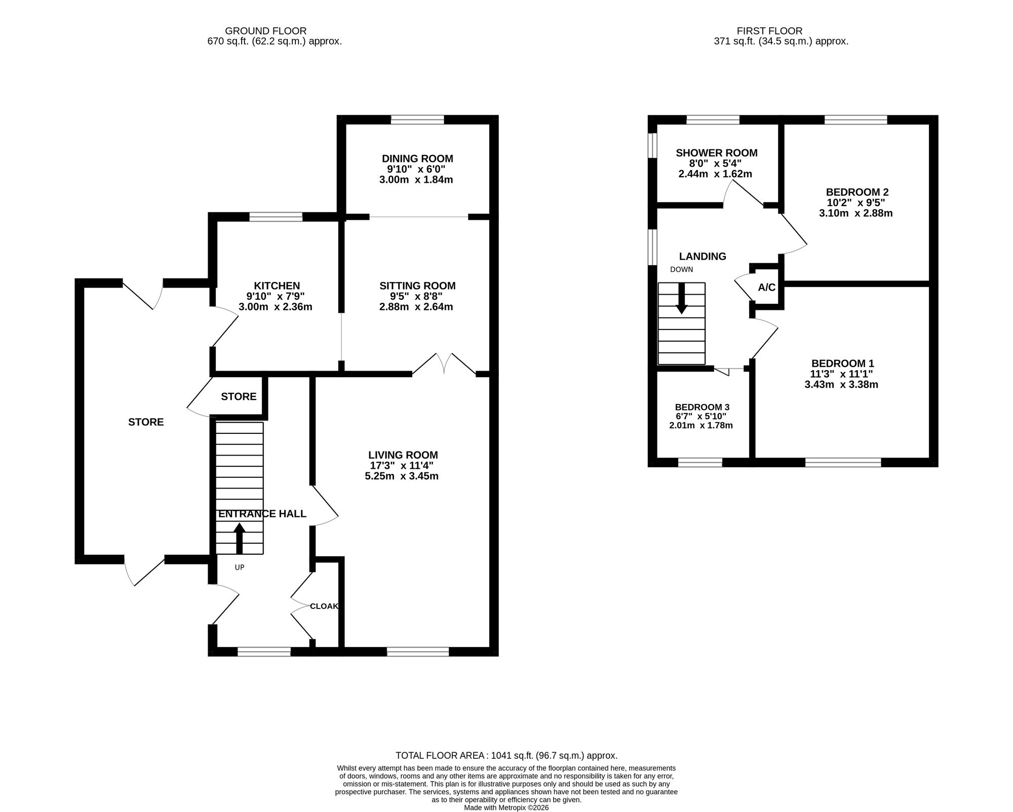
  • With great living space throughout including a large living room, sitting room opening to a dining room with well-equipped kitchen and store area.
  • On the first floor we have three generous bedrooms with two doubles and a good sized single along with a modern shower room.
  • Positioned on a lovely South-West facing plot meaning sun, sun, sun! With large lawn and patio area perfect for al fresco dining.
  • Located within close proximity to good schools, great amenities and fantastic commuter links.

Set your compass to WEST and head over to this fabulous three bedroom semi-detached home in Westonfields. Every great adventure begins with a single step so step inside and we’ll see where yours unfolds. From the moment you cross the threshold, you’re welcomed by a grand entrance hallway, spacious, light filled and ready to guide you through the journey that waits within. The generous living room offers a perfect gathering space for recounting the day’s tales whether its movie nights, cosy evenings or celebrations with friends and family. Just beyond a charming sitting room flows seamlessly into the dining room, created an open sociable setting designed for shared feasts and memorable moments. The adjoining kitchen stands in the next room, fitted with white gloss cupboards with built-in oven and gas burning hob. A useful storage area is found to the side of the home and could easily be converted to a further reception room or utility if desired. Upstairs, three well-proportioned bedrooms await, these rooms offer flexibility with two doubles and a good sized single. Completing the upper floor is a modern shower room with floor to ceiling tiles and walk in shower with glass screen. Outside the rear garden is perfectly positioned boasting a South-West facing garden meaning sun, sun, sun! A large patio area is ideal for al fresco dining with a generous lawn. To the front is a driveway providing off road parking for multiple vehicles. Westprink Crescent is situated in Westonfields, a sought-after suburb within close proximity to good local schools, an array of shops and amenities. Lovely countryside is just a short driveway with fantastic commuter links right on your doorstep. So come on in, the door is open, are you ready to begin the journey?

Important Information

  • This is a Freehold property.
  • This Council Tax band for this property is: B
  • EPC Rating is D

Property Ref: dae4a340-70e3-4bd3-b4f3-d9fbbedb292c

Share:

Similar Properties

Thorley Drive, Cheadle, ST10

2 Bedroom Semi-Detached Bungalow | £180,000

Spacious two-bedroom semi-detached bungalow in the popular Cheadle market town. Large living room, two double bedrooms....

Derwent Drive, Cheadle, ST10

3 Bedroom Semi-Detached House | £180,000

Get those tools and paint brushes at the ready, this blank canvas is ready for its next property Picasso!

Anthony Place, Stoke-On-Trent, ST3

2 Bedroom Semi-Detached House | £180,000

Anthony Place – no place like it! Stylish 2-bed semi with sleek kitchen, log burner lounge & west-facing garden. Cul-de-...

Farnworth Road, Stoke-On-Trent, ST3

3 Bedroom Semi-Detached House | Offers in excess of £190,000

Burn baby burn, disco inferno! Ready to make some exciting, lifelong memories? This three-bedroom semi-detached home in...

Bramshaws Acre, Cheadle, ST10

2 Bedroom Semi-Detached House | £190,000

"I'm going to paint you by numbers and colour you in. If things go right, we can frame it and put you on a wall."

Kingfisher Crescent, Cheadle, ST10

2 Bedroom Bungalow | £195,000

James Du Pavey Estate Agents (Cheadle)

Cheadle, Staffordshire, ST10 1UY

01538711400

How much is your home worth?

Use our short form to request a valuation of your property.

Request a Valuation

Mortgage Calculator

Amount Borrowed: £
Total Amount Repayable: £
Total Monthly Payment: £
©2026 The Guild of Property Professionals. All rights reserved. Terms and Conditions | Privacy Policy | Cookie Policy | Complaints Policy | Members Login
The Guild of Property Professionals Trading Address: 121 Park Lane, London W1K 7AG. GPEA Limited. Registered in England & Wales.  Company No: 02819824.  Registered Office Address: 2 St. Stephen's Court, St. Stephen's Road, Bournemouth, Dorset, England, BH2 6LA.  VAT Registration No: 576 8795 61
Book a Property Valuation Update Cookies Preferences