Trentham, Stoke-On-Trent, ST4

Offers in excess of
£552,495
SSTC
This property listing is now SSTC

5 Bedroom Detached House for sale in Stoke-On-Trent

1 5 2
  • A detached double garage sits to the side of the property providing further storage space and parking should you require it
  • Innovative technology used throughout the property including underfloor heating on the groundfloor, wifi kitchen appliances, car charging point and speedy wifi as standard
  • All of this sat on a large garden plot with space to the front, side and rear providing and abundance of private outdoor space to combine with the public spaces within the development
  • Set on a unique development where sustainable living and modern technology become one to future proof your home for years to come within a sustainable environment
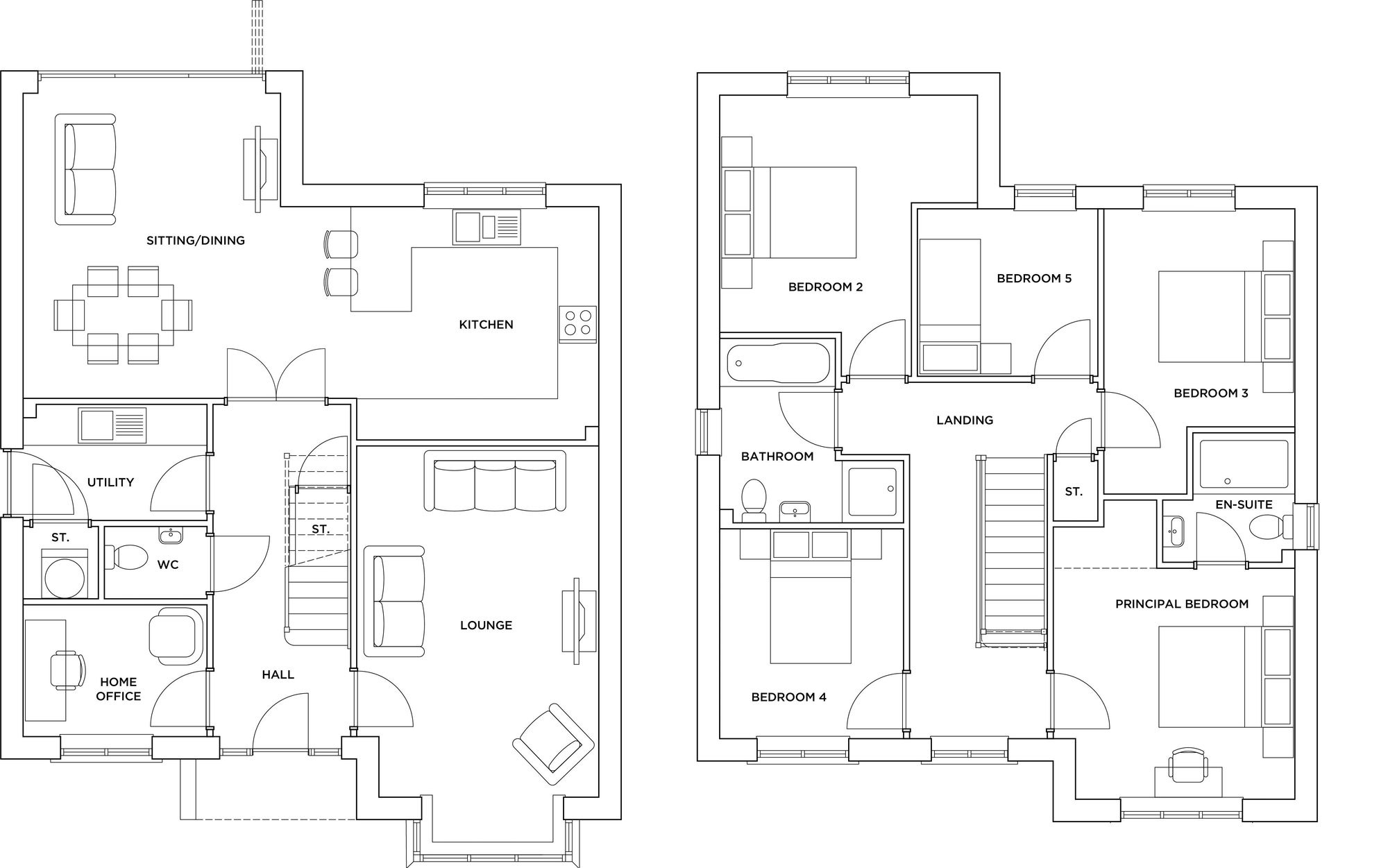
  • Five bedrooms with an en-suite shower room to the master and family bathroom with an open plan arrangement on the ground floor including lounge kitchen/family room with utility and home office

The Hornbeam is a substantial, five bedroom detached home with detached double garage and open plan living on the ground floor. The ground floor consists of a large lounge to the front of the property accessed from the main entrance hallway along with a home office whilst double doors open up towards the back of the hallway into a large room stretching the width of the property, housing a large open plan kitchen/dining/family room with bi-folding doors opening out into the rear garden. The kitchen is fitted with a range of wifi appliances to make life as convenient as possible whilst there is also a utility room off the entrance hallway to provide space for the laundry and further storage and work top space, as well as a guest WC to make the ground floor complete. Up on the first floor, the principle bedroom sits to the front of the property with it's own en-suite shower room whilst the further four bedrooms are all well proportioned and share access to the family bathroom. Outside, there is a driveway and detached double garage along with extensive garden to both the front and rear with access all around the property. Beyond your private garden, you have access to all that this stunning development has to offer in regards to open spaces, out door play spaces and gym equipment or nature walks through the woodland and around the ponds. This is the perfect family home with all of the space and versatility both inside and out that a family could need along with a fantastic specification as standard to include features such as underfloor heating on the ground floor, carpets throughout, cottage oak with solid core internal doors, photovoltaic panels, fibre internet connection and a huge choice of fixtures and fittings within the kitchens and bathrooms to make it just right for you. The Hornbeam truly is a house to make your home. Get in touch with us today to arrange your appointment to take the next step into making this house your home

Property Ref: 403c6c02-2795-40bd-afbe-e304bb3315b2

Share:

Similar Properties

Tixall Road, Stafford, ST18

5 Bedroom Cottage | Offers in excess of £550,000

Woah, we’re halfway there! This stunning home offers an expansive plot with stunning country views. Benefiting from vers...

Whitesytch Lane, Stone, ST15

3 Bedroom Character Property | Offers in excess of £550,000

Stunning countryside home on 2.83 acres. Boasting outbuildings, stable block and potential for development. 3 double bed...

Blackies Lane, Stone, ST15

4 Bedroom Detached House | £550,000

This four-bedroom detached home has been beautifully extended and refurbished, offering spacious living, a high-spec kit...

Hilderstone Road, Stoke-On-Trent, ST3

3 Bedroom Detached Bungalow | Offers in excess of £575,000

Country calm meets modern comfort in this stunning 3-bed bungalow off Hilderstone Road. Spacious living areas, sleek kit...

Oakbrook Close, Stafford, ST16

6 Bedroom Detached House | Offers Over £580,000

The most beautiful things are always waiting to be discovered… Check out this stunning 6-bed detached on Oakbrook Close...

Station Road, Stone, ST15

5 Bedroom Semi-Detached House | Offers in region of £595,000

Charming 3-story period property with stained glass porch, period features, spacious living & dining rooms, modern kitch...

James Du Pavey Estate Agents (Stone)

Christchurch Way, Stone, Staffordshire, ST15 8BZ

01785 814917

How much is your home worth?

Use our short form to request a valuation of your property.

Request a Valuation

Mortgage Calculator

Amount Borrowed: £
Total Amount Repayable: £
Total Monthly Payment: £
©2026 The Guild of Property Professionals. All rights reserved. Terms and Conditions | Privacy Policy | Cookie Policy | Complaints Policy | Members Login
The Guild of Property Professionals Trading Address: 121 Park Lane, London W1K 7AG. GPEA Limited. Registered in England & Wales.  Company No: 02819824.  Registered Office Address: 2 St. Stephen's Court, St. Stephen's Road, Bournemouth, Dorset, England, BH2 6LA.  VAT Registration No: 576 8795 61
Book a Property Valuation Update Cookies Preferences