Peacehaven Grove, Stoke-On-Trent, ST4

Offers in excess of
£260,000
SSTC
This property listing is now SSTC

2 Bedroom Bungalow for sale in Stoke-On-Trent

1 2 1
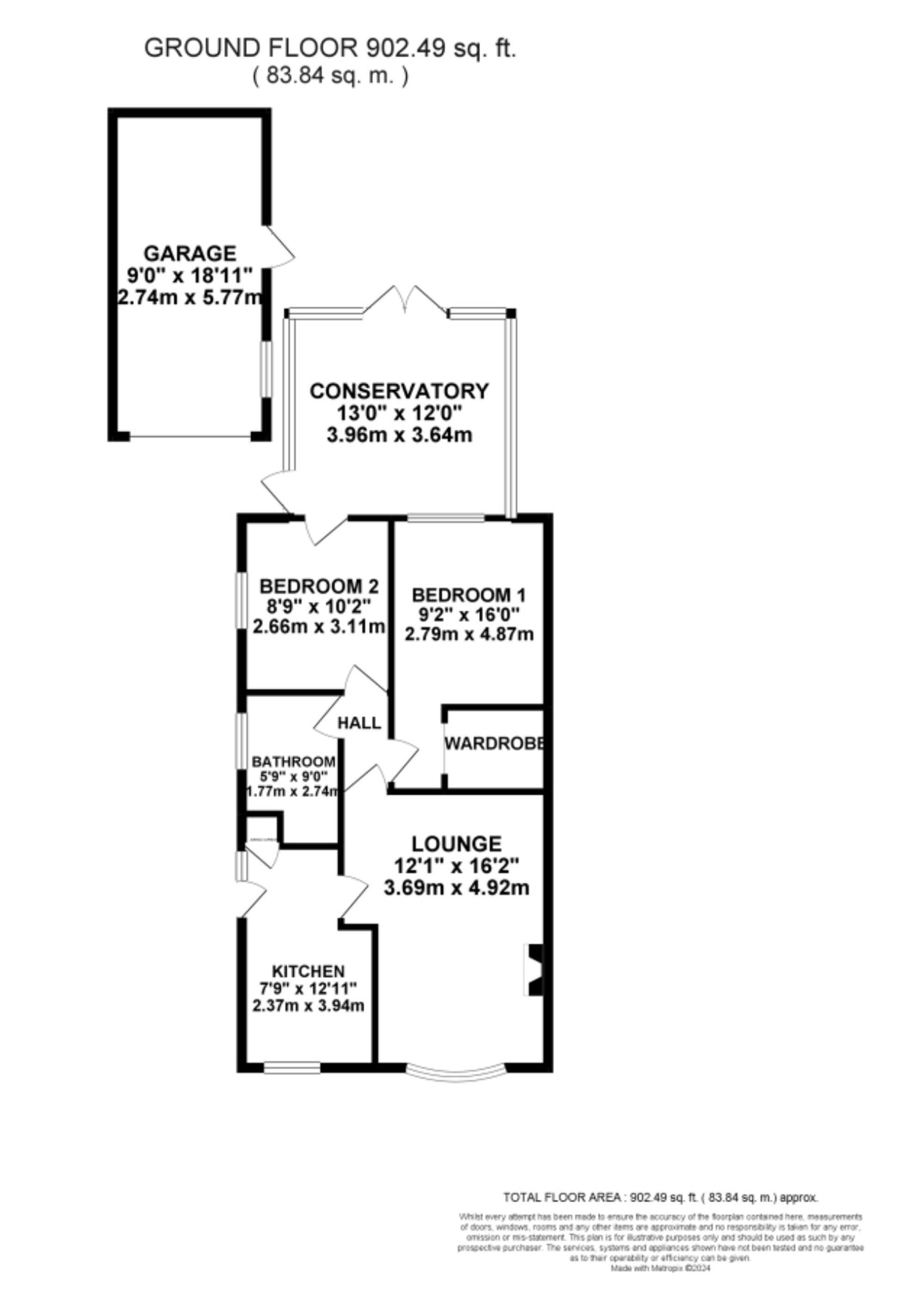
  • Delightful Two-bedroom detached bungalow that is being offered for sale with NO CHAIN!
  • The property features a traditional living area to the front and a generously sized conservatory to the rear which can be an adaptable space to suit your needs. Offering Kitchen with fitted applia...
  • Recently landscaped rear garden with gravelled seating area, stylish sleepers, artificial lawn and contemporary fencing.
  • Ample parking with a driveway that leads down the side of the property, leading to the garage.
  • Set at the end of a quiet cul-de-sac, you are within walking distance to Trentham gardens along with the closest bus stop only a short distance away.

Let there be peace in Trentham, and let it begin on Peacehaven Grove. Embrace your new haven, a delightful two-bedroom detached bungalow tucked away in a quiet cul-de-sac that backs onto the Trent and Mersey Canal. This charming property is offered with no chain, making your move as smooth as possible. Step inside to find a well-appointed kitchen offering oven, washing machine and fridge freezer, complemented by an airing cupboard for extra storage. Following through to the spacious living room, it features a large bow window that floods the room with natural light and is complete with a cosy fireplace, creating the perfect place to relax after exploring the stunning nearby Trentham Gardens. The master double bedroom features a walk-in wardrobe that maximises the space. The shower room includes a W/C, hand wash basin, and shower. The second bedroom provides access to a generously sized conservatory. This versatile space is perfect for snuggling up with your favourite books or embracing your inner artist with a vibrant arts and crafts room. Venture outside to your recently landscaped garden, designed for low-maintenance enjoyment, featuring sleepers, artificial lawn and contemporary fencing. A long driveway leads up the side of the house to the garage, providing ample parking for you and your visitors, with convenient access to the garage from both the driveway and the back garden. Located within walking distance of Trentham Gardens, the bungalow offers easy access to leisurely afternoons exploring the beautiful surroundings. For those who enjoy the outdoors, the nearby canal is perfect for Sunday strolls. With excellent road links to the A34 and a short walk to the closest bus stop, you’ll have everything you need for convenient travel and exploration. Seize every moment of peace and make this charming bungalow your perfect haven!

Important Information

  • This is a Freehold property.
  • This Council Tax band for this property is: C
  • EPC Rating is D

Property Ref: 97b304f7-b510-47d7-b228-6dbc8caea5f9

Share:

Similar Properties

Margaret Avenue, Trentham, Stoke on Trent ST4

3 Bedroom Semi-Detached House | £260,000

Charming 3-bed semi in Trentham, close to schools & amenities. Spacious living areas, extended kitchen, potential to con...

Douglas Avenue, Stoke-On-Trent, ST4

3 Bedroom Semi-Detached House | Offers in excess of £260,000

Every hero needs a great base. This three bedroom semi on Douglas Avenue, Oakhill features a living room with log burner...

Grange Road, Stone, ST15

3 Bedroom Semi-Detached House | Offers in excess of £260,000

Calling all home-hunters and comfort-seekers! X marks the spot on this semi-detached gem, perfectly located on Grange Ro...

Millstone Court, Stone, ST15

3 Bedroom Apartment | £265,000

Stylish, spacious three-bed apartment in central Stone with two en suites, Juliet balconies, two parking spaces and no o...

The Fillybrooks, Stone, ST15

3 Bedroom Detached House | £265,000

Stop horsing around and gallop over to this three-bedroom detached home on the outskirts of Stone complete with a detach...

Oulton Road, Stone, ST15

3 Bedroom Semi-Detached House | Offers in excess of £265,000

Welcome to a home that’s anything but ordinary. This three-bedroom semi-detached gem is ready to steal your heart. Brigh...

James Du Pavey Estate Agents (Stone)

Christchurch Way, Stone, Staffordshire, ST15 8BZ

01785 814917

How much is your home worth?

Use our short form to request a valuation of your property.

Request a Valuation

Mortgage Calculator

Amount Borrowed: £
Total Amount Repayable: £
Total Monthly Payment: £
©2026 The Guild of Property Professionals. All rights reserved. Terms and Conditions | Privacy Policy | Cookie Policy | Complaints Policy | Members Login
The Guild of Property Professionals Trading Address: 121 Park Lane, London W1K 7AG. GPEA Limited. Registered in England & Wales.  Company No: 02819824.  Registered Office Address: 2 St. Stephen's Court, St. Stephen's Road, Bournemouth, Dorset, England, BH2 6LA.  VAT Registration No: 576 8795 61
Book a Property Valuation Update Cookies Preferences