Greenbank Road, Stoke-On-Trent, ST6

£250,000
SSTC
This property listing is now SSTC

3 Bedroom Detached House for sale in Stoke-On-Trent

4 3 2
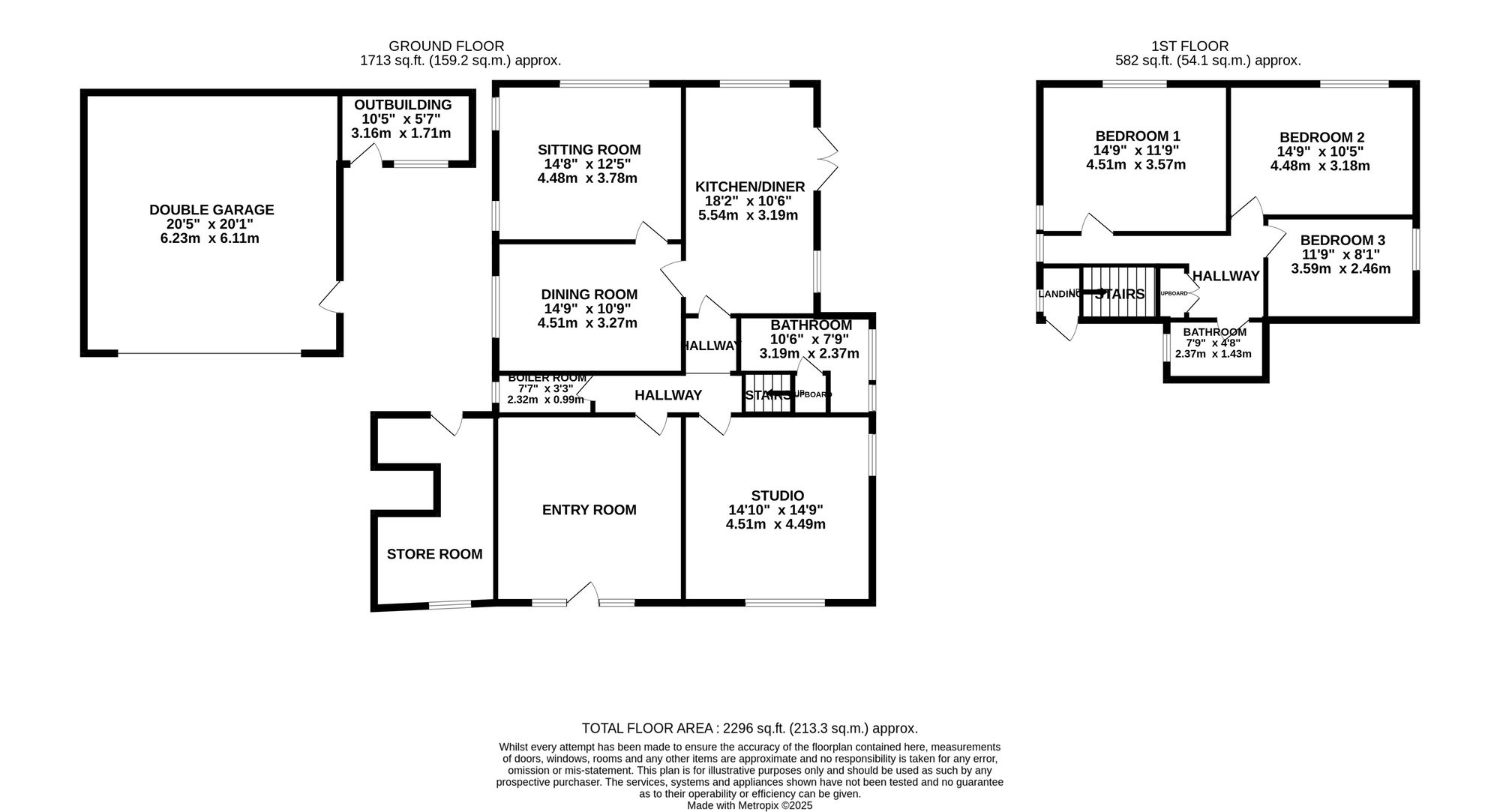
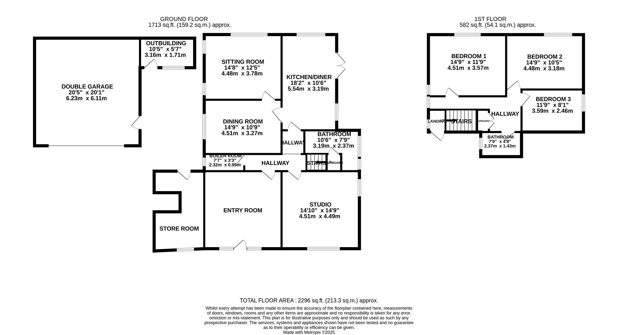
  • Four reception rooms in total, the possibilities are endless.
  • Three, good sized double bedrooms and two bathrooms.
  • Tunstall, Stoke-on-Trent, where modern convenience meets everyday comfort. With Stoke’s city centre just a short distance away, plus nearby Victoria Park for peaceful strolls.
  • Strong transport links to the A500 and beyond.
  • Large paved driveway with room for multiple vehicles with a low maintenance paved garden featuring a garage & workshop.

“So he’s a bit of a fixer-upper, but one thing’s for sure. You can bring out his best with just a little love.” Welcome to Greenbank Road in Tunstall, Stoke-on-Trent, where modern convenience meets everyday comfort. With Stoke’s city centre just a short distance away, plus nearby Victoria Park for peaceful strolls and excellent transport links to the A500, this location delivers practicality and charm in equal measure. Now, let’s talk about the property. While it’s ready for some TLC, this spacious three-bed detached home brims with potential. Upstairs you’ll find three generous double bedrooms, offering ample space for the whole family, along with a well-proportioned family bathroom completing the first floor. Downstairs sits the true heart of the home, the kitchen. It features an abundance of shaker-style cabinetry, dark grey worktops, and plenty of room for a large dining table. Double doors open out onto the patio, inviting seamless indoor-outdoor living. If you’re craving versatility, you’ll love the four separate reception rooms. Whether you envision a cosy living room, formal dining room, study, playroom, or even a workshop, the possibilities are endless. The ground floor also benefits from an additional bathroom. To the rear, a low-maintenance brick-paved garden awaits, enclosed by mature hedges and complemented by a double garage and workshop, ideal for storage or hobby space. At the front, a generous paved driveway offers parking for multiple vehicles. Bring your vision, add a little love, and make this house your next great project. Book your viewing today.

Energy Efficiency Current: 59.0
Energy Efficiency Potential: 72.0

Important Information

  • This is a Freehold property.
  • This Council Tax band for this property is: D

Property Ref: 05addf00-152e-4cbb-ad49-b404f55746d1

Share:

Similar Properties

Ness Grove, Cheadle, ST10

3 Bedroom Detached House | £250,000

Just like Nessie of Loch Ness (or Ness Grove in this case) this home holds host to affection, charm and a dream.

Chapel Lane, Kingsley Holt, ST10

2 Bedroom Semi-Detached House | Offers in excess of £250,000

Hop along to 22 Chapel Lane where you will find a cosy and spacious warren. Nestled in the picturesque semi-rural settin...

Barley Croft, Cheadle, ST10

3 Bedroom Bungalow | Offers in excess of £250,000

If you go down to the woods today, you’re sure of a big surprise!

Ivinson Way, Bramshall, ST14

3 Bedroom Semi-Detached House | £255,000

Calling All Creatives! This stunning, move-in-ready home is bursting with light, modern finishes, and the perfect canvas...

Uttoxeter Road, Blythe Bridge, ST11

3 Bedroom Detached House | £259,950

Cockerdoodle doo! Fresh faced and ready to take on the day. So is this house!

Scarratt Close, Forsbrook, ST11

3 Bedroom Semi-Detached House | £259,950

“Find a penny, pick it up and all day long you’ll have good luck” and just as the saying goes, if you’re truly lucky, yo...

James Du Pavey Estate Agents (Cheadle)

Cheadle, Staffordshire, ST10 1UY

01538711400

How much is your home worth?

Use our short form to request a valuation of your property.

Request a Valuation

Mortgage Calculator

Amount Borrowed: £
Total Amount Repayable: £
Total Monthly Payment: £
©2025 The Guild of Property Professionals. All rights reserved. Terms and Conditions | Privacy Policy | Cookie Policy | Complaints Policy | Members Login
The Guild of Property Professionals Trading Address: 121 Park Lane, London W1K 7AG. GPEA Limited. Registered in England & Wales.  Company No: 02819824.  Registered Office Address: 2 St. Stephen's Court, St. Stephen's Road, Bournemouth, Dorset, England, BH2 6LA.  VAT Registration No: 576 8795 61
Book a Property Valuation Update Cookies Preferences