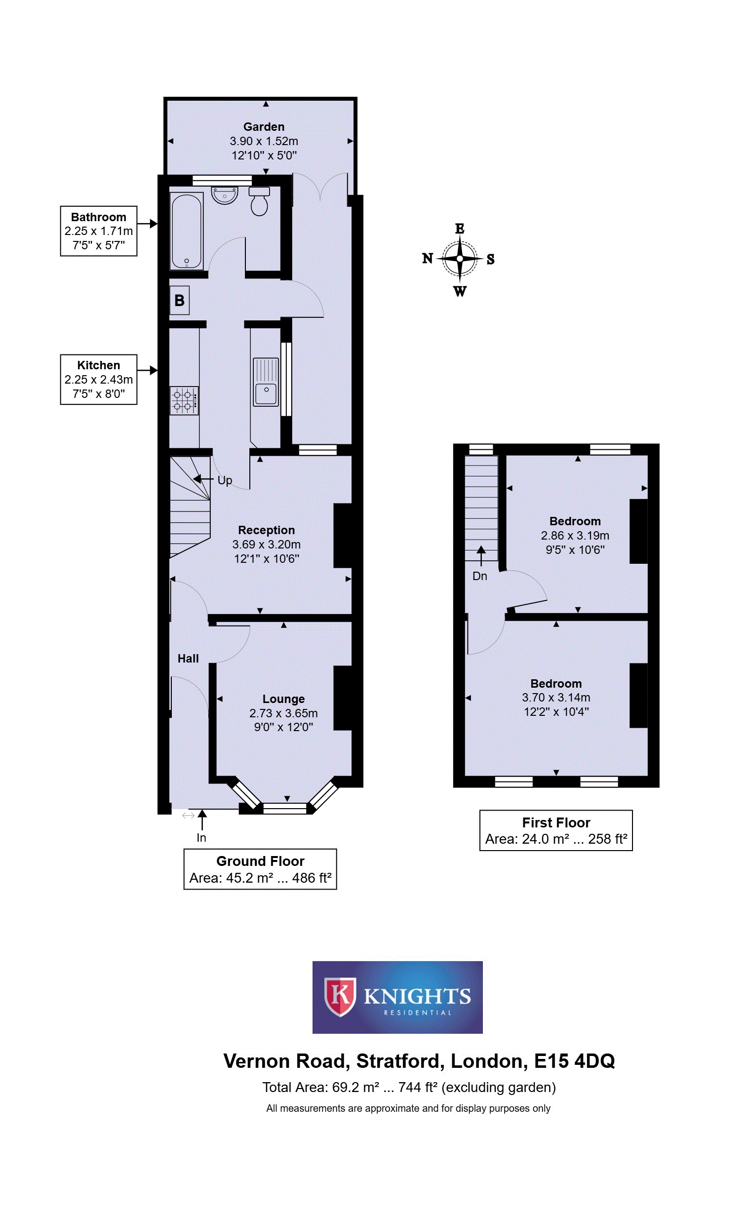
Vernon Road, Stratford, London, E15

Guide Price
£475,000
Under Offer
This property listing is now Under Offer

2 Bedroom House for sale in Stratford

2 2 1
  • Chain Free
  • 0.4 Miles from Maryland and Stratford Station
  • 2 Double Bedrooms
  • 2 Reception Rooms
  • Recently Refurbished
  • New Kitchen and Bathroom
  • Close to local amenities
  • Ideal first time buy or investment purchase
  • Call Knights to book your viewing

0.4 Miles from both Maryland and Stratford Station! Knights Residential are delighted to offer for sale this CHAIN FREE 2 bedroom 2 reception room Freehold House. The property has recently been refurbished including a new Kitchen and Bathroom. Please call Knights to register your interest and book in your viewing.

EPC Rating: D
Council Tax Band: C

A short walk from Westfield Stratford City, the Queen Elizabeth Olympic Park, and a range of independent cafes, shops, and restaurants.

Stratford station offers great connectivity with Central, Jubilee, Elizabeth, Docklands Light Railway (DLR), and Overground lines.
Westfield Stratford City, is just around the corner with all your favourite brands under one roof, masses of dining options and a 20-screen cinema, a must for movie lovers.

Commuters will benefit from excellent transport links, with Stratford Station and Maryland Station (Elizabeth Line) both within easy reach, offering quick connections to Canary Wharf, the City, and beyond. For those who travel by car, the A12, A406, and Blackwall Tunnel are easily accessible.

Important Information

  • This is a Freehold property.

Property Ref: DWR0013C7

Share:

Similar Properties

Cumberton Road , Tower Gardens , London, N17

2 Bedroom Terraced House | £475,000

Knights Residential are delighted to offer for sale this beautifully presented Two double bedroom Freehold House situate...

Morteyne Road, Morteyne Road, London, N17

2 Bedroom Terraced House | £475,000

2 bedroom end of terrace house, situated in the leafy Tower Gardens conservation area. This stunning property built arou...

Princess Street, London, N17

4 Bedroom Semi-Detached House | Guide Price £475,000

Knights Residential are delighted to offer this chain free 4 Bedroom Terrace home located within a close proximity to Wh...

Tower Gardens, London, n17

2 Bedroom End of Terrace House | £480,000

Knights are delighted to offer this stunning two bedroom end of terrace house with additional loft space. Built around 1...

WOODSIDE GARDENS, LONDON, N17

3 Bedroom House | £480,000

Victorian 3 Bedroom end of Terrace House located within a walking distance to Bruce Grove station. This property is pric...

Awlfield Avenue, London, N17

2 Bedroom End of Terrace House | Guide Price £480,000

A beautifully finished unique 2 bedroom end of terrace house, situated in the leafy Tower Gardens conservation area. Thi...

Knights Residential (Tottenham)

Tottenham, London, N17 9TA

0208 885 6800

How much is your home worth?

Use our short form to request a valuation of your property.

Request a Valuation

Mortgage Calculator

Amount Borrowed: £
Total Amount Repayable: £
Total Monthly Payment: £
©2026 The Guild of Property Professionals. All rights reserved. Terms and Conditions | Privacy Policy | Cookie Policy | Complaints Policy | Members Login
The Guild of Property Professionals Trading Address: 121 Park Lane, London W1K 7AG. GPEA Limited. Registered in England & Wales.  Company No: 02819824.  Registered Office Address: 2 St. Stephen's Court, St. Stephen's Road, Bournemouth, Dorset, England, BH2 6LA.  VAT Registration No: 576 8795 61
Book a Property Valuation Update Cookies Preferences