Elmhurst Lane, Street

£319,950
SSTC
This property listing is now SSTC

3 Bedroom End of Terrace House for sale in Street

2 3 1
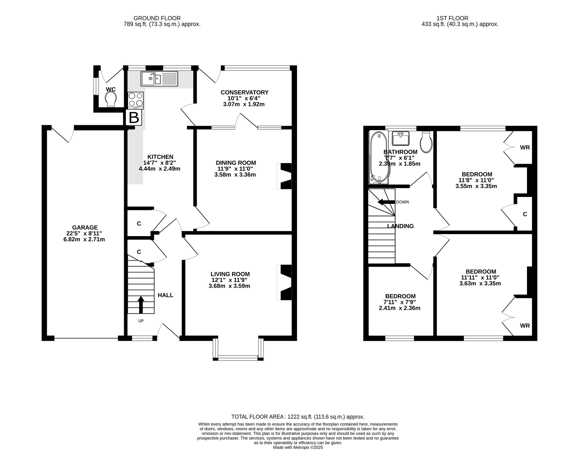
  • A well-presented home offering generous proportions throughout, with a spacious entrance hall and landing, understairs storage, and the added benefit of an external WC.
  • Benefiting from a brand-new central heating system and full electrical rewire, offering modern comfort and peace of mind throughout
  • There is potential to extend the property, subject to the necessary planning permissions and consents.
  • The bright and airy sitting room features a character stone fireplace and is bathed in natural light thanks to a wide bay window overlooking the front garden.
  • The dining room also boasts a decorative fireplace and opens into a light-filled conservatory, providing an excellent connection to the garden and a versatile space for relaxing or entertaining.
  • Newly fitted kitchen with a range of wall, base, and drawer units, incorporating an integrated oven and hob, generous worktop space and room for undercounter appliances.
  • Affording three bedrooms, including two spacious doubles, both with built-in wardrobe storage, and a third room ideal as a single bedroom or home office.
  • Desirable south-facing garden, mainly laid to lawn with mature shrub borders and a garden shed, ideal for relaxing or enjoying outdoor space.
  • To the front, an area of lawn is edged with flower-filled borders, with driveway parking for one vehicle leading to a garage with up-and-over door, power, light and pedestrian access to the rear.

A superb opportunity to acquire this mature three bedroom end terrace home with a private south facing garden set on a sought after road overlooking Elmhurst school playing fields and also convenient for and Millfield School and the town centre. Available with the advantage of no onward chain.

Location
Elmhurst Lane is situated within a short walk of the town's High Street with its good range of shops, Clarks HQ, Millfield School, banks and restaurants, the complex of shopping outlets in Clarks Village, Strode College and Strode Theatre. The historic town of Glastonbury is 2 miles and the Cathedral City of Wells is 8 miles. Access to the M5 motorway (junction 23) is 12 miles whilst Bristol, Bath, Taunton and Yeovil are approximately 32 miles, 30 miles, 26 miles and 15 miles respectively.

Directions
From the High Street proceed in an easterly direction until reaching the open air swimming pool on the right. Turn right into Wilfrid Road and continue straight ahead at the crossroads into Elmhurst Lane. Continue up the hill, and number 32 will be found on the right handside and easily identified by our for sale board.

Material Information
All available property information can be provided upon request from Holland & Odam. For confirmation of mobile phone and broadband coverage, please visit checker.ofcom.org.uk

Identity Verification
To ensure full compliance with current legal requirements, all buyers are required to verify their identity and risk status in line with anti-money laundering (AML) regulations before we can formally proceed with the sale. This process includes a series of checks covering identity verification, politically exposed person (PEP) screening, and AML risk assessment for each individual named as a purchaser. In addition, for best practice, we are required to obtain proof of funds and where necessary, to carry out checks on the source of funds being used for the purchase. These checks are mandatory and must be completed regardless of whether the purchase is mortgage-funded, cash, or part of a related transaction. A disbursement of £49 per individual (or £75 per director for limited company purchases) is payable to cover all aspects of this compliance process. This fee represents the full cost of conducting the required checks and verifications. You will receive a secure payment link and full instructions directly from our compliance partner, Guild365, who carry out these checks on our behalf.

Important Information

  • This is a Freehold property.

Property Ref: 552333_SCJ830744

Share:

Similar Properties

Moccasin Way, Street

4 Bedroom Townhouse | £319,950

Immaculately presented and exceptionally well maintained, this four-bedroom townhouse offers spacious, well-proportioned...

Oriel Road, Street

2 Bedroom Bungalow | £319,950

Advantageously available with no onward chain and vacant possession, this spacious two-bedroom bungalow offers well-prop...

Middle Brooks, Street

3 Bedroom Semi-Detached House | £318,500

A well-presented and extended three-bedroom home in a popular and established area of Street. Featuring a superb modern...

Broadway Avenue, Chilton Polden

3 Bedroom Semi-Detached House | £322,500

Available with no onward chain, this generously extended family home provides deceptively spacious and upgraded accommod...

Taunton Road, Ashcott

3 Bedroom Semi-Detached House | £325,000

Located on the outskirts of the sought-after village of Ashcott, this mature and extended three-bedroom semi-detached ho...

Cranhill Road, Street

2 Bedroom Detached Bungalow | £335,000

Situated just a stone's throw from the High Street, this well-presented two-bedroom detached bungalow offers spacious an...

Holland & Odam (Street)

Street, Somerset, BA16 0BJ

01458 841411

How much is your home worth?

Use our short form to request a valuation of your property.

Request a Valuation

Mortgage Calculator

Amount Borrowed: £
Total Amount Repayable: £
Total Monthly Payment: £
©2025 The Guild of Property Professionals. All rights reserved. Terms and Conditions | Privacy Policy | Cookie Policy | Complaints Policy | Members Login
The Guild of Property Professionals Trading Address: 121 Park Lane, London W1K 7AG. GPEA Limited. Registered in England & Wales.  Company No: 02819824.  Registered Office Address: 2 St. Stephen's Court, St. Stephen's Road, Bournemouth, Dorset, England, BH2 6LA.  VAT Registration No: 576 8795 61
Book a Property Valuation Update Cookies Preferences