West End, Street

£269,950

2 Bedroom Character Property for sale in Street

2 2 1
  • Ideally located just steps from the High Street and a short walk to Clarks Village, offering easy access to shops, cafes, amenities, outlet stores, and a variety of dining options.
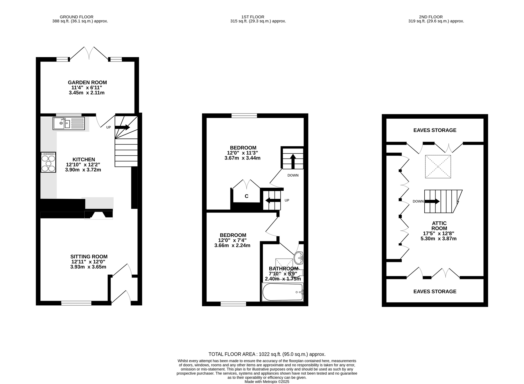
  • Enjoying a spacious, characterful sitting room with rich solid oak wood flooring and skirting, a deep sill sash window to the front, and a striking, cast iron fireplace as the central feature
  • Generously sized kitchen fitted with a range of solid oak wood units,accommodating a range-style cooker, ceramic sink unit, cast iron fireplace and ample space for dining table and chairs.
  • Versatile garden room currently used as a utility space, with direct access to the garden via French doors. A bright and flexible area suited to a variety of potential uses
  • Stylish bathroom flooded with natural light from a large skylight, featuring a panelled bath with overhead shower, modern tiling, and a built-in vanity unit with basin and storage and WC
  • Offering two first-floor bedrooms, including a generously sized double with built-in wardrobes and shelving, along with a spacious single bedroom
  • Alongside the two first-floor bedrooms, the second floor offers a stunning attic room with exposed beams, bespoke wardrobes, eaves storage, and natural light from a Velux window—a characterful ret...
  • Superb sized garden with gravel area off the rear elevation, with steps up to a large raised deck ideal for alfresco dining, lawned area, and a spacious summer house perfect for storage or a work...

Full of character and charm, this delightful Victorian cottage features a spectacular converted attic space that could serve as a third bedroom, home office or studio (subject to any necessary consents). Beautiful period features, including cast iron fireplaces and exposed beams, blend seamlessly with a surprisingly spacious interior that offers far more than first meets the eye. The large, light-filled attic room showcases stunning exposed timber framing. Step outside to discover a generous garden perfect for relaxing, entertaining, or even future potential. The added bonus of off-road parking makes this an even more appealing opportunity. This is one not to be overlooked and available with no onward chain.

Location
West End continues from the High Street and comprises mainly Victorian and period houses and cottages together with the popular Icon Development. Street is a thriving mid Somerset town famous as the home of Millfield School and Clarks Shoes and also popular with shoppers visiting the Clarks Village complex. The town provides primary schooling, Crispin Secondary School, Strode Sixth Form College, Strode Theatre, indoor and open air swimming pools and a choice of pubs and restaurants. The neighbouring town of Glastonbury is an historic centre and provides a further range of shopping facilities. Surrounding centres include Wells 9 miles, Bath 33 miles, Bristol 33 miles, Yeovil 15 miles and Taunton 26 miles distance.

Directions
From the High Street. Proceed along the High Street with the Bear Inn on your left. Continue through the shopping centre, pass a garage, a Police Station and Morrisons convenience store on your left. The property will be found a short distance later on the left thand side and easily identified by our For Sale Board.

Material Information
All available property information can be provided upon request from Holland & Odam. For confirmation of mobile phone and broadband coverage, please visit checker.ofcom.org.uk

Identity Verification
To ensure full compliance with current legal requirements, all buyers are required to verify their identity and risk status in line with anti-money laundering (AML) regulations before we can formally proceed with the sale. This process includes a series of checks covering identity verification, politically exposed person (PEP) screening, and AML risk assessment for each individual named as a purchaser. In addition, for best practice, we are required to obtain proof of funds and where necessary, to carry out checks on the source of funds being used for the purchase. These checks are mandatory and must be completed regardless of whether the purchase is mortgage-funded, cash, or part of a related transaction. A disbursement of £49 per individual (or £75 per director for limited company purchases) is payable to cover all aspects of this compliance process. This fee represents the full cost of conducting the required checks and verifications. You will receive a secure payment link and full instructions directly from our compliance partner, Guild365, who carry out these checks on our behalf.

Important Information

  • This is a Freehold property.
  • This Council Tax band for this property is: B

Property Ref: SCJ792197

Share:

Similar Properties

Old School Close, Ashcott

3 Bedroom End of Terrace House | £269,950

Beautifully decorated and well-presented throughout , this charming end-of-terrace former schoolhouse blends characterfu...

Leigh Furlong Road, Street

2 Bedroom Semi-Detached Bungalow | £269,950

This neatly presented two-bedroom semi-detached bungalow is set within a popular residential area, just a short distance...

Grange Avenue, Street

3 Bedroom Semi-Detached House | £269,500

A well-presented three-bedroom semi-detached house featuring an open-plan living area, additional reception room, and th...

Brooks Road, Street

3 Bedroom Detached House | £273,500

Built in 2010 and positioned adjacent to Brookside Academy school and Avalon School, School View House is a well-designe...

Leigh Furlong Road, Street

3 Bedroom Semi-Detached Bungalow | £279,950

A well maintained semi-detached bungalow, occupying a wonderful position in this established cul-de-sac and complemented...

Blenheim Road, Street

2 Bedroom Semi-Detached Bungalow | £279,950

An excellent opportunity to purchase is this mature and well-proportioned semi-detached bungalow with low maintenance ga...

Holland & Odam (Street)

Street, Somerset, BA16 0BJ

01458 841411

How much is your home worth?

Use our short form to request a valuation of your property.

Request a Valuation

Mortgage Calculator

Amount Borrowed: £
Total Amount Repayable: £
Total Monthly Payment: £
©2026 The Guild of Property Professionals. All rights reserved. Terms and Conditions | Privacy Policy | Cookie Policy | Complaints Policy | Members Login
The Guild of Property Professionals Trading Address: 121 Park Lane, London W1K 7AG. GPEA Limited. Registered in England & Wales.  Company No: 02819824.  Registered Office Address: 2 St. Stephen's Court, St. Stephen's Road, Bournemouth, Dorset, England, BH2 6LA.  VAT Registration No: 576 8795 61
Book a Property Valuation Update Cookies Preferences