Seymour Road, Street

£289,950
SSTC
This property listing is now SSTC

2 Bedroom Bungalow for sale in Street

2 2 1
  • Located in a sought-after part of town, just a short walk from local shops, amenities and services.
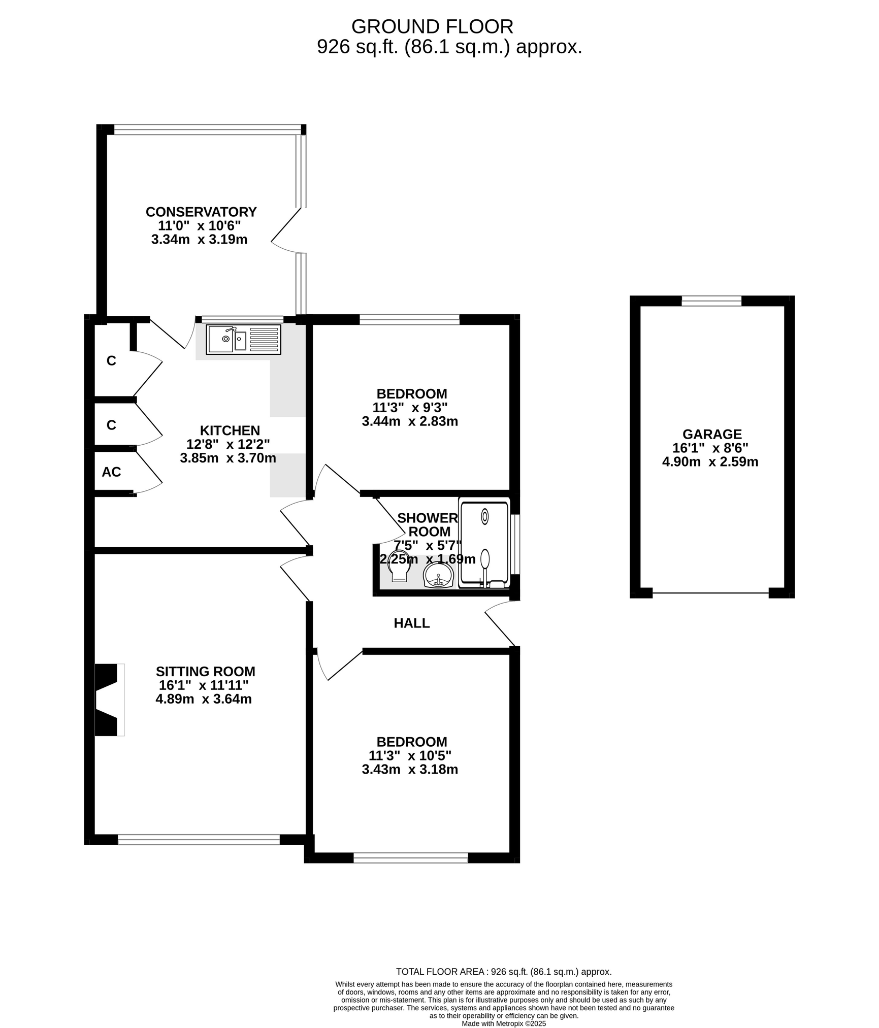
  • Enjoys a light and spacious sitting room with a large front window and feature fireplace (not currently in working order).
  • Good sized, fitted kitchen with base and drawer units, space for appliances, freestanding fridge/freezer, two pantry cupboards, and an airing cupboard.
  • Generous conservatory enjoying a sunny aspect, offering a versatile additional reception space with direct access to the rear garden.
  • Affording two well proportioned double bedrooms both of which are bright and airy with space for freestanding furniture.
  • Contemporary shower room with vanity unit and basin, WC, large walk-in shower enclosure, and heated chrome towel rail.
  • Low-maintenance rear garden featuring gravel, patio, mature shrubs, and vibrant borders. Fully enclosed and ideal for outdoor seating, dining, or simply relaxing in a private setting.
  • The front of the property features a level lawn and a private driveway providing off-road parking, leading up to a detached garage fitted with an up-and-over door, power, and light.

Offered to the market with no onward chain and vacant possession, this neatly presented two-bedroom semi-detached bungalow provides an excellent opportunity for downsizers, first-time buyers, or those seeking a peaceful retreat. Well maintained throughout, the home offers comfortable single-level living with scope for further personalisation if desired.The property benefits from an enclosed rear garden, driveway and a detached garage.

Location
The property is situated within one of the towns most desirable areas and is prominently positioned for Millfield School whilst also being only half a mile from the main High Street with its comprehensive range of shops, banks and the Clarks Village complex of factory shops. Street also offers recreational and sporting facilities including Strode Theatre, both indoor and outdoor swimming pools, tennis, bowls, squash, football etc. The historic town of Glastonbury is 2 miles, the Cathedral City of Wells 8 miles and the nearest M5 motorway interchange, Junction 23, is 12 miles. Bristol, Bath, Taunton and Yeovil are each within commuting distance.

Directions
From the town centre, head onto Leigh Road, passing the library on your left. Follow Leigh Road to the very end, then turn left at the junction onto Portway. Take the next right into Burleigh Lane, followed by the first left into Burley Gardens. Seymour Road is the next left turn, continue along and the property will be directly ahead of you as the road curves to the right.

Material Information
All available property information can be provided upon request from Holland & Odam. For confirmation of mobile phone and broadband coverage, please visit checker.ofcom.org.uk

Identity Verification
To ensure full compliance with current legal requirements, all buyers are required to verify their identity and risk status in line with anti-money laundering (AML) regulations before we can formally proceed with the sale. This process includes a series of checks covering identity verification, politically exposed person (PEP) screening, and AML risk assessment for each individual named as a purchaser. In addition, for best practice, we are required to obtain proof of funds and where necessary, to carry out checks on the source of funds being used for the purchase. These checks are mandatory and must be completed regardless of whether the purchase is mortgage-funded, cash, or part of a related transaction. A disbursement of £49 per individual (or £75 per director for limited company purchases) is payable to cover all aspects of this compliance process. This fee represents the full cost of conducting the required checks and verifications. You will receive a secure payment link and full instructions directly from our compliance partner, Guild365, who carry out these checks on our behalf.

Important Information

  • This is a Freehold property.

Property Ref: 552333_SCJ820472

Share:

Similar Properties

Stonehill, Street

2 Bedroom Bungalow | £285,000

Conveniently located within walking distance of the High Street and its amenities a beautifully presented two bedroom de...

Willow Road, Street

3 Bedroom Semi-Detached House | £285,000

We are pleased to bring to market this attractive three-bedroom semi-detached house, located in a popular residential ar...

Leigh Furlong Road, Street

3 Bedroom Semi-Detached Bungalow | £279,950

A well maintained semi-detached bungalow, occupying a wonderful position in this established cul-de-sac and complemented...

Moor Road, Moorlinch

3 Bedroom Semi-Detached House | £295,000

Enjoying a generous south-facing plot and wonderful countryside views, this spacious three-bedroom semi-detached home is...

Brookleigh, Street

2 Bedroom Semi-Detached Bungalow | £299,500

Extended modern semi detached bungalow, having two double bedrooms, sitting/dining room, kitchen with breakfast room off...

Queens Road, Street

3 Bedroom Semi-Detached House | £299,950

This generously proportioned and well-presented three-bedroom semi-detached family home is sure to be popular. Convenien...

Holland & Odam (Street)

Street, Somerset, BA16 0BJ

01458 841411

How much is your home worth?

Use our short form to request a valuation of your property.

Request a Valuation

Mortgage Calculator

Amount Borrowed: £
Total Amount Repayable: £
Total Monthly Payment: £
©2025 The Guild of Property Professionals. All rights reserved. Terms and Conditions | Privacy Policy | Cookie Policy | Complaints Policy | Members Login
The Guild of Property Professionals Trading Address: 121 Park Lane, London W1K 7AG. GPEA Limited. Registered in England & Wales.  Company No: 02819824.  Registered Office Address: 2 St. Stephen's Court, St. Stephen's Road, Bournemouth, Dorset, England, BH2 6LA.  VAT Registration No: 576 8795 61
Book a Property Valuation Update Cookies Preferences