Ambridge Close, Street

£335,000
SSTC
This property listing is now SSTC

4 Bedroom Detached House for sale in Street

2 4 2
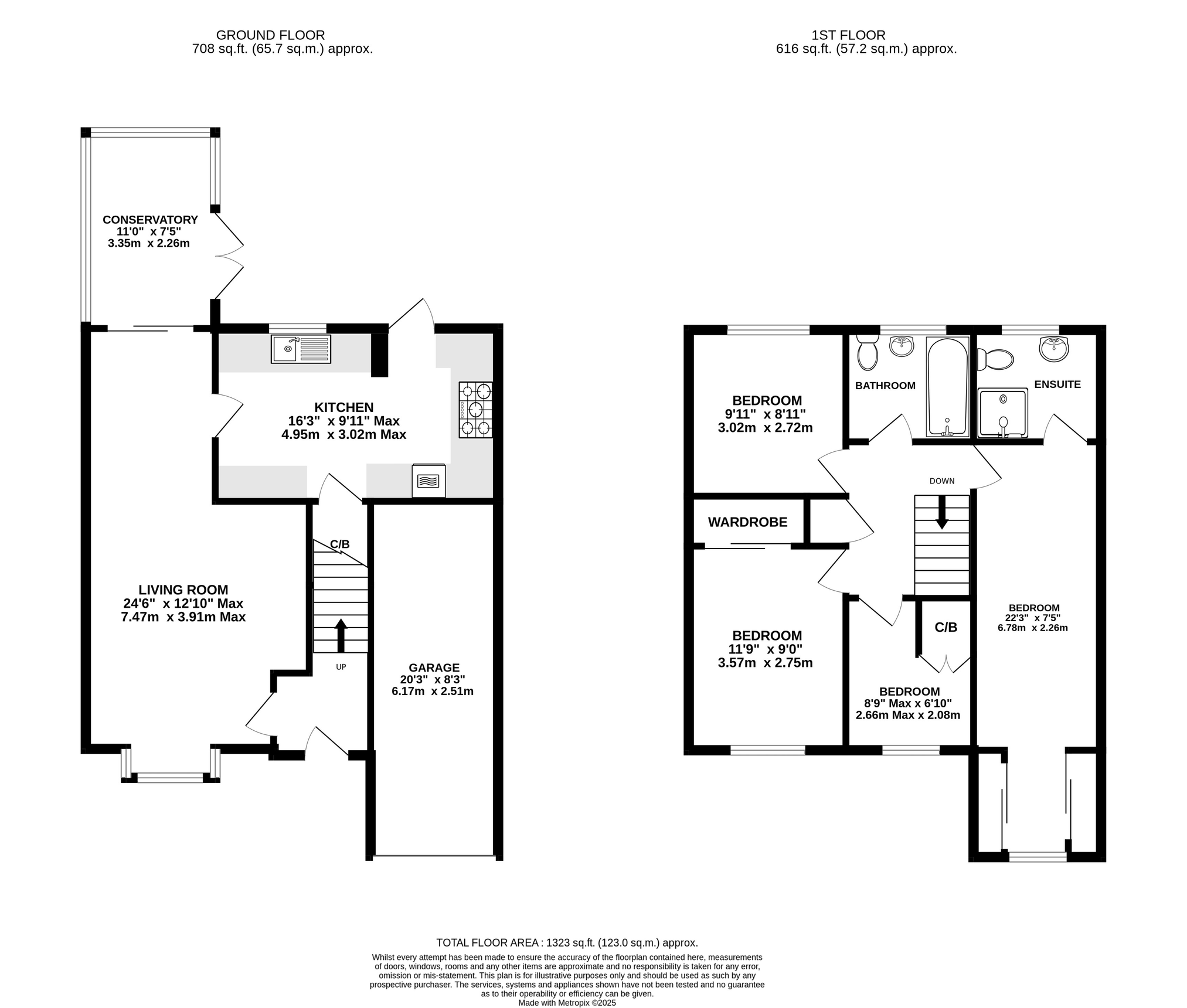
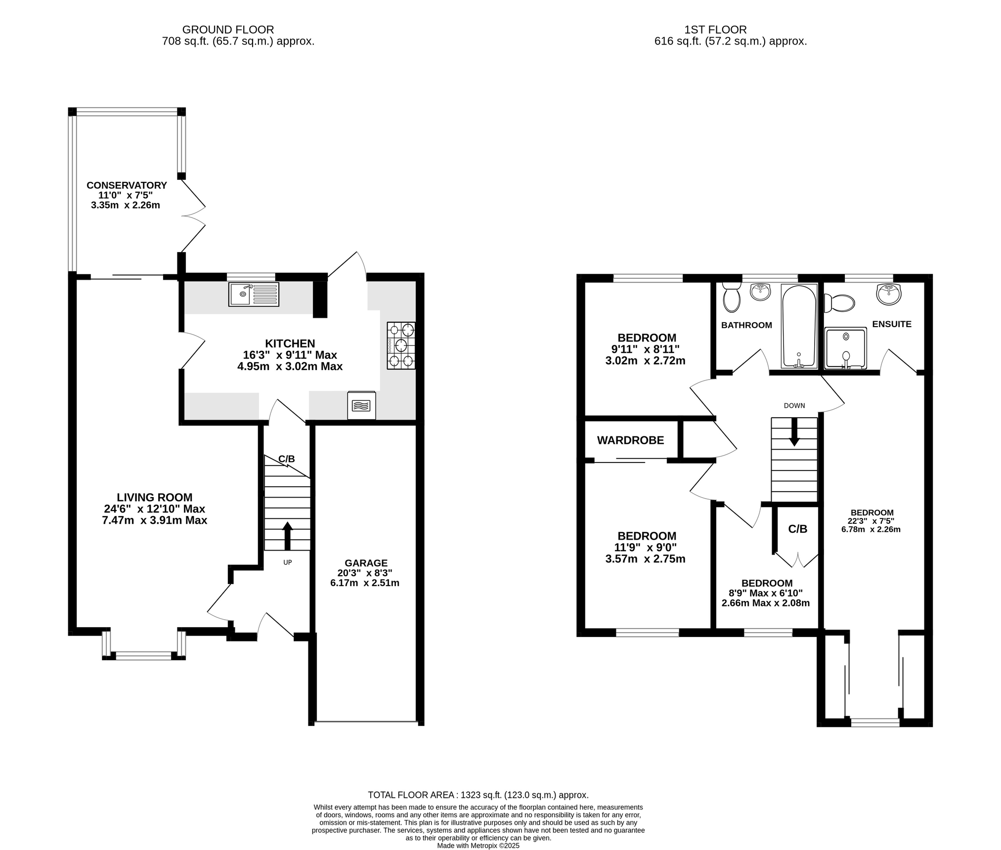
  • Enjoying a bright and airy living room, featuring a dual aspect with a bow window to the front and French doors to the rear opening into the conservatory.
  • The conservatory provides an additional reception space, enjoying views over the garden with doors giving direct access outside.
  • Good size kitchen fitted with a range of wall, base and drawer units, built in oven and hob and space for under counter appliances.
  • The first floor features four bedrooms, three of which are spacious doubles, including an en-suite, with two further rooms benefitting from built-in wardrobes.
  • Service by the neatly presented family bathroom comprising panelled bath with shower over, wash basin and WC.
  • Fully enclosed and designed for low maintenance, with a patio extending from the house and steps leading to a section laid with artificial lawn.
  • The conservatory provides an additional reception space, enjoying views over the garden with doors giving direct access outside.
  • Benefiting from driveway parking for one vehicle leading up to the garage which has been fitted with up and over door, power and light.
  • Please note some photographs were taken prior to current tenancy and are for guidance purposes only.

Situated in a quiet cul-de-sac, this attractive four bedroom detached house offers spacious accommodation throughout. The property benefits from a generous enclosed rear garden, garage, and off-road parking. Ideal for families, this well-presented home provides a perfect balance of comfort and practicality in a sought-after residential location.

Location
Street is a thriving mid Somerset town famous as the home of Millfield School and Clarks Shoes and also popular with shoppers visiting the Clarks Village complex. The town provides primary schooling, Crispin Secondary School, Strode Sixth Form College, Strode Theatre, indoor and open air swimming pools and a choice of pubs and restaurants. The neighbouring town of Glastonbury is an historic centre and provides a further range of shopping facilities. Surrounding centres include Wells 9 miles, Bath 33 miles, Bristol 33 miles, Yeovil 15 miles and Taunton 26 miles distance.

Directions
From the High Street proceed passing the Avalon Guns on the left, shortly after which turn left into Stonehill and at the top of the hill turn right. Follow the road and turn left at the roundabout into Brooks Road. Take the next right into Brookfield Way and the first turning on your left into Ambridge Close.

Material Information
All available property information can be provided upon request from Holland & Odam. For confirmation of mobile phone and broadband coverage, please visit checker.ofcom.org.uk

Identity Verification
To ensure full compliance with current legal requirements, all buyers are required to verify their identity and risk status in line with anti-money laundering (AML) regulations before we can formally proceed with the sale. This process includes a series of checks covering identity verification, politically exposed person (PEP) screening, and AML risk assessment for each individual named as a purchaser. In addition, for best practice, we are required to obtain proof of funds and where necessary, to carry out checks on the source of funds being used for the purchase. These checks are mandatory and must be completed regardless of whether the purchase is mortgage-funded, cash, or part of a related transaction. A disbursement of £49 per individual (or £75 per director for limited company purchases) is payable to cover all aspects of this compliance process. This fee represents the full cost of conducting the required checks and verifications. You will receive a secure payment link and full instructions directly from our compliance partner, Guild365, who carry out these checks on our behalf.

Important Information

  • This is a Freehold property.
  • This Council Tax band for this property is: C

Property Ref: SCJ855679

Share:

Similar Properties

Moor Road, Moorlinch

3 Bedroom Semi-Detached House | £320,000

We are pleased to bring to the market this beautifully presented three-bedroom semi-detached home, enjoying breathtaking...

Oakfield Road, Street

3 Bedroom Semi-Detached Bungalow | £307,950

This delightful semi-detached three-bedroom bungalow is beautifully presented and tastefully decorated throughout, offer...

Goss Drive, Street

3 Bedroom Semi-Detached House | £305,000

An attractive three-bedroom semi-detached home offering well-proportioned and versatile accommodation, neatly presented...

Clockhouse View, Street

4 Bedroom Town House | £339,950

This spacious semi detached town house, featuring a blue lias stone exterior, under a tiled roof, is conveniently situat...

Brookfield Way, Street

3 Bedroom Detached House | £349,950

This attractive three-bedroom detached house is quietly positioned at the end of a no-through road within a desirable re...

Hurmans Close, Ashcott

3 Bedroom Bungalow | £349,950

A surprisingly spacious and extended three bedroom semi-detached chalet bungalow, ideally positioned within a quiet cul-...

Holland & Odam (Street)

Street, Somerset, BA16 0BJ

01458 841411

How much is your home worth?

Use our short form to request a valuation of your property.

Request a Valuation

Mortgage Calculator

Amount Borrowed: £
Total Amount Repayable: £
Total Monthly Payment: £
©2026 The Guild of Property Professionals. All rights reserved. Terms and Conditions | Privacy Policy | Cookie Policy | Complaints Policy | Members Login
The Guild of Property Professionals Trading Address: 121 Park Lane, London W1K 7AG. GPEA Limited. Registered in England & Wales.  Company No: 02819824.  Registered Office Address: 2 St. Stephen's Court, St. Stephen's Road, Bournemouth, Dorset, England, BH2 6LA.  VAT Registration No: 576 8795 61
Book a Property Valuation Update Cookies Preferences