6 De Sully Close, Sully, The Vale of Glamorgan CF64 5WN

Asking Price
£399,950
SSTC
This property listing is now SSTC

3 Bedroom Detached House for sale in Sully

1 3 2
  • Beautifully presented modern family home
  • Taylor Wimpey built in 2022
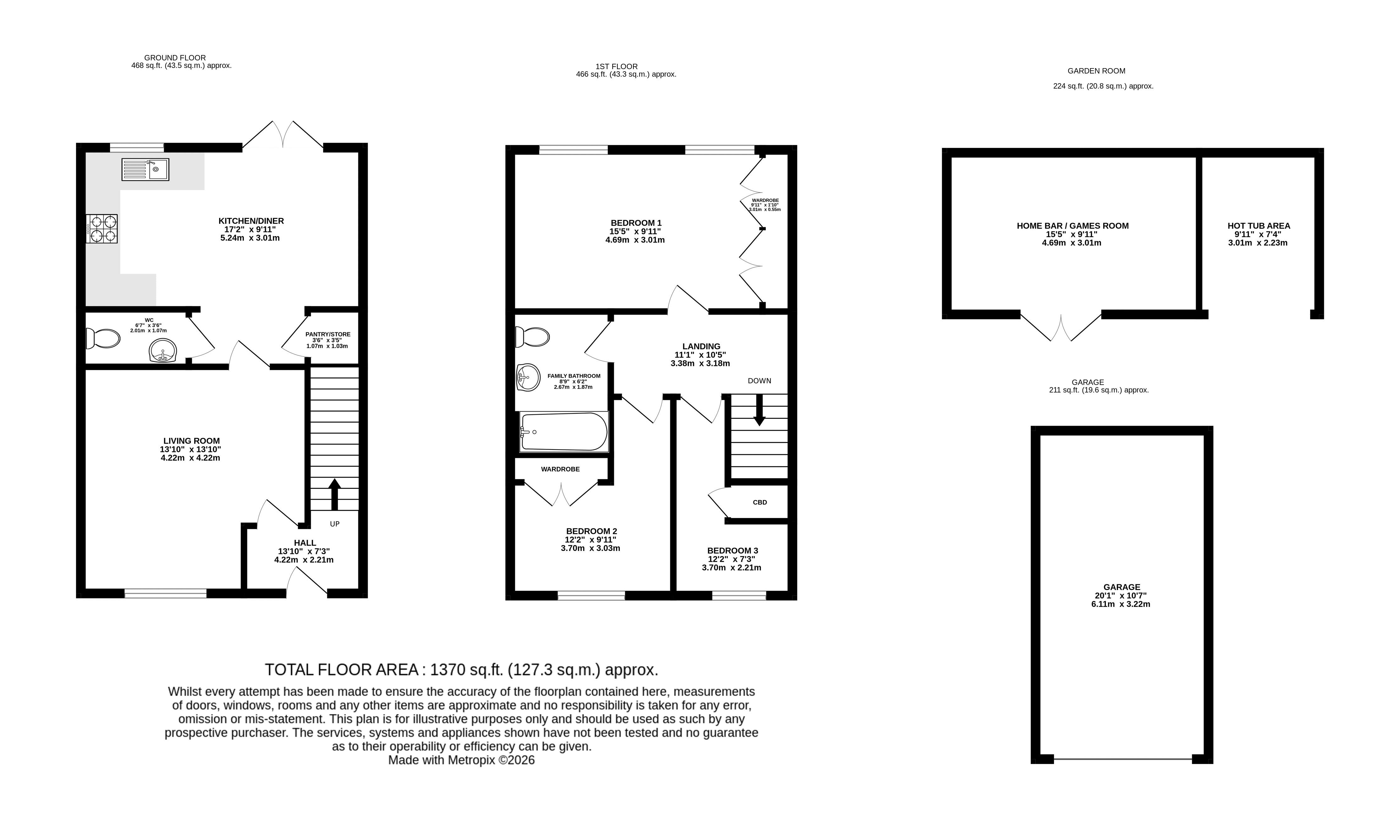
  • Ground Floor - hall, living room, kitchen/diner, WC
  • First Floor - three bedrooms and family bathroom  
  • Driveway parking for two vehicles leading onto single garage
  • Landscaped, fully enclosed rear garden
  • A bespoke-built red cedarwood garden room offering versatile use
  • Positioned peacefully within the development
  • Great connectivity to local amenities of Sully village, Penarth and Cardiff

Composite glazed front door opens to the HALLWAY with tiled flooring, fitted ceiling light and a straight carpeted stairs rising to the first floor.

A generous front LIVING ROOM has a continuation of the tiled flooring, custom built media wall with feature electric fire under and window to the front elevation.

The accommodation continues to the rear of the property with a highly sociable, open plan KITCHEN/DINER.

A timeless shaker style fitted kitchen configured in a 'U' shape providing brilliant storage.

Appliances to remain include a gas hob, split level oven and grill, integrated fridge/freezer, washing machine and dishwasher. In addition a large walk-in cupboard/pantry provided further storage options.

A large fully tiled WC has been stylishly finished with modern 'Gerberit' low level WC and hand basin.

Upstairs, off a carpeted landing are three bedrooms and family bathroom with access to the attic. BEDROOM ONE is a well-balanced double with frontward facing views with venetian blinds to remain. Two sets of double wardrobes have been fitted providing great storage.

BEDROOM TWO lies to the front of the home, well-presented and double in size with fitted carpet and a large built-in wardrobe.

BEDROOM THREE, uPVC double glazed window to front. Carpet, radiator, over stair store cupboard.

FAMILY BATHROOM has modern tiling throughout and comprises a four piece 'Gerberit' suite with panelled bath, rainfall shower over, wash basin and WC.

To the front lies a manicured, naturally planted border with side double driveway that can accommodate two vehicles with a fitted EV charging port to remain. Extending beyond lies a single GARAGE with 'up & over' door with power and lighting fitted.

A fully enclosed south facing rear garden has been thoughtfully designed for entertaining and family life. A large patio leads into a lawn area.

A sizeable, fully insulated, bespoke built, red cedarwood GARDEN ROOM has been constructed and installed by 'Garden Room Wales'. Currently used as a bar/games room with glazed French doors and windows drawing natural light in. Timber style flooring fitted and fully decorated throughout with modern downlighting, electric point and heating via electric panel radiator. Former a home office/study this space is truly versatile and could always be a studio/gym or further guest accommodation.

Important Information

  • This is a Freehold property.

Property Ref: HRT16156

Share:

Similar Properties

12 De Clare Lodge, Cowbridge, The Vale of Glamorgan CF71 7FR

1 Bedroom Ground Floor Apartment | Asking Price £395,000

A purpose-built, one bedroom ground floor apartment benefiting from a private patio to the rear. Situated within the hig...

Dunedin, Croescade Lane, Llantwit Fardre, Pontypridd CF38 2PN

3 Bedroom Not Specified | Asking Price £390,000

A detached, three double bedroom bungalow sat in a gated and generous garden plot in a semi-rural location with far rang...

7 Church Crescent, St. Hilary, Cowbridge, The Vale of Glamorgan CF71 7DQ

3 Bedroom Semi-Detached House | Asking Price £390,000

Three-bedroom semi-detached house in need of general modernisation enjoying an outstanding location in the centre of the...

Cedar House, 10 Carreg Arwyn, Llanharry, Pontyclun CF72 9LG

5 Bedroom Detached House | Offers in excess of £399,995

Deceptively spacious detached property situated in the village of Llanharry. This large home offers versatile accommodat...

36 Borough Close, Cowbridge, the Vale of Glamorgan CF71 7BN

3 Bedroom Semi-Detached House | Asking Price £399,999

Traditional semi-detached, three bedroom house in a quiet, yet central location with considerable potential (subject to...

34 De Clare Lodge, Westgate, Cowbridge, Vale of Glamorgan, CF71 7FR

1 Bedroom Apartment | Asking Price £399,999

A beautifully presented one double bedroom, second floor apartment enjoying views over neighbouring sports fields. Situa...

H R Thomas Ltd (Cowbridge)

Cowbridge, South Wales, CF71 7AF

01446 772911

How much is your home worth?

Use our short form to request a valuation of your property.

Request a Valuation

Mortgage Calculator

Amount Borrowed: £
Total Amount Repayable: £
Total Monthly Payment: £
©2026 The Guild of Property Professionals. All rights reserved. Terms and Conditions | Privacy Policy | Cookie Policy | Complaints Policy | Members Login
The Guild of Property Professionals Trading Address: 121 Park Lane, London W1K 7AG. GPEA Limited. Registered in England & Wales.  Company No: 02819824.  Registered Office Address: 2 St. Stephen's Court, St. Stephen's Road, Bournemouth, Dorset, England, BH2 6LA.  VAT Registration No: 576 8795 61
Book a Property Valuation Update Cookies Preferences