Cross Road, Tadworth

Asking Price
£1,600,000

5 Bedroom Detached House for sale in Surrey

4 5 3
  • 4/5 bedroom extended and refurbished home Open plan Kitchen/Dining/Family Separate Dining, Study and Gym rooms Siemens appliances in kitchen Beautiful front aspect Garage and parking Prime Tadwort...

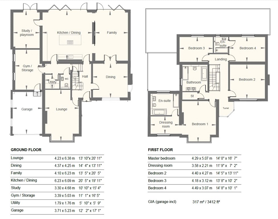
Eastons are proud to offer to the market an exceptional home of approximately 3493 sq ft. The 4/5 bedroom family home has been extended and exceptionally refurbished with internal finishes completed to a very high standard by award winning developer Denton Homes.

The front aspect offers a beautiful entrance with manicured lawns and a lovely porch. Once inside the spacious hall offers access to the lounge, dining and kitchen areas. The front facing lounge is a very generous size and includes a large bay window overlooking the front garden. The beautiful kitchen/dining overlooks the South facing back garden and has through access to the study, family and utility rooms. There is a separate dining room to the front of the property. The ground floor also features a gym room with internal access to the garage.

The first floor features 4 bedrooms. The principle bedroom features a separate dressing and ensuite with bath and separate shower. There is a second ensuite in Bedroom 4. The family bathroom is expansive and luxurious. The landing is a feature in itself due to its size and spaciousness. There is also a cosy Turret on this floor offering a unique space to sit and enjoy the views and natural light.

The house is located on one of Tadworth's most sought after roads.

Important Information

  • This is a Freehold property.
  • The annual service charges for this property is £575
  • EPC Rating is C

Property Ref: LND240035

Share:

Similar Properties

Chipstead Way, Banstead

4 Bedroom Detached House | Guide Price £1,200,000

Eastons are delighted to introduce Cilantro at Herb Grove, a beautifully designed four-bedroom, two-bathroom detached fa...

Chipstead Way, Banstead

4 Bedroom Detached House | Asking Price £865,000

A unique opportunity to add value to a character property. Four bed detached family house in a highly desirable location...

Chipstead Way, Banstead

3 Bedroom Semi-Detached House | Guide Price £800,000

Eastons are pleased to offer Sage at Herb Grove, an attractive three-bedroom, two-bathroom semi-detached family home, se...

Eastons (Tattenham Corner)

7 Tattenham Crescent, Epsom, Tattenham Corner, Surrey, KT18 5QG

01737 353005

How much is your home worth?

Use our short form to request a valuation of your property.

Request a Valuation

Mortgage Calculator

Amount Borrowed: £
Total Amount Repayable: £
Total Monthly Payment: £
©2026 The Guild of Property Professionals. All rights reserved. Terms and Conditions | Privacy Policy | Cookie Policy | Complaints Policy | Members Login
The Guild of Property Professionals Trading Address: 121 Park Lane, London W1K 7AG. GPEA Limited. Registered in England & Wales.  Company No: 02819824.  Registered Office Address: 2 St. Stephen's Court, St. Stephen's Road, Bournemouth, Dorset, England, BH2 6LA.  VAT Registration No: 576 8795 61
Book a Property Valuation Update Cookies Preferences