Guildford, Surrey, GU1

Guide Price
£1,250,000

5 Bedroom Detached House for sale in Surrey

3 5 3
  • Detached house
  • Five bedrooms
  • Generous garden
  • Driveway parking and garage
  • Beautifully-presented
  • Desirable location
  • Recently refurbished and extended
  • Ultrafast broadband available

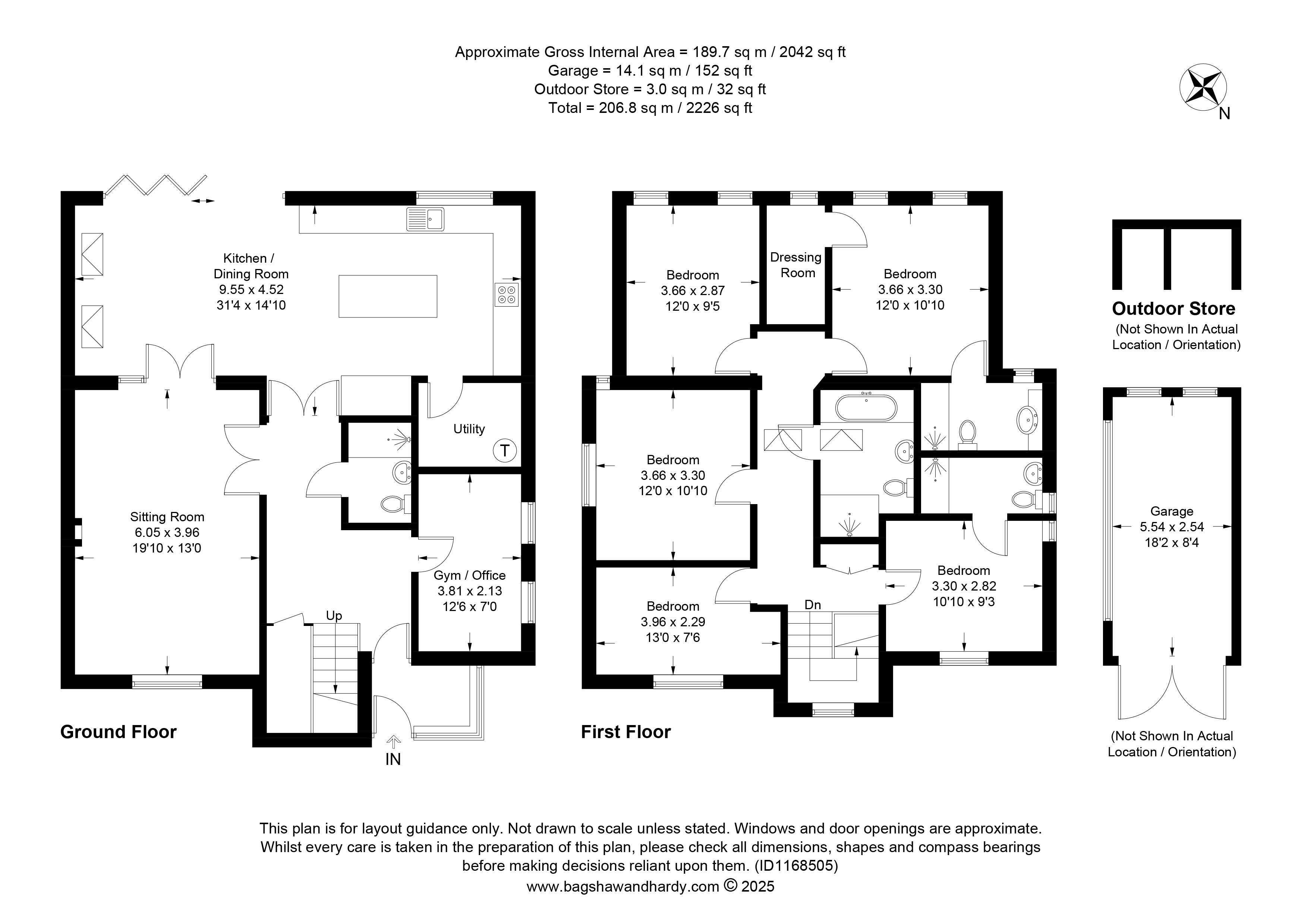
Nestled in a highly sought-after and convenient location, this newly refurbished and extended detached family home combines modern living with traditional elegance. Just a short walk from popular schools and local shops, it is ideally positioned for those who appreciate both convenience and tranquility. Set on a generously sized plot, the property benefits from beautifully appointed, contemporary living spaces that flow effortlessly from room to room.Upon entering, you are greeted by a stylish porch leading into the central hall, a welcoming space that immediately sets the tone for the rest of the home. The spacious lounge, with its warm solid fuel fire, offers a cozy yet sophisticated atmosphere. Double doors open from the lounge into the dining area, creating an open, airy space perfect for entertaining. This area flows into the heart of the home—the magnificent open-plan kitchen. Fitted with sleek white cabinetry, expansive pan drawers, and luxurious quartz work surfaces, the kitchen exudes a sense of style and functionality. A standout feature is the bi-fold doors that open directly onto the newly fitted composite decking. This seamless transition between indoors and outdoors provides the perfect setting for alfresco dining, family gatherings, and enjoying the sunny days.The ground floor further offers practical spaces that are both functional and stylish, including a utility room with ample storage, housing the large Megaflow water tank, a convenient shower room, and an additional reception room that could easily serve as a study or family room. The versatility of these spaces allows for the home to be tailored to suit a variety of needs.Upstairs, the accommodation continues to impress with five well-proportioned bedrooms, each offering ample space and natural light. The master bedroom is a true sanctuary, complete with a luxurious en-suite shower room and a separate dressing room, offering an enviable amount of storage space and a calm retreat from the demands of family life. The guest bedroom also benefits from its own en-suite shower room, providing the perfect guest quarters. All of the bathrooms have been thoughtfully designed with white suites and fully tiled surfaces, offering both elegance and practicality.Outside, the property enjoys a generous south-west-facing garden that captures the best of the sun throughout the day. The level lawn is complemented by a variety of mature trees and shrubs, creating a peaceful and private outdoor haven for both play and relaxation. The expansive driveway provides ample parking for several vehicles, and the detached garage offers additional storage or parking space, ensuring that all your practical needs are met.Burpham is a charming residential area, prized for its convenience and excellent local amenities. A delightful parade of shops, including a large Sainsbury's supermarket, a doctor's surgery, and a welcoming pub, is just moments away. For more extensive shopping and leisure options, Guildford High Street is just over 1.5 miles away, offering a wide range of boutiques, cafes, and cultural attractions. The area is also well-served by outdoor spaces, with Stoke Park and the Spectrum Leisure Centre within walking distance, providing opportunities for sports, recreation, and relaxation.Families will appreciate the proximity to an excellent selection of schools, including Burpham Primary, Boxgrove School, and George Abbot Comprehensive, as well as a range of prestigious private schools within Guildford. For commuters, Guildford's mainline station is just 1.75 miles away, with a direct train service to London Waterloo in approximately 38 minutes. Additionally, easy access to the A3 makes it an ideal base for those who need to travel further afield.This stunning family home offers a rare combination of space, style, and practicality, making it the perfect choice for those looking for a contemporary family residence in a highly desirable location.

Important Information

  • This is a Freehold property.

Property Ref: BUR250043

Share:

Similar Properties

Jacob's Well, Guildford, Surrey, GU4

4 Bedroom Semi-Detached House | Guide Price £1,250,000

Newly constructed by local housebuilder, Gable Homes, and set within delightful, private gated grounds, this four-bedroo...

Clay Lane, Guildford, Surrey, GU4

4 Bedroom Semi-Detached House | Offers Over £1,250,000

A fully-refurbished and restored four-bedroom Victorian farmhouse set within an idyllic position surrounded by countrysi...

Guildford, Surrey, GU1

4 Bedroom House | Guide Price £1,300,000

This is a beautifully positioned detached family home offering generous living space of approximately 1,879 sq ft, thoug...

Guildford, Surrey, GU1

4 Bedroom Detached House | Guide Price £1,350,000

Tucked away on the peaceful and leafy Grove Road, this beautifully presented detached residence offers the perfect blend...

Sutton Green, Guildford, Surrey, GU4

4 Bedroom Detached House | Guide Price £1,350,000

This charming home offers a highly adaptable layout arranged across two floors, perfectly suited to modern family living...

Seymours Prestige Homes (Burpham)

Guildford, Burpham, Surrey, GU1 1YP

01483 300 667

How much is your home worth?

Use our short form to request a valuation of your property.

Request a Valuation

Mortgage Calculator

Amount Borrowed: £
Total Amount Repayable: £
Total Monthly Payment: £
©2026 The Guild of Property Professionals. All rights reserved. Terms and Conditions | Privacy Policy | Cookie Policy | Complaints Policy | Members Login
The Guild of Property Professionals Trading Address: 121 Park Lane, London W1K 7AG. GPEA Limited. Registered in England & Wales.  Company No: 02819824.  Registered Office Address: 2 St. Stephen's Court, St. Stephen's Road, Bournemouth, Dorset, England, BH2 6LA.  VAT Registration No: 576 8795 61
Book a Property Valuation Update Cookies Preferences