Guildford, Surrey, GU1

Guide Price
£900,000
SSTC
This property listing is now SSTC

3 Bedroom Detached House for sale in Surrey

2 3 1
  • Freehold
  • Detached
  • Spacious layout
  • Downstairs cloakroom
  • Utility room
  • Impressive rear garden
  • Garage
  • Driveway parking and car port
  • Ultrafast broadband available
  • Potential to extend STPP

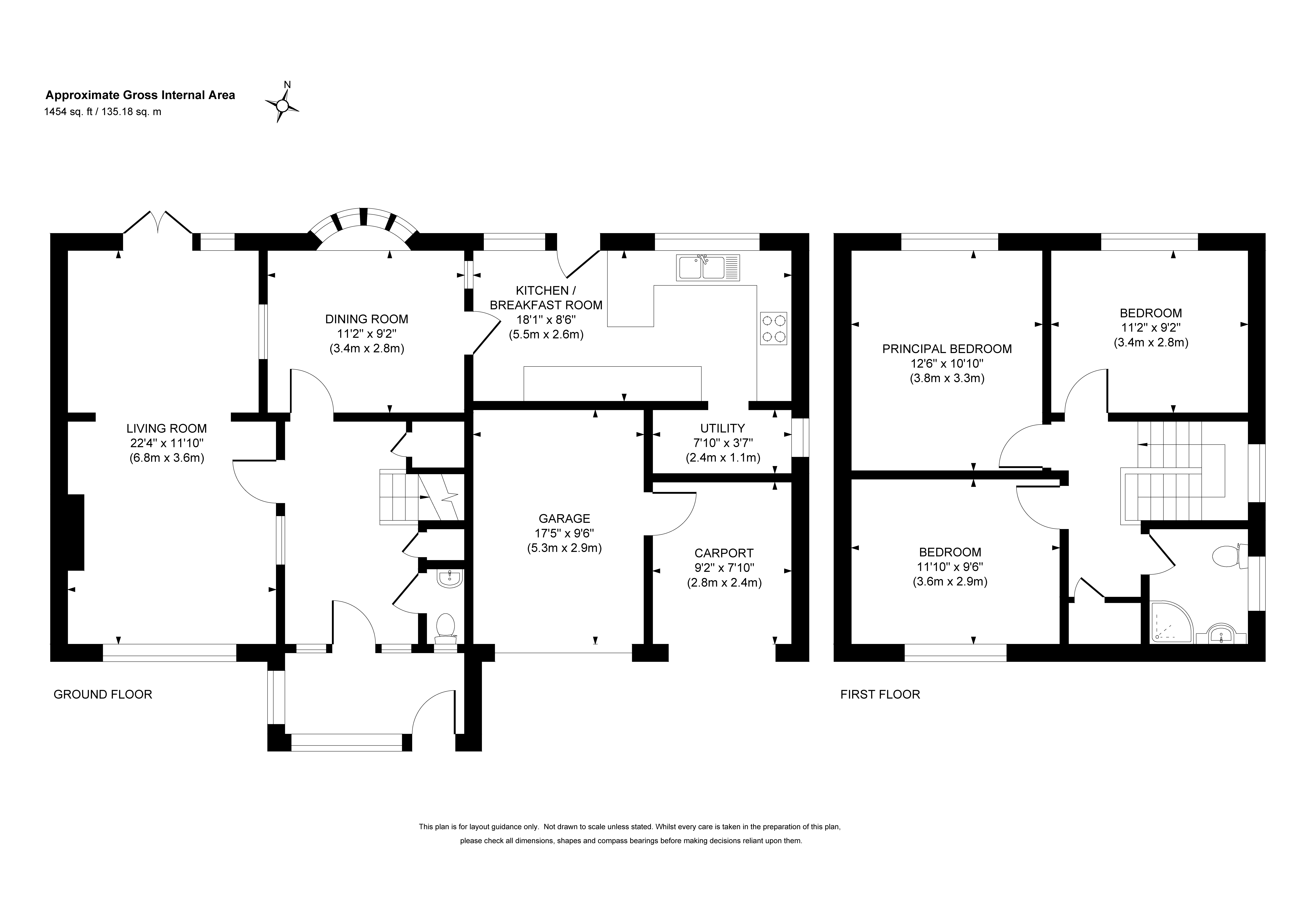
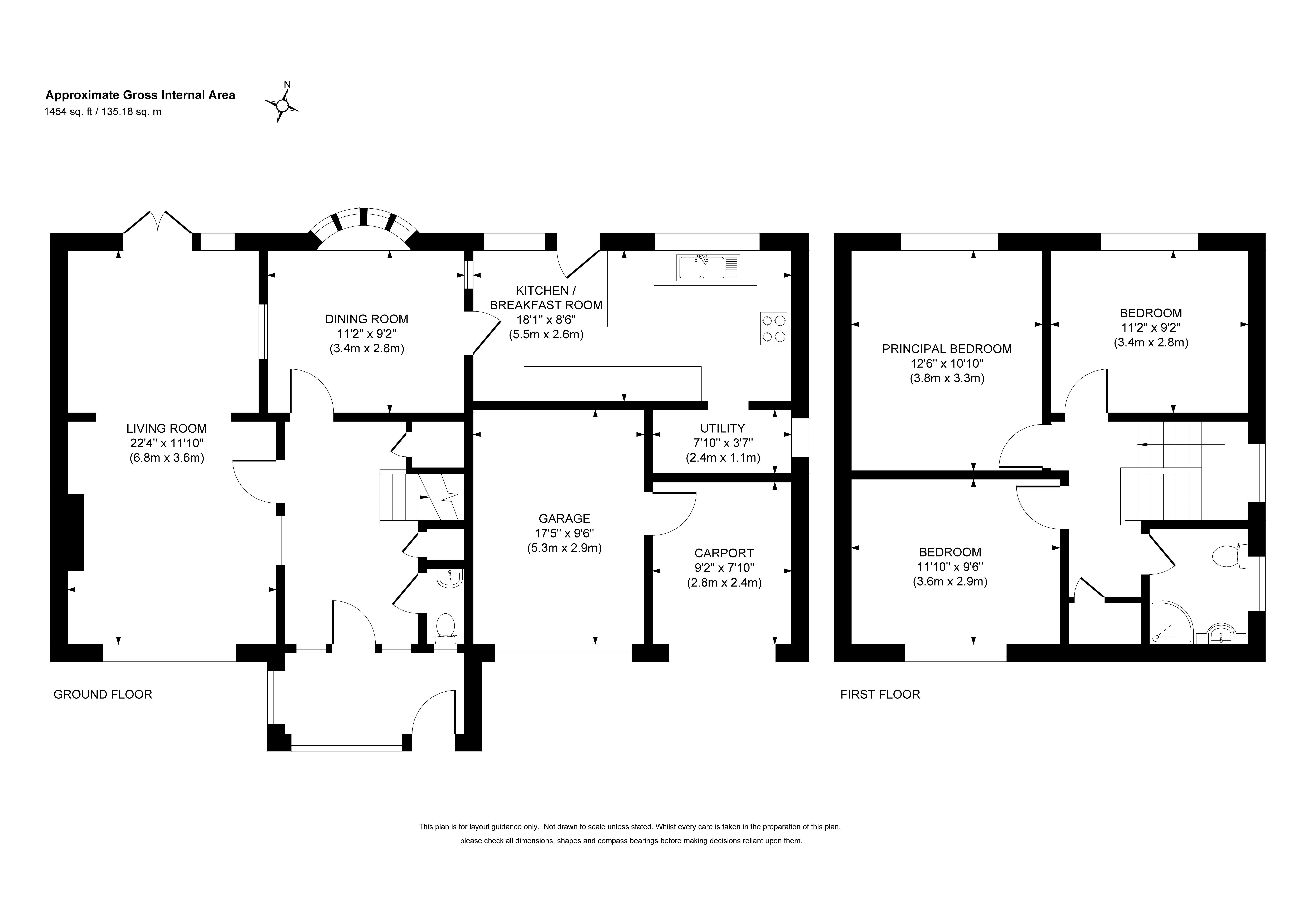
This impressive detached house in Merrow offers generous proportions throughout and provides excellent scope for improvements, making it an exciting opportunity for anyone looking to create a long-term home. With a spacious interior, neatly landscaped garden, garage, and driveway parking for multiple cars, it combines practicality with charm.On entering the property, you are welcomed into a wide hallway, with a convenient cloakroom to the side. The living room stretches the full length of the house, finished in neutral tones, and features a striking fireplace with a stone surround at one end and double glass doors opening onto the garden at the other. The adjoining dining room benefits from an attractive bay window overlooking the garden, enhanced by tasteful light green décor that creates a fresh and inviting feel. The kitchen is well laid out with grey shaker-style cabinets, white countertops, and a tiled floor, and also provides direct access to the garden. A utility room sits just off the kitchen, offering a practical space for additional appliances.Upstairs, the principal bedroom is a standout feature, with fitted wardrobes and soft beige walls that make for a calm retreat. Two further bedrooms, both generously sized, are individually decorated, one with a combination of grey and green tones, the other in neutral beige. The family bathroom is smartly finished with tiled walls, wood flooring, and a shower unit.The rear garden is a particular highlight, being expansive and thoughtfully landscaped. A paved patio provides the perfect spot for outdoor dining, while mature trees, fencing, and hedges give a sense of privacy and seclusion. Altogether, this home offers both space and character, with plenty of potential to update and personalize to taste.

Merrow Woods is located approximately 1.5 miles from Guildford Town Centre and between the villages of Merrow and Burpham. Local shops catering for daily needs can be found within easy walking distance, together with regular bus services to and from Guildford. The property is particularly well placed for excellent local schools including St Thomas's Primary, Boxgrove Junior School and St Peter's Roman Catholic Secondary schools, as well as George Abbot Secondary school. The Spectrum Leisure Complex is approximately ¾ mile and London Road Station is within 1.5 miles.

Important Information

  • This is a Freehold property.

Property Ref: BUR250314

Share:

Similar Properties

Burpham, Guildford, Surrey, GU4

5 Bedroom House | Guide Price £900,000

Nestled in the sought-after Burpham area of Guildford, this impressive five-bedroom detached house offers an abundance o...

Guildford, Surrey, GU4

4 Bedroom Detached House | Guide Price £900,000

*EARLY ACCESS AVAILABLE - BY APPOINTMENT ONLY* Coming Soon -This 5-bed detached family home in Burpham features a privat...

Burpham, Guildford, Surrey, GU4

4 Bedroom Detached House | Guide Price £875,000

Situated on a good-sized corner plot, this four-bedroom detached family home offers three reception rooms, a master bedr...

Guildford, Surrey, GU4

4 Bedroom Semi-Detached House | Guide Price £925,000

This attractive semi-detached home in Burpham is beautifully presented throughout and offers spacious, versatile accommo...

Burpham, Guildford, Surrey, GU4

4 Bedroom Detached House | Guide Price £950,000

Tucked away in the charming village of Burpham, this detached character cottage offers a delightful blend of traditional...

Burpham, Guildford, Surrey, GU4

3 Bedroom Detached House | Guide Price £950,000

Set in one of Burpham's most sought after roads, this attractive detached family home offers generous and versatile acco...

Seymours (Burpham)

Burpham, Surrey, GU1 1YP

01483 300667

How much is your home worth?

Use our short form to request a valuation of your property.

Request a Valuation

Mortgage Calculator

Amount Borrowed: £
Total Amount Repayable: £
Total Monthly Payment: £
©2026 The Guild of Property Professionals. All rights reserved. Terms and Conditions | Privacy Policy | Cookie Policy | Complaints Policy | Members Login
The Guild of Property Professionals Trading Address: 121 Park Lane, London W1K 7AG. GPEA Limited. Registered in England & Wales.  Company No: 02819824.  Registered Office Address: 2 St. Stephen's Court, St. Stephen's Road, Bournemouth, Dorset, England, BH2 6LA.  VAT Registration No: 576 8795 61
Book a Property Valuation Update Cookies Preferences