Guildford, Surrey, GU1

Guide Price
£950,000

4 Bedroom Semi-Detached House for sale in Surrey

4 2
  • Freehold
  • Semi-detached
  • Well Decorated Throughout
  • 2 Allocated Parking Spaces
  • Balcony
  • Garage
  • Modern Development
  • Ultrafast Broadband Available

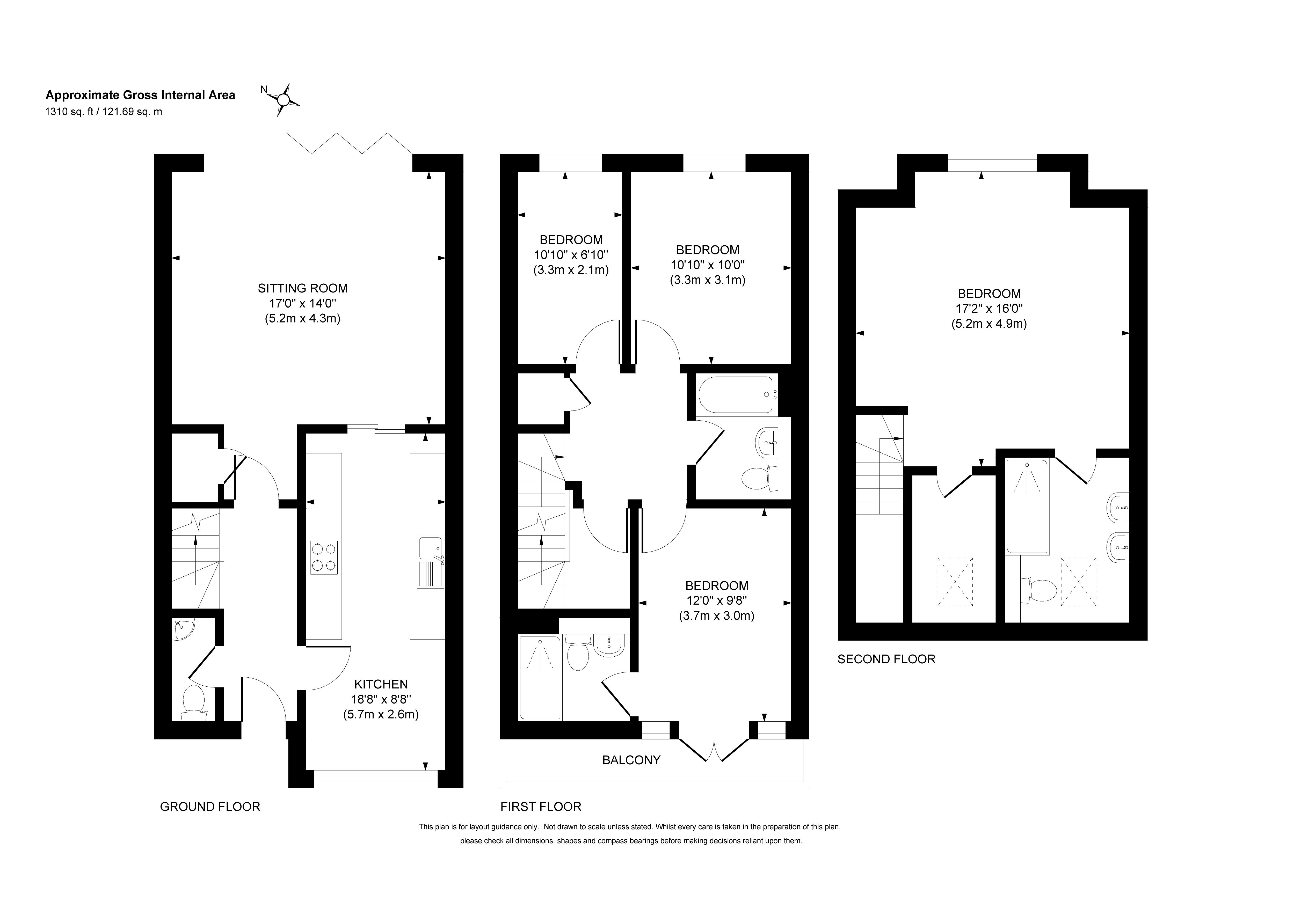
This semi-detached home is arranged over three levels and offers well-planned, modern living space throughout. The property benefits from two allocated parking spaces and a garage, making it both practical and convenient for everyday living.On the ground floor, the kitchen is fitted with sleek cream cabinetry complemented by black granite worktops and cream tiled flooring, creating a clean and contemporary feel. Integrated appliances maintain the streamlined design, while the rear of the kitchen provides space for a dining table, ideal for family meals or entertaining. Glass doors connect this space to the living room, where bifold doors allow natural light to pour in and provide attractive views of the garden. A convenient WC completes the ground floor accommodation.The first floor offers two well-proportioned bedrooms along with a third room that would work perfectly as a nursery, study, or home office. One of the bedrooms on this level enjoys access to a private balcony through glass doors and also benefits from its own en-suite shower room.Occupying the top floor, the master bedroom is a spacious and characterful retreat featuring slanted ceilings that add charm and architectural interest. The en-suite bathroom includes dual sinks, providing both comfort and practicality.Outside, the garden has been thoughtfully landscaped to create an inviting outdoor space. A pathway runs along the right-hand side, leading past a lawn bordered by planted areas. A tree stands at the centre of the lawn, and a shed is positioned at the rear, offering useful storage.

Located to the east of Guildford, less than a mile from the upper High Street, Boxgrove Gardens is a charming modern development of mews houses and apartments set alongside the open landscape of Merrow Downs. The centre of the development features an attractive communal green, reminiscent of a traditional London square, complete with mature trees and a children's play area. A small parade of local shops can be found nearby at Boxgrove Park, and there is a good selection of both state and independent schools within easy walking distance. A gate on the southern edge of the development opens directly onto the Downs, offering access to scenic walks and open countryside.

Important Information

  • This is a Freehold property.

Property Ref: BUR260043

Share:

Similar Properties

Burpham, Guildford, Surrey, GU4

4 Bedroom Detached House | Guide Price £950,000

Tucked away in the charming village of Burpham, this detached character cottage offers a delightful blend of traditional...

Burpham, Guildford, Surrey, GU4

3 Bedroom Detached House | Guide Price £950,000

Set in one of Burpham's most sought after roads, this attractive detached family home offers generous and versatile acco...

Burpham, Guildford, Surrey, GU4

4 Bedroom Detached House | Guide Price £950,000

This attractive detached four bedroom home is situated in the popular area of Burpham and offers well-balanced accommoda...

Guildford, Surrey, GU4

4 Bedroom Detached House | Guide Price £975,000

This impressive family home in Merrow is the ideal choice for those seeking a move-in ready property with style, space a...

Burpham, Guildford, Surrey, GU1

5 Bedroom Detached House | £999,950

A tastefully-presented and superbly-extended five-bedroom detached family home, ideally located within easy reach of sou...

Guildford, Surrey, GU4

4 Bedroom Detached House | Guide Price £1,050,000

Nestled in the sought-after area of Merrow, this impressive four-bedroom home offers a rare combination of generous livi...

Seymours (Burpham)

Burpham, Surrey, GU1 1YP

01483 300667

How much is your home worth?

Use our short form to request a valuation of your property.

Request a Valuation

Mortgage Calculator

Amount Borrowed: £
Total Amount Repayable: £
Total Monthly Payment: £
©2026 The Guild of Property Professionals. All rights reserved. Terms and Conditions | Privacy Policy | Cookie Policy | Complaints Policy | Members Login
The Guild of Property Professionals Trading Address: 121 Park Lane, London W1K 7AG. GPEA Limited. Registered in England & Wales.  Company No: 02819824.  Registered Office Address: 2 St. Stephen's Court, St. Stephen's Road, Bournemouth, Dorset, England, BH2 6LA.  VAT Registration No: 576 8795 61
Book a Property Valuation Update Cookies Preferences