Camberley, Surrey, GU15

Guide Price
£550,000

3 Bedroom Semi-Detached House for sale in Surrey

2 3 1

A charming and beautifully presented three-bedroom period home, enviably positioned in the heart of Camberley town centre on the ever-popular Gordon Avenue and offered to the market with no onward chain.

This attractive red-brick property effortlessly blends character features with modern convenience, creating a superb family home within walking distance of Camberley's excellent amenities, highly regarded schools and convenient transport links.

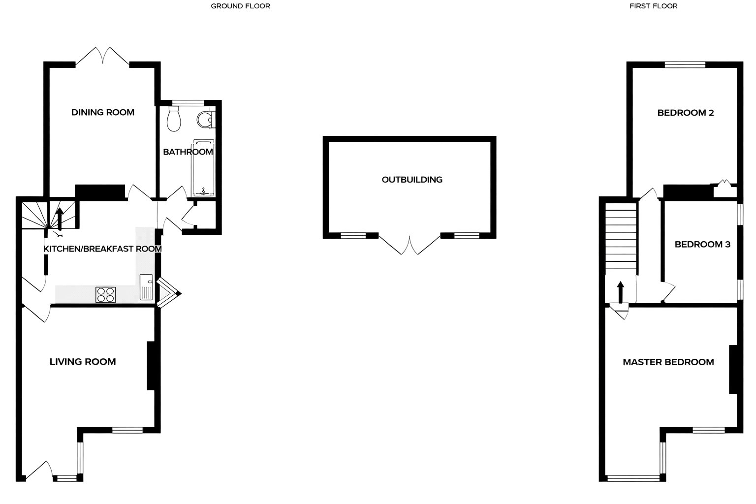
Upon entering, you are welcomed into a bright and spacious living room, where a feature open fireplace provides a warm and inviting focal point. Large windows allow natural light to flood the room, enhancing the sense of space and comfort.

To the rear of the property, the kitchen/breakfast room offers a practical yet sociable setting, complete with ample worktop space and storage. The layout flows seamlessly through to the garden, making it ideal for both everyday family living and entertaining.

A separate dining room provides an elegant space for formal meals and gatherings, with double doors opening directly onto the rear garden, perfectly blending indoor and outdoor living during the warmer months. The ground floor accommodation is further complemented by a well-appointed family bathroom.

Upstairs, the first floor comprises three well-proportioned bedrooms, including a generous principal bedroom enjoying views over the rear garden.

Externally, the property benefits from a gravel driveway to the front, providing ample off-street parking. The rear garden is a particular highlight – a generous, mature plot predominantly laid to lawn and bordered by established shrubs and trees, offering a high degree of privacy. A detached outbuilding sits at the rear of the garden, presenting excellent versatility as a home office, studio, gym or additional storage space.

Situated on a sought-after residential road, this delightful home enjoys a prime location close to Camberley town centre, which offers a wide range of shops, restaurants and leisure facilities. Camberley railway station and the M3 motorway are easily accessible, making this an ideal choice for commuters and families alike.

Property Ref: CAM230149

Share:

Similar Properties

Mytchett, Camberley, Surrey, GU16

5 Bedroom End of Terrace House | Guide Price £550,000

Situated in a quiet cul-de-sac setting, within a popular residential area, this extended five-bedroom residence is well...

Mytchett, Camberley, Surrey, GU16

5 Bedroom Semi-Detached House | Guide Price £550,000

Set within a desirable residential road, this versatile five/six-bedroom family home, arranged over three floors is offe...

Camberley, Surrey, GU15

4 Bedroom Semi-Detached House | Offers in excess of £525,000

Positioned in a quiet cul-de-sac close to the picturesque Watchetts Lake, this four-bedroom semi-detached home offers an...

Bagshot, Surrey, GU19

3 Bedroom Detached House | Guide Price £575,000

Occupying a generous corner plot, this well-presented three bedroom detached home, which benefits from approved planning...

Camberley, Surrey, GU15

4 Bedroom Link Detached House | Guide Price £600,000

Centrally located for Camberley town centre and the local amenities, this four bedroom detached family home is presented...

Frimley, Surrey, GU16

4 Bedroom Detached House | £600,000

Situated in a peaceful cul-de-sac in the highly sought-after area of Frimley, this beautifully presented four-bedroom de...

Seymours (Camberley)

Camberley, Surrey, Camberley, ., GU15 3PT

01276 581 850

How much is your home worth?

Use our short form to request a valuation of your property.

Request a Valuation

Mortgage Calculator

Amount Borrowed: £
Total Amount Repayable: £
Total Monthly Payment: £
©2026 The Guild of Property Professionals. All rights reserved. Terms and Conditions | Privacy Policy | Cookie Policy | Complaints Policy | Members Login
The Guild of Property Professionals Trading Address: 121 Park Lane, London W1K 7AG. GPEA Limited. Registered in England & Wales.  Company No: 02819824.  Registered Office Address: 2 St. Stephen's Court, St. Stephen's Road, Bournemouth, Dorset, England, BH2 6LA.  VAT Registration No: 576 8795 61
Book a Property Valuation Update Cookies Preferences