Guildford, Surrey, GU2

Guide Price
£1,300,000
SSTC
This property listing is now SSTC

4 Bedroom Detached House for sale in Surrey

2 4 2

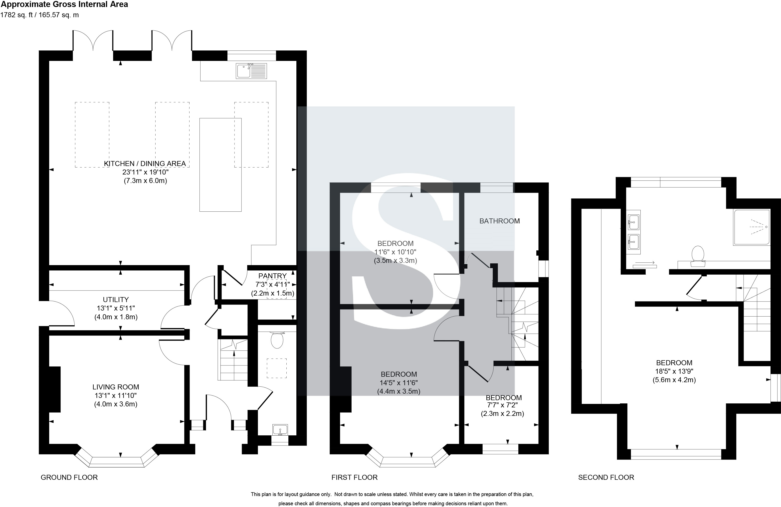
Tucked away at the very end of a peaceful no-through road, 26 Dunsdon Avenue is a superbly finished family home that has been completely renovated and refurbished throughout. The result is a property that blends character and charm with a fresh, classically contemporary interior and a layout designed perfectly for modern living.The approach sets the scene, with a handsome façade, driveway parking, and a distinctive stained-glass front door hinting at the quality within. Stepping inside, the ground floor is centred around a striking open-plan kitchen and dining room. Here, bespoke cabinetry in a rich deep green is complemented by a generous island and a range cooker set into a feature alcove. The space is wonderfully bright, with full-width glazing at the rear flooding the room with natural light and opening directly onto the garden, making it an ideal setting for both family life and entertaining. Just off the hallway, the separate living room offers a cosy retreat, with a bay window, a log burner, and parquet flooring creating a warm and inviting atmosphere. The ground floor is completed by a large utility room with side access, a walk-in pantry, and a separate cloakroom, all finished with the same attention to detail.Upstairs, the first floor has been designed with family life in mind. Two generous double bedrooms provide excellent proportions and fitted storage, while a smaller single bedroom makes an ideal nursery, child's room, or study. The stylish family bathroom is fitted with both a separate bath and walk-in shower finished with bespoke detailing and a sense of understated luxury.Rising to the top of the house, the master suite is a showpiece in itself. With a vaulted ceiling, feature windows dressed with plantation shutters, and fitted storage, it creates a dramatic yet restful environment. The adjoining en suite bathroom is beautifully appointed with twin basins and a walk-in shower, offering a private sanctuary at the very top of the home.Outside, the garden has been professionally landscaped to provide a calm and attractive backdrop. A neat lawn and structured planting frame a sun terrace that is perfect for summer dining or relaxed weekends at home. At the far end of the garden sits a contemporary garden building, currently fitted as a gym. With bi-folding doors, exposed brickwork, and a versatile layout, it is equally well suited for fitness, home working, or leisure.Dunsdon Avenue is one of Guildford's most sought-after addresses, offering a rare sense of peace and seclusion while remaining within easy reach of everything the town has to offer. The bustling centre and mainline station are close by, providing excellent connections, and the property sits within catchment for the outstanding County School, making it an ideal choice for families.This is a home that perfectly balances character with convenience, offering turnkey living in an exceptional Guildford setting.

Property Ref: 549888_GFD240405

Share:

Similar Properties

Guildford, Surrey, GU2

4 Bedroom Detached House | Guide Price £1,300,000

34 Wodeland Avenue is a charming Edwardian residence that seamlessly blends period elegance with modern sophistication....

Shalford, Guildford, Surrey, GU4

5 Bedroom Detached House | Guide Price £1,295,000

Offered to the market with no onward chain: This outstanding five bedroom detached residence, nestled in the highly soug...

Guildford, Surrey, GU4

4 Bedroom House | Guide Price £1,250,000

Clandon Cottage is a stunning family home, beautifully characterized by its half-tile hung exterior and nestled in the h...

Guildford, Surrey, GU1

4 Bedroom Detached House | Guide Price £1,350,000

Set back from the road at the end of a private driveway is this detached period property which has been lovingly renovat...

Guildford, Surrey, GU4

4 Bedroom Detached House | Guide Price £1,350,000

Coming to the market for the very first time in over forty years, this much-loved detached home occupies what is undoubt...

Cranleigh, Surrey, GU6

4 Bedroom Semi-Detached House | Guide Price £1,350,000

The Old Farmhouse is a beautifully restored wing of a Victorian country house, discreetly tucked away behind secure gate...

Seymours Prestige Homes (Guildford)

Guildford, Guildford, Surrey, GU1 3BJ

01483 576833

How much is your home worth?

Use our short form to request a valuation of your property.

Request a Valuation

Mortgage Calculator

Amount Borrowed: £
Total Amount Repayable: £
Total Monthly Payment: £
©2025 The Guild of Property Professionals. All rights reserved. Terms and Conditions | Privacy Policy | Cookie Policy | Complaints Policy | Members Login
The Guild of Property Professionals Trading Address: 121 Park Lane, London W1K 7AG. GPEA Limited. Registered in England & Wales.  Company No: 02819824.  Registered Office Address: 2 St. Stephen's Court, St. Stephen's Road, Bournemouth, Dorset, England, BH2 6LA.  VAT Registration No: 576 8795 61
Book a Property Valuation Update Cookies Preferences