Woking, Surrey, GU21

Offers in excess of
£285,000

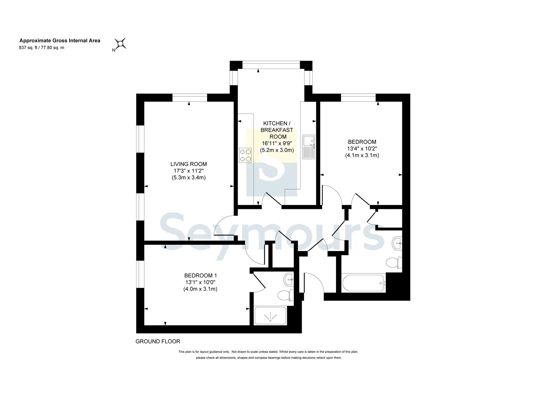
2 Bedroom Apartment for sale in Surrey

1 2 2
  • NO ONWARD CHAIN
  • Two Double Bedrooms
  • Two Bath/Shower Rooms
  • Double Aspect Living Room
  • Seperate Spacious Kitchen
  • Only Just Redecorated!
  • Undercover Parking Bay
  • SHORT WALK TO WOKING TRAIN STATION AND CENTRE

*NO ONWARD CHAIN* An executive two bedroom, two bathroom top floor apartment offering peace, tranquillity and chimney pot views just a short walk of Woking’s mainline station with its excellent fast train connection into central London.

The accommodation comprises two double bedrooms, en-suite shower and WC to the master, family bathroom, lounge/diner and fitted kitchen.
Smartly presented throughout, boasting light and airy living accommodation with the added bonus of an undercover allocated parking bay within the gated courtyard setting.

Shoppers should head for the town centre where a variety of retail choice can be perused including many high street names with delicious al fresco dining to be enjoyed at Carluccio's and Tante Marie. The many other coffee shops, café’s, and restaurants including Nando's, Pizza Express and Costa Coffee are on hand for the shopper in need of refreshment.

The entertainment enthusiast will appreciate the New Victoria Theatre where many London and international shows can be viewed, the Ambassadors cinema complex screening the latest film releases and The Lightbox with a canal side setting for an injection of artistic culture. Sports activities and clubs are well presented in the area with a range of gyms on offer including the recently upgraded sports centre and swimming pool, Hook Heath lawn tennis club, David Lloyds health and racquets club and Pure Gym. Cyclists and walkers can step out to rural countryside on Guildford downs and nearby Surrey Hills is recognized as an area of outstanding natural beauty.

Woking is not only a great place to live, it also boasts excellent access to London for commuting, shopping and leisure. Whether you require the daily commute or want to catch a West End show, hit the stores on Oxford Street or explore the historical and cultural attractions, Woking Mainline Station boasts one of the most regular direct services into central London.   You can reach the capital in around 54 minutes via the A3, while London Waterloo is just 25 minutes away by train. If you are heading further afield for business or pleasure, there’s also easy access to the M25, M3, and M4, plus Heathrow and Gatwick airports.



Important Information

  • This is a Leasehold property.

Property Ref: 57181_WOK260148

Share:

Similar Properties

Woking, GU21

1 Bedroom Apartment | £285,000

Buy with just a 5% deposit using Help to Buy!Wells Court comprises 94 studio, 1 and 2 bedroom apartments, set over three...

Woking, GU21

2 Bedroom Apartment | Offers Over £285,000

Situated in a small, quiet development in the heart of Woking, this modern first-floor apartment enjoys a picturesque se...

Woking, Surrey, GU22

2 Bedroom Apartment | Guide Price £285,000

Located on the first floor of this highly sought-after town centre development, this well-presented two-bedroom, two-bat...

Woking, GU21

1 Bedroom Apartment | £289,000

** Phase 2 – Launching Early 2021… Register your interest now ** Britannia Wharf, Woking, offers you a unique...

Woking, Surrey, GU21

1 Bedroom Apartment | £290,000

This 1-bedroom, 1-bathroom apartment is finished to an impeccable standard, featuring premium flooring, high-spec applia...

Woking, GU22

2 Bedroom Apartment | Guide Price £290,000

A spacious, available, two-bedroom first floor apartment set on the leafy fringes of Woking Town Centre. The local park,...

Seymours (Woking)

Woking, Surrey, GU21 6XR

01483 757700

How much is your home worth?

Use our short form to request a valuation of your property.

Request a Valuation

Mortgage Calculator

Amount Borrowed: £
Total Amount Repayable: £
Total Monthly Payment: £
©2026 The Guild of Property Professionals. All rights reserved. Terms and Conditions | Privacy Policy | Cookie Policy | Complaints Policy | Members Login
The Guild of Property Professionals Trading Address: 121 Park Lane, London W1K 7AG. GPEA Limited. Registered in England & Wales.  Company No: 02819824.  Registered Office Address: 2 St. Stephen's Court, St. Stephen's Road, Bournemouth, Dorset, England, BH2 6LA.  VAT Registration No: 576 8795 61
Book a Property Valuation Update Cookies Preferences