Woking, Surrey, GU22

Guide Price
£675,000
SSTC
This property listing is now SSTC

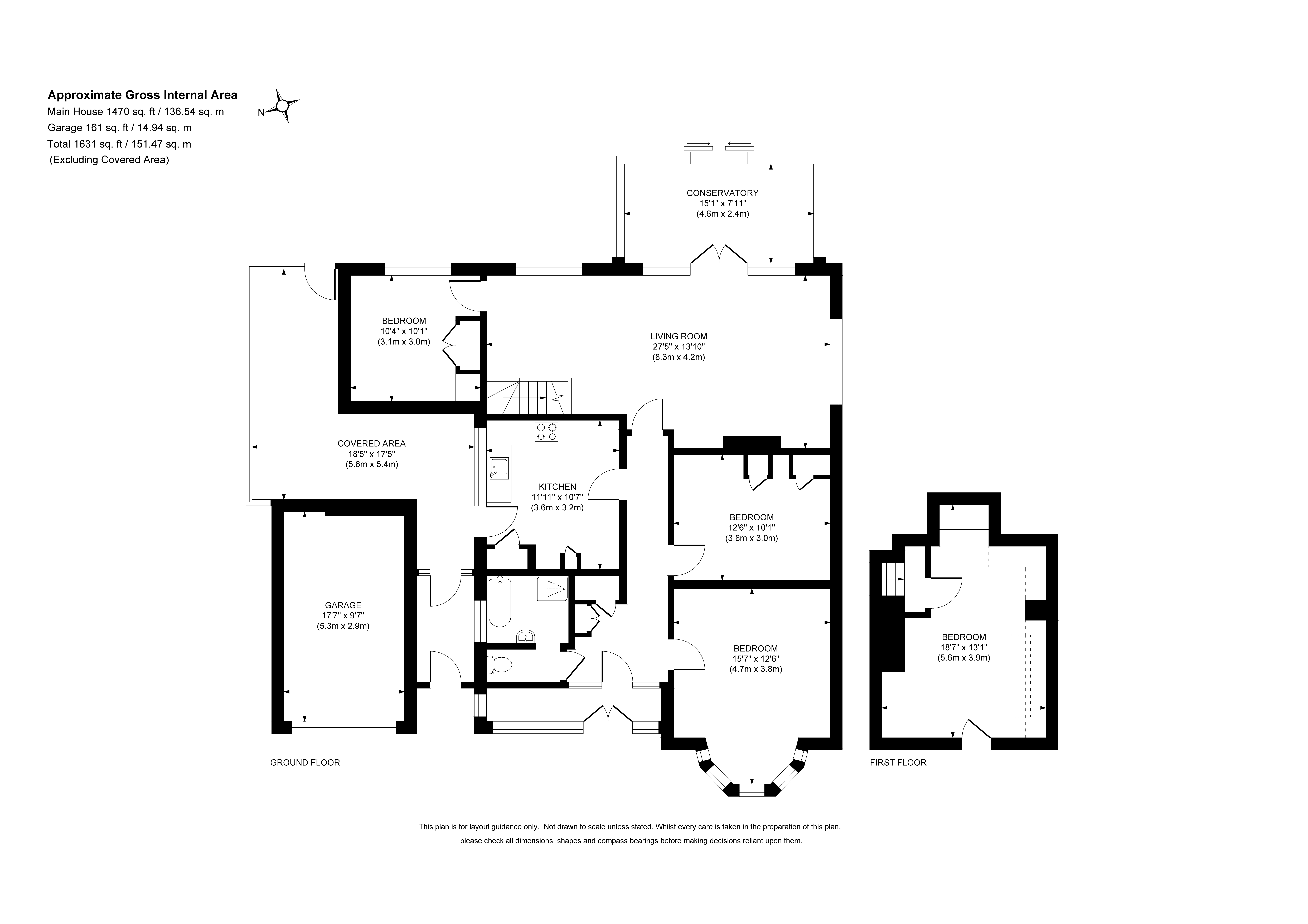
4 Bedroom Detached House for sale in Surrey

2 4 1
  • Chain Free
  • Popular Location
  • Large Garden
  • Needing Modernisation
  • Off Street Parking
  • Quiet Road

Tucked away in a peaceful rural setting, this charming detached chalet bungalow offers an ideal retreat from the hustle and bustle of everyday life.The property features four bedrooms, two reception rooms, and a modern bathroom, providing generous and versatile accommodation suitable for families or those seeking a quieter lifestyle. While the home is full of character and beautifully positioned, it would benefit from some modernisation offering an exciting opportunity for buyers to update and personalise the space to their own tastes.Set within its own private garden, the property enjoys a sense of seclusion, with a patio area perfect for outdoor dining or simply soaking up the tranquil surroundings. Additional benefits include off-street parking, a garage, and an outbuilding offering valuable storage or potential for further use.Combining countryside charm with convenient access to local amenities, this rarely available home represents a fantastic opportunity to create a bespoke rural haven in a picturesque location. Early viewing is highly recommended.

Important Information

  • This is a Freehold property.

Property Ref: WOK250538

Share:

Similar Properties

Woking, Surrey, GU22

3 Bedroom Semi-Detached House | Guide Price £675,000

An impressive semi-detached Victorian home, offering three bedrooms, two reception rooms plus an open-plan kitchen/break...

Woking, Surrey, GU22

5 Bedroom Semi-Detached House | Offers in excess of £675,000

Situated in a highly sought-after neighbourhood, this impressive five-bedroom semi-detached home offers generous living...

Brox Road, Ottershaw, KT16

3 Bedroom Detached House | £675,000

The ScottA spacious 3-bedroom detached house, boasting a welcoming double-fronted exterior.The ground floor offers a kit...

Woking, Surrey, GU22

3 Bedroom Semi-Detached House | Guide Price £685,000

An outstanding semi-detached extended & remodelled Victorian cottage, occupying a delightful semi-rural location with fi...

Woking, Surrey, GU21

4 Bedroom Detached House | Guide Price £685,000

A particularly attractive detached family home, offering four bedroom, two reception rooms, two bath/shower room accommo...

Woking, Surrey, GU22

2 Bedroom Apartment | £695,000

Nestled within the prestigious tree-lined surroundings of Holly Bank Road in the highly sought-after Hook Heath area, th...

Seymours (Woking)

Woking, Surrey, GU21 6XR

01483 757700

How much is your home worth?

Use our short form to request a valuation of your property.

Request a Valuation

Mortgage Calculator

Amount Borrowed: £
Total Amount Repayable: £
Total Monthly Payment: £
©2026 The Guild of Property Professionals. All rights reserved. Terms and Conditions | Privacy Policy | Cookie Policy | Complaints Policy | Members Login
The Guild of Property Professionals Trading Address: 121 Park Lane, London W1K 7AG. GPEA Limited. Registered in England & Wales.  Company No: 02819824.  Registered Office Address: 2 St. Stephen's Court, St. Stephen's Road, Bournemouth, Dorset, England, BH2 6LA.  VAT Registration No: 576 8795 61
Book a Property Valuation Update Cookies Preferences