Woking, Surrey, GU22

Guide Price
£2,500,000
SSTC
This property listing is now SSTC

5 Bedroom Detached House for sale in Surrey

5 5 4

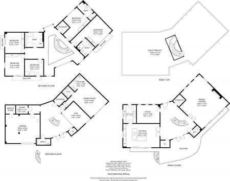
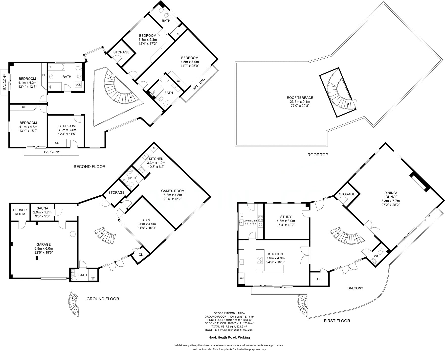
A magnificent homage to mid-century modern architecture amidst the tranquillity of wrap-around gated grounds. Defined by its swathes of glazing, clean lines and the exceptional design of a spacious central core punctuated by a series of sweeping glass framed staircases, this prestigious Surrey residence unfolds over 5617.6sq ft.

From the glazed vestibule of a stunning roof terrace to the games room, gym and sauna every aspect has been impeccably considered. Opening onto exemplary balconies, a prodigious 3 storey layout has been meticulously designed to proffer an outstanding lifestyle.

Discreetly set back from Hook Heath Road, richly toned solid oak electric gates sweep open to reveal the geometric precision of a prestigious home that pays laudable respect for mid-century modernist aesthetics. The sharp clean lines of its minimalist facade give a crisp white contrast to the greenery of predominantly south-facing gardens, while swathes of glazing allow natural light to cascade into three storeys unfolding over an enviable 5617.6sq ft.

Discerningly understated in its luxury yet subtly future proofed with smart app features controlling assets such as its music and irrigation systems, lateral living spaces stem from vast galleried landings united by the glass framed curves of individual staircases and a towering double height wall of glass. Generating a sense of calm and cohesion, a beautiful pared-back design scheme underlies each space while the abundance of glazing forges a constant connection with the colour and greenery outside.

Stretching out across the first floor the main living spaces open onto a prodigious south-balcony at every opportunity. To one side the warm smoky hues of a solid foot wood run underfoot in a spacious triple aspect lounge/dining room where a tremendous glass fronted fireplace is set sleekly within the chimney breast. An expanse of sliding glass doors allows the balcony to engender an easy flowing extension of the space and play an integral part of daily life.

Across the way a first class array of integrated Siemens appliances peppers the handless cabinetry and Quartz countertops of an intelligently curated kitchen. The attached dining table of a superb central island creates a notable place for both day to day meals or entertaining and further sliding doors make it easy to step out onto the balcony for an after dinner coffee or digestif. An adjoining large utility room is exceeding well appointed with the inclusion of a range cooker that adds plenty of convenience when hosting on a grand scale.

Set peacefully away from the main living areas, an excellent study is a haven when the need arises to work from home yet could also become a playroom or TV room if preferred.

The sense of light and space is echoed upstairs where a succession of five exemplary bedrooms generates all the flexibility a modern family household needs. Four of the five open onto a trio of balconies, including a beautiful principal bedroom with its own inset fireplace and a luxury en suite with a waterfall shower and bidet. All of these impeccable rooms have leafy vistas and tastefully chosen fitted storage, and whilst the second double bedroom has a matching en suite, together the others share a contemporary family bathroom that matches the elegant clean lines and luxury of the en suites.

Stretching out above you a capacious 77 x 29'8ft roof terrace provides an exceptional excuse to sit back and admire uninterrupted views reaching out across the statuesque trees of the gardens and onto to the greens and fairways of the golf club. The app controlled music system enables you to choose the ideal soundtrack to really appreciate the coveted degree of privacy and seclusion this Hook Heath Road residence has to offer.

However, when it comes to fun and fitness, the ground floor provides both in abundance. A gym is encased in glass, a games room has the added bonus of a stylish fitted kitchen area, and a sauna and two shower rooms are on hand for a post-workout detox. Accessed via the integral double garaging, a server room sits hidden securely from view.

Outside
Framed by a multitude of magnificently tall trees and conifers, the blissfully tranquil grounds of White Willows transport you from the hubbub of the outside world into your own personal haven. A secure gated granite brick driveway sweeps down to the crisp white concrete facade of the house where glazed double doors beneath the overhang of the main balcony instantly hint at the aesthetics within. Integral double garaging sits tucked away to the side while a curved wrought iron staircase gives guests a chance to join you directly on the immense south-facing balcony for al fresco evenings.

All around you established lawns have been fastidiously cared for and encourage you to take a stroll in the summer sun. Discover carved tree trunk benches perfectly placed for watching the flames of a barbeque fire pit, or choose to sit in the dappled shade of a majestically graceful weeping willow tree. A door to the rear of the house supplies handy direct access to the main living accommodation on the first floor and the blooms of mature hydrangeas around the significant remains of an old tree add a pop of colour.

Location
Woking Station (National Rail) is within easy reach offering a direct 26-minute service into London Waterloo, while local roads provide the motorist with access to the M25 and A3 for routes into London and to the south.

There is a good selection of both private and state schools in the area. For the sportsperson, there is golf at Woking, Worplesdon and West Hill Golf Clubs and tennis facilities at both Hook Heath Lawn Tennis Club and David Lloyd. Further afield but still inside of 30 mins there is racing at Sandown Park and Ascot, sailing at Ripley, shooting at Bisley, and flying at Fair Oaks.

Important Information

  • This is a Freehold property.

Property Ref: 547896_HOR240167

Share:

Similar Properties

Knaphill, Surrey, GU21

6 Bedroom Detached House | Offers Over £2,500,000

Exceptionally rare opportunity offering excellent value. Whitfield Court Estate proffers a beautifully renovated 16th ce...

Cowfold, Horsham, West Sussex, RH13

6 Bedroom Detached House | Guide Price £2,500,000

An enviable historic country residence ideal for those seeking a peaceful retreat, Kings has a heritage dating back to t...

St Johns, Surrey, GU21

5 Bedroom Detached House | Guide Price £2,500,000

Ensconced in enviably secluded and secure gated grounds of circa 0.5 acres, The Old Lodge sits in a private cul de sac l...

Worplesdon Hill, Surrey, GU22

4 Bedroom Detached House | Guide Price £2,750,000

Nestled within a gated and beautifully landscaped 1.28-acre plot, Bracken Lodge is a superb example of classic Arts and...

Hook Heath, Surrey, Surrey, GU22

8 Bedroom Detached House | Guide Price £2,750,000

This impressive family home was built 9 years ago by Andrew Adams Developments Ltd. As a highly regarded local developer...

Worplesdon Hill, Surrey, GU22

5 Bedroom Detached House | Guide Price £2,950,000

Simply sensational. Occupying a beautifully landscaped 2 acre secure gated setting, adjacent to the greens of Worplesdon...

Seymours Prestige Homes (Mayfair)

Mayfair, W1K 7AG

01483 228723

How much is your home worth?

Use our short form to request a valuation of your property.

Request a Valuation

Mortgage Calculator

Amount Borrowed: £
Total Amount Repayable: £
Total Monthly Payment: £
©2025 The Guild of Property Professionals. All rights reserved. Terms and Conditions | Privacy Policy | Cookie Policy | Complaints Policy | Members Login
The Guild of Property Professionals Trading Address: 121 Park Lane, London W1K 7AG. GPEA Limited. Registered in England & Wales.  Company No: 02819824.  Registered Office Address: 2 St. Stephen's Court, St. Stephen's Road, Bournemouth, Dorset, England, BH2 6LA.  VAT Registration No: 576 8795 61
Book a Property Valuation Update Cookies Preferences