Guildford, Surrey, GU4

Guide Price
£1,050,000

4 Bedroom Detached House for sale in Surrey

4 4 3
  • Freehold
  • Detached
  • Annexe
  • Spacious layout
  • Utility area
  • Study
  • Conservatory
  • Downstairs cloakroom
  • En-Suite
  • Beautiful garden

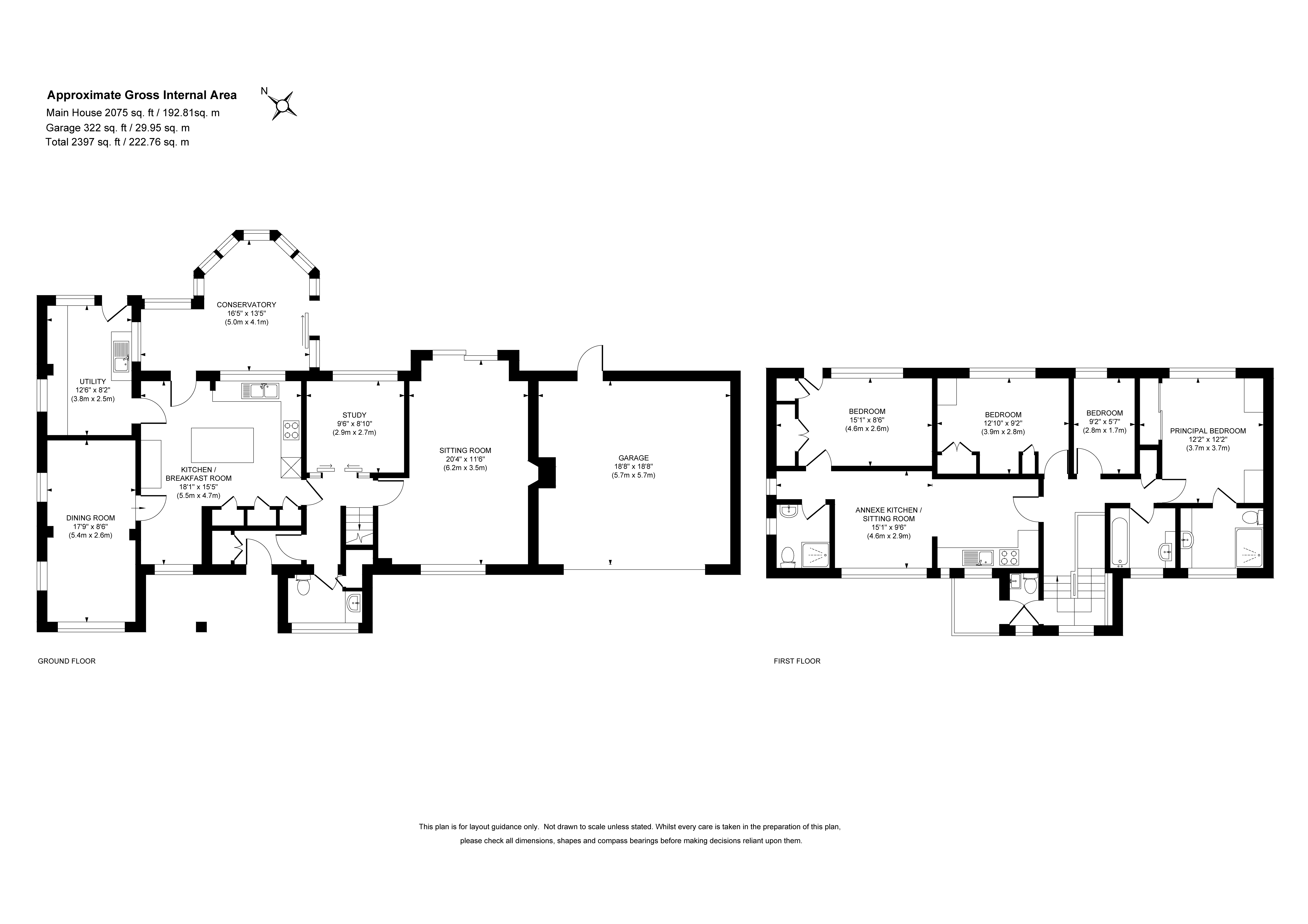
Nestled in the sought-after area of Merrow, this impressive four-bedroom home offers a rare combination of generous living space, thoughtful layout, and versatile accommodation. With driveway parking and a garage, it presents a welcoming façade and an abundance of room both inside and out, ideal for families or those seeking a home with flexibility and charm.The ground floor is beautifully arranged to maximise flow and functionality. The sitting room is a standout, featuring a characterful brick fireplace and sliding glass doors that open directly onto the garden, creating a seamless indoor-outdoor experience. The kitchen is both stylish and practical, with warm terracotta tiles, light wood shaker-style cabinetry, and crisp white countertops. A matching island anchors the space, which connects effortlessly to the conservatory and utility area. The conservatory itself is a sunlit retreat, perfect for morning coffee or evening relaxation, with direct access to the garden. Additional rooms on this level include a well-proportioned dining room and a separate study, offering ample space for entertaining, working from home, or unwinding in peace.Upstairs, the sense of space continues. All bedrooms are generously sized, with the principal bedroom enjoying the privacy of an en-suite shower room adorned with large tiled walls. The family bathroom is thoughtfully designed with a bathtub and overhead shower, complemented by a vanity unit and mirrored cupboards. A separate WC adjacent to the bathroom adds convenience and privacy for busy households.One of the most exceptional features of this property is the self-contained annexe on the first floor. Complete with its own kitchen, which mirrors the style and finish of the main kitchen, a cosy sitting room, and a bedroom with built-in storage, it offers a perfect solution for multi-generational living, or guest accommodation.Outside, the rear garden is a private haven. A spacious patio area to the left provides ample room for outdoor dining and entertaining, while the neat lawn is bordered by mature hedges and trees, ensuring privacy and a sense of tranquillity. A shed adds practical storage, rounding out the garden's appeal.

The property is set within a no-through residential road and just a short walk from Merrow Common, the Downs, the local shopping parade, pub and petrol station with an M&S food store. For outdoor pursuits, Merrow offers a golf course and delightful walks along the Downs. There is also a private gym, tennis and cricket club. Access onto the A3 northbound carriageway to London can be found from the outskirts of Burpham, and Guildford's historic Town Centre lies within two miles with its two train stations providing services to London Waterloo. Woking mainline station is approximately 8 miles away and offers a frequent service to London Waterloo in just over 20 minutes. There are a number of popular independent and state schools in the area including Merrow Infant School, Boxgrove Primary and George Abbot Secondary School.

Important Information

  • This is a Freehold property.

Property Ref: 417896_BUR230053

Share:

Similar Properties

Boxgrove, Guildford, Surrey, GU1

4 Bedroom Link Detached House | Offers in excess of £1,050,000

Presented to the market is this attractive link-detached home, in the Boxgrove area of Guildford. The home sits back beh...

Burpham, Guildford, Surrey, GU4

3 Bedroom Detached House | Guide Price £1,000,000

Situated in a sought-after location in Guildford, this charming property offers an ideal setting for family life. Its cl...

Guildford, Surrey, GU1

5 Bedroom Detached House | Guide Price £1,000,000

This beautifully presented detached family home in the sought-after area of Burpham offers spacious and stylish accommod...

Burpham, Guildford, Surrey, GU4

4 Bedroom Detached House | Guide Price £1,075,000

Tucked away in the charming village of Burpham, this detached character cottage offers a delightful blend of traditional...

Guildford, Surrey, GU1

4 Bedroom Detached House | Guide Price £1,100,000

This handsome and classically styled detached family home occupies a prime position on the ever-desirable Horseshoe Lane...

Burpham, Guildford, Surrey, GU4

4 Bedroom Detached House | Guide Price £1,100,000

This beautifully presented and very modern property in Great Oaks Park, Guildford, offers stylish and high-quality livin...

Seymours (Burpham)

Burpham, Surrey, GU1 1YP

01483 300667

How much is your home worth?

Use our short form to request a valuation of your property.

Request a Valuation

Mortgage Calculator

Amount Borrowed: £
Total Amount Repayable: £
Total Monthly Payment: £
©2025 The Guild of Property Professionals. All rights reserved. Terms and Conditions | Privacy Policy | Cookie Policy | Complaints Policy | Members Login
The Guild of Property Professionals Trading Address: 121 Park Lane, London W1K 7AG. GPEA Limited. Registered in England & Wales.  Company No: 02819824.  Registered Office Address: 2 St. Stephen's Court, St. Stephen's Road, Bournemouth, Dorset, England, BH2 6LA.  VAT Registration No: 576 8795 61
Book a Property Valuation Update Cookies Preferences