Guildford, Surrey, GU4

Offers in excess of
£425,000
SSTC
This property listing is now SSTC

2 Bedroom End of Terrace House for sale in Surrey

1 2 1
  • Freehold
  • End of terrace
  • Spacious layout
  • Beautiful rear garden
  • Easy access to local amenities
  • Garage in a nearby block with parking
  • Ultrafast broadband available

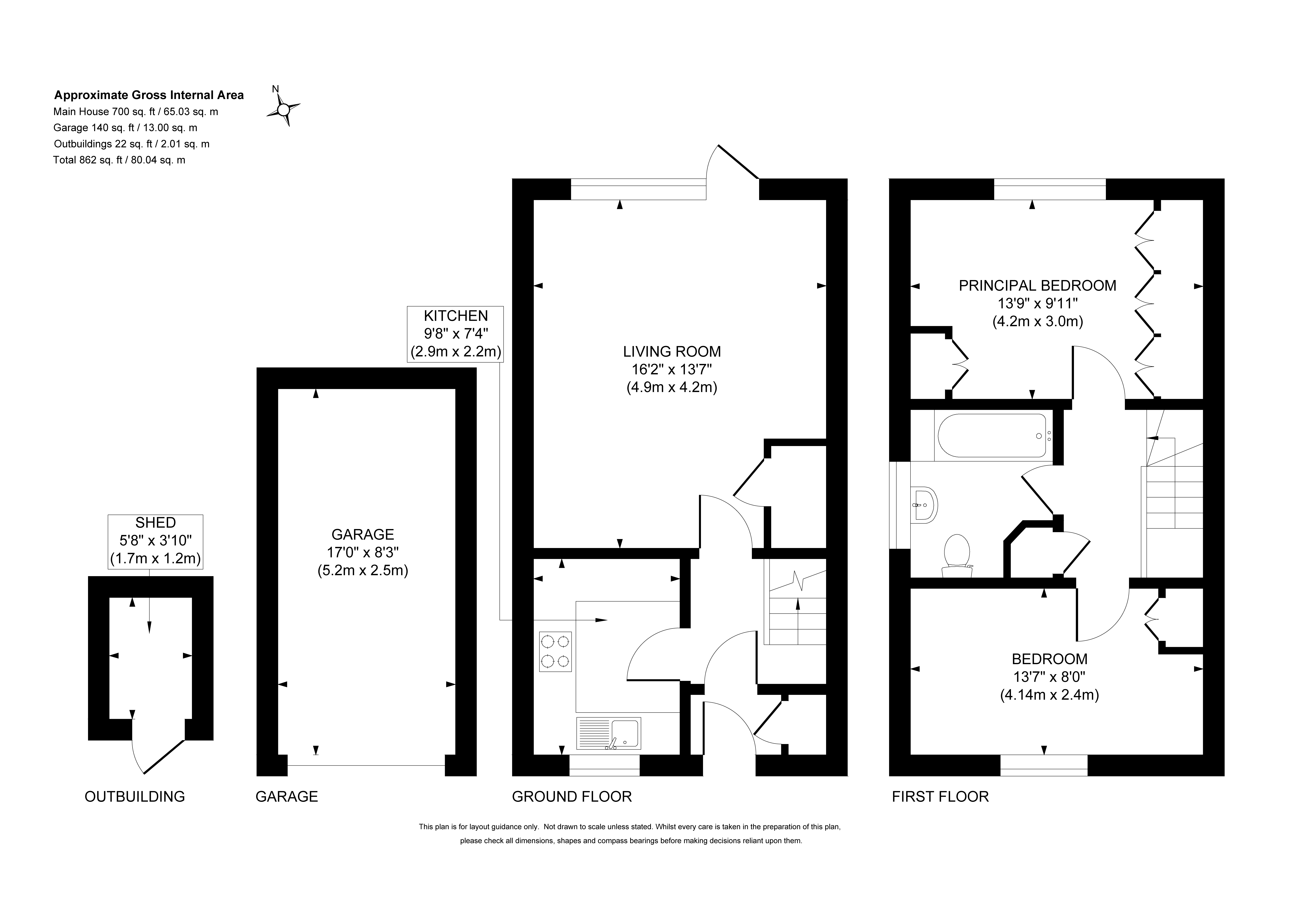
This charming property offers a well-considered layout that maximizes space and natural light, making it an ideal canvas for creating a beautiful home. Situated close to local amenities, it combines convenience with the potential for stylish, comfortable living.

The front garden sets a welcoming tone, with a tidy pathway leading to the entrance, framed by thoughtfully placed shrubs and hedging that add character and curb appeal.Inside, the kitchen features classic shaker-style wood cabinetry and a practical U-shaped configuration, offering both functionality and timeless charm. The living room is a standout space which is bright and inviting, with a dado rail adding visual interest and a brick fireplace providing a cozy focal point. Generous windows and a glass door flood the room with light and offer direct access to the garden, enhancing the sense of openness and connection to the outdoors. There is also useful storage in an understairs cupboard.Upstairs, the principal bedroom impresses with ample built-in storage while maintaining a spacious feel. The second bedroom is also well-proportioned, and both rooms are neutrally decorated to promote a calm and restful atmosphere. The bathroom is fitted with clean white fixtures and presents an opportunity for modernisation to suit personal taste.The rear garden is a true highlight, beautifully landscaped with raised planting beds, winding pathways, and a mature conifer tree that adds depth and greenery. Privacy is ensured by surrounding fencing, and a rear patio provides an ideal spot for alfresco dining or relaxing in the sun. With the added benefit of a garage located in a nearby block, this property combines practicality with charm in a highly desirable location.

The property is located within a small cul de sac in Merrow Park which is approximately 3 miles to the North East of Guildford Town Centre, which provides a wide range of shopping amenities together with two stations providing services to London. Within the development there is a Doctors Surgery, Pharmacy and a delicatessen for day to day needs with a Sainsbury s and Aldi supermarkets at nearby Burpham. The Spectrum Leisure complex offering a variety of activities is within 2 miles, as is access onto the A3 northbound carriageway leading to London and the M25 interchange which is gained from the outskirts of Burpham. Both St.Peter s Roman Catholic School and George Abbot School are located within one mile and Merrow Infant School is within walking distance.

Important Information

  • This is a Freehold property.

Property Ref: BUR200081

Share:

Similar Properties

Guildford, Surrey, GU1

3 Bedroom Semi-Detached House | Guide Price £425,000

This semi-detached home in the popular area of Merrow offers an exciting opportunity for buyers looking to create their...

Burpham Lane, Burpham, Guildford, GU4

2 Bedroom Apartment | Guide Price £425,000

Presenting a charming two-bedroom ground floor apartment located within a sought-after development in the heart of Burph...

Burpham, Guildford, Surrey, GU4

2 Bedroom Semi-Detached House | Guide Price £425,000

This semi-detached home in Burpham has been thoughtfully maintained and offers a warm, contemporary feel throughout.

Burpham, Guildford, Surrey, GU4

3 Bedroom Semi-Detached House | Guide Price £435,000

A three bedroom semi-detached house set in a residential close near to all local amenities, easy access to the A3 and be...

Guildford, Surrey, GU1

3 Bedroom Semi-Detached House | Guide Price £450,000

This beautifully presented 3 bedroom property on Great Goodwin Drive in Merrow offers a harmonious blend of modern livin...

Guildford, Surrey, GU1

3 Bedroom Semi-Detached House | Guide Price £450,000

This semi-detached house in Merrow offers well-balanced accommodation arranged over two floors, with a practical layout...

Seymours (Burpham)

Burpham, Surrey, GU1 1YP

01483 300667

How much is your home worth?

Use our short form to request a valuation of your property.

Request a Valuation

Mortgage Calculator

Amount Borrowed: £
Total Amount Repayable: £
Total Monthly Payment: £
©2026 The Guild of Property Professionals. All rights reserved. Terms and Conditions | Privacy Policy | Cookie Policy | Complaints Policy | Members Login
The Guild of Property Professionals Trading Address: 121 Park Lane, London W1K 7AG. GPEA Limited. Registered in England & Wales.  Company No: 02819824.  Registered Office Address: 2 St. Stephen's Court, St. Stephen's Road, Bournemouth, Dorset, England, BH2 6LA.  VAT Registration No: 576 8795 61
Book a Property Valuation Update Cookies Preferences