Guildford, Surrey, GU4

Guide Price
£400,000
SSTC
This property listing is now SSTC

2 Bedroom Terraced House for sale in Surrey

1 2 1
  • Freehold
  • Terraced
  • No onward chain
  • Recently refurbished
  • Modern kitchen and bathroom
  • Private garden
  • Garage
  • Ultrafast broadband available

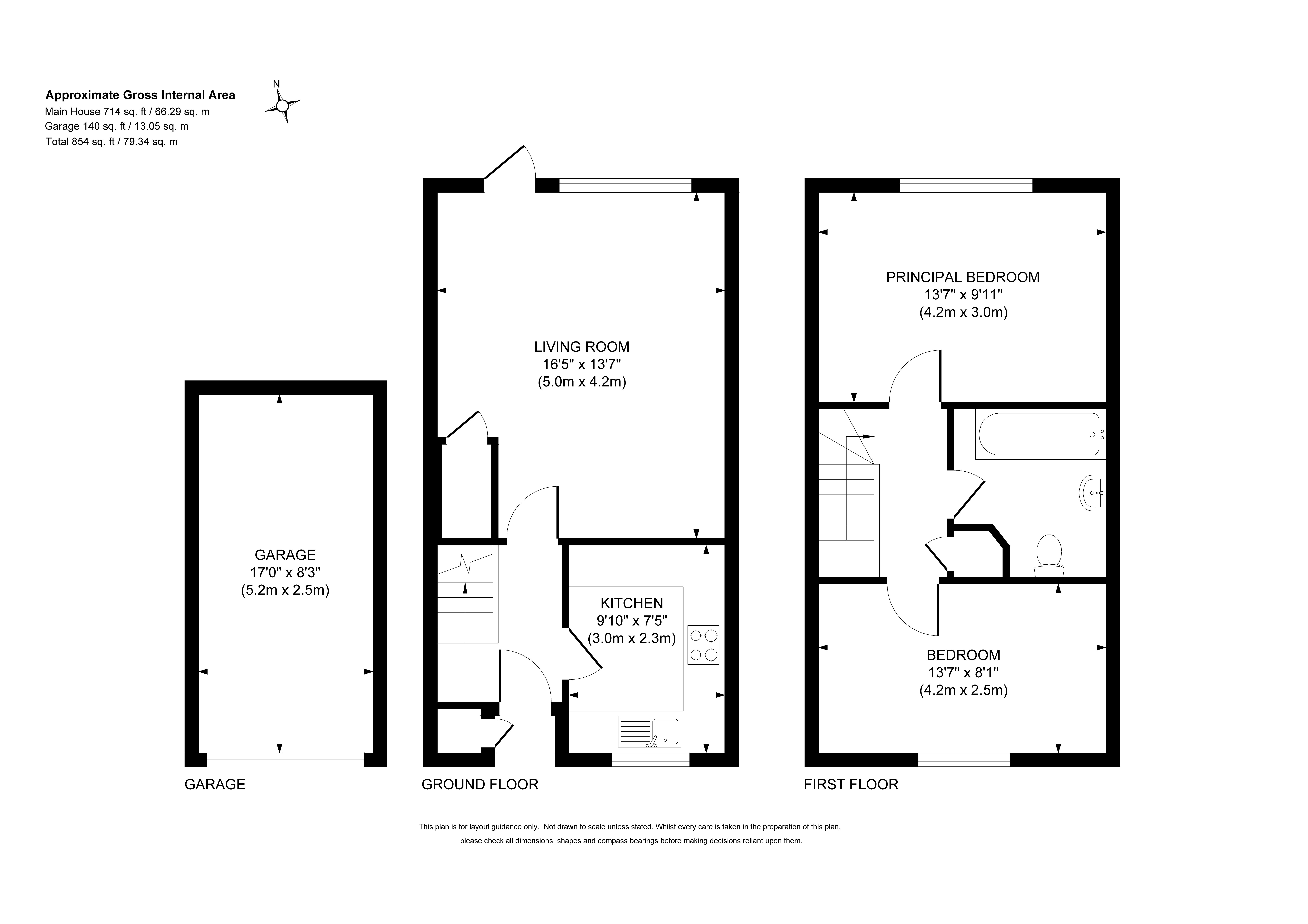
This terraced two-bedroom home in Merrow Park offers an excellent opportunity for first-time buyers or anyone seeking a property that's ready to move straight into, with the added benefits including no onward chain, nearby parking and a garage. Recently refurbished throughout, the house has a fresh, modern feel while maintaining a warm and welcoming atmosphere.On the ground floor, the living room is bright and spacious, finished in neutral décor that creates a clean and versatile space for relaxing or entertaining. From here, there is direct access to the rear garden, allowing for an easy flow between indoor and outdoor living. The kitchen is stylish and contemporary, featuring sleek white cabinetry, wood-effect worktops, and integrated appliances, providing both practicality and a modern finish.Upstairs, there are two well-proportioned bedrooms, both continuing the home's neutral decorative theme, making them easy to personalise. The bathroom has been updated in a modern style, with tiled walls, a patterned floor, and white fittings that create a crisp, polished look.Outside, the rear garden offers a private and enclosed setting, bordered by fencing and greenery. A patio area provides the perfect spot for outdoor dining or relaxing, while shrubs and hedging add texture and privacy. The gate at the rear of the garden leads to the garage block and additional unallocated parking. Altogether, this is a thoughtfully updated home in a popular location, ideal for buyers looking for comfort, convenience, and move-in-ready living.

The property is located within a small cul de sac in Merrow Park which is approximately 3 miles to the North East of Guildford Town Centre, which provides a wide range of shopping amenities together with two stations providing services to London. Within the development there is a Doctors Surgery, Pharmacy and a delicatessen for day to day needs with a Sainsbury s and Aldi supermarkets at nearby Burpham. The Spectrum Leisure complex offering a variety of activities is within 2 miles, as is access onto the A3 northbound carriageway leading to London and the M25 interchange which is gained from the outskirts of Burpham. Both St.Peter s Roman Catholic School and George Abbot School are located within one mile and Merrow Infant School is within walking distance.

Important Information

  • This is a Freehold property.

Property Ref: GFD030690

Share:

Similar Properties

Burpham, Guildford, Surrey, GU4

2 Bedroom Terraced House | Offers Over £400,000

This two double-bedroom freehold house has been extended and refurbished to provide well-presented, spacious accommodati...

Guildford, Surrey, GU4

3 Bedroom Terraced House | Offers in excess of £400,000

This charming terraced house in Merrow Park offers a wonderful opportunity for buyers seeking a home with character and...

Guildford, Surrey, GU4

2 Bedroom Terraced House | Offers in excess of £400,000

This well-presented two-bedroom home offers a contemporary and welcoming interior across two floors. The ground floor fe...

Burpham, Guildford, Surrey, GU4

2 Bedroom Semi-Detached House | Guide Price £425,000

This semi-detached home in Burpham has been thoughtfully maintained and offers a warm, contemporary feel throughout.

Burpham Lane, Burpham, Guildford, GU4

2 Bedroom Apartment | Guide Price £425,000

Presenting a charming two-bedroom ground floor apartment located within a sought-after development in the heart of Burph...

Guildford, Surrey, GU1

3 Bedroom Semi-Detached House | Guide Price £425,000

This semi-detached home in the popular area of Merrow offers an exciting opportunity for buyers looking to create their...

Seymours (Burpham)

Burpham, Surrey, GU1 1YP

01483 300667

How much is your home worth?

Use our short form to request a valuation of your property.

Request a Valuation

Mortgage Calculator

Amount Borrowed: £
Total Amount Repayable: £
Total Monthly Payment: £
©2026 The Guild of Property Professionals. All rights reserved. Terms and Conditions | Privacy Policy | Cookie Policy | Complaints Policy | Members Login
The Guild of Property Professionals Trading Address: 121 Park Lane, London W1K 7AG. GPEA Limited. Registered in England & Wales.  Company No: 02819824.  Registered Office Address: 2 St. Stephen's Court, St. Stephen's Road, Bournemouth, Dorset, England, BH2 6LA.  VAT Registration No: 576 8795 61
Book a Property Valuation Update Cookies Preferences