West Clandon, Surrey, GU4

Guide Price
£1,600,000
SSTC
This property listing is now SSTC

5 Bedroom Detached House for sale in Surrey

2 5 3
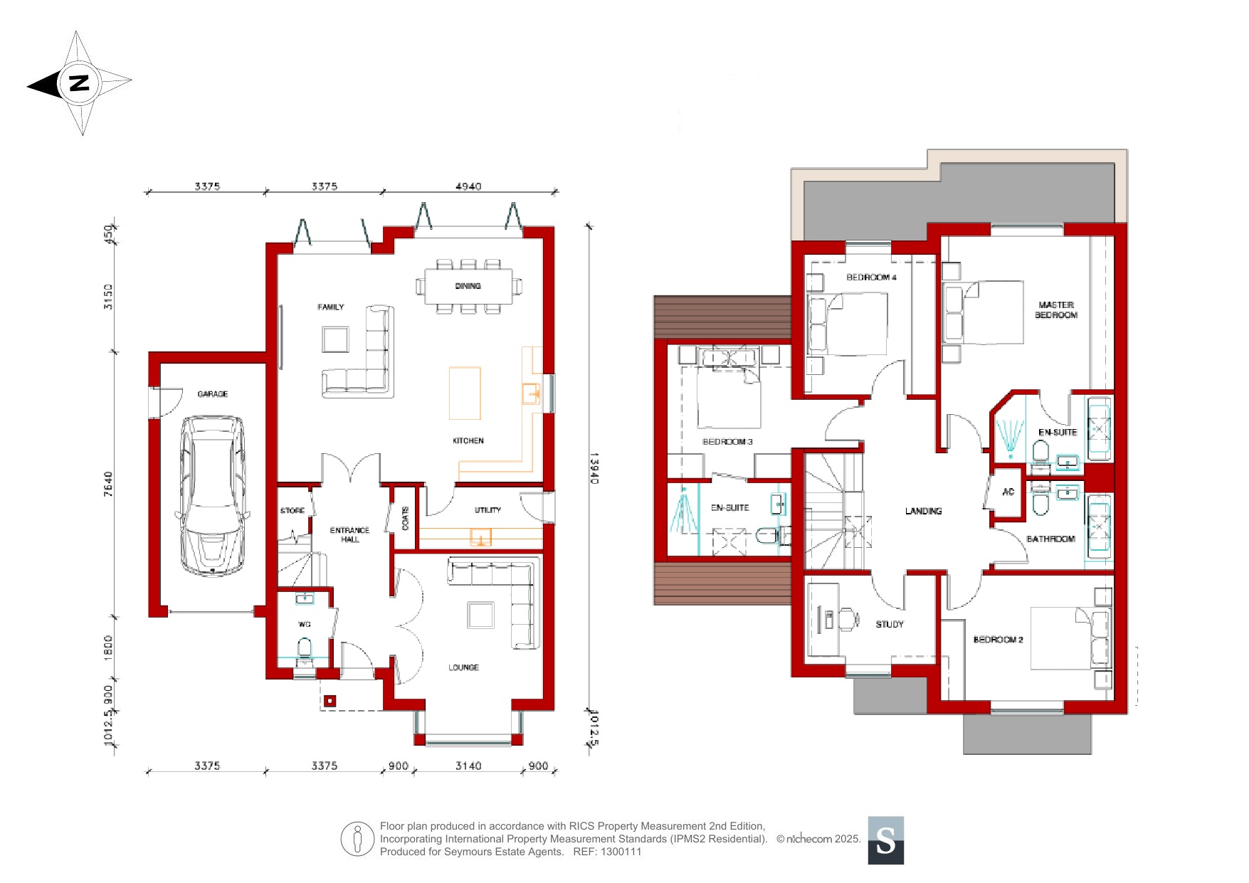
  • Stunning Detached House *
  • Five Bedrooms/Duel Master Suites
  • Kitchen/Dining/Family Room
  • Utility Room
  • Separate Reception Room
  • Cloakroom
  • Gallery Landing
  • Generous Rear Garden
  • Driveway Parking
  • PV Panels

Set within the highly desirable village of West Clandon, this outstanding newly built detached home on Bennett Way offers an exceptional combination of contemporary style, well-planned living space, and a picturesque village setting.

The interior has been carefully designed with modern family life in mind. The centrepiece of the home is the expansive open-plan kitchen, dining and family area, bathed in natural light and finished to a high specification. Sleek fitted units, integrated Miele appliances and generous proportions make this space ideal for both relaxed everyday living and entertaining. A separate utility room enhances practicality and helps keep the main living areas beautifully organised. To the front of the house, a separate reception room with a large bay window provides a peaceful retreat, perfect as a formal lounge, snug or media room.

Upstairs, five double bedrooms are arranged off the impressive galleried landing. Both the principal bedroom and stylish guest suite, benefit from ultra-modern ensuite shower rooms, while the remaining bedrooms are served by the contemporary family bathroom. All the bathrooms include heated mirrors.

Outside the property is equally impressive. A private driveway provides off-street parking for several vehicles, along with a garage and an electric car charger. The generous rear garden is laid mainly to lawn and bordered by mature planting, offering a private and attractive setting for outdoor entertaining, children’s play or simply enjoying the surroundings.

This superb energy-efficient home, features underfloor heating throughout, PV panels, and an air source heat pump, offering a rare opportunity to enjoy modern living in one of Surrey’s most sought-after villages.

West Clandon is a popular village that has appeared in the Doomsday Book listed as Clanedum. There is a legend that a dragon once blocked the route to West Clandon and in commemoration, there is a dragon cut into the chalk face of a quarry. The village has two pubs, a Saxon church, a village school as well as a British Legion, and a garden centre at Clandon Park (National Trust property and the former home of the Earl of Onslow). Local shops can be found at Ripley, Send, and Merrow with a supermarket at Burpham.

Guildford Town Centre for more comprehensive facilities lies about 4 miles to the southeast. Rail services are available from West Clandon to London Waterloo in about 50 mins or the same at Woking for about 22 mins The A3 is a few minutes’ drive away and links to J10 of the M25 for links to London & Heathrow or anticlockwise for Gatwick which is about 20 miles distance. The area is surrounded by National Trust and farmland which is ideal for walking, riding, and cycling with stunning views from the North Downs to the South Downs can be found at Newlands Corner.

Important Information

  • This is a Freehold property.

Property Ref: RIP250101

Share:

Similar Properties

Send, Surrey, GU23

5 Bedroom Detached House | £1,600,000

Set back from the road in the picturesque semi-rural village of Send, this beautifully presented and deceptively spaciou...

West Clandon, Surrey, GU4

5 Bedroom Detached House | Offers in region of £1,500,000

Located on Clandon Road and approached via a gravel driveway sits Little Paddock. Surrounded by beautiful, landscaped ga...

West Clandon, Surrey, GU4

4 Bedroom Detached House | Guide Price £1,495,000

Nestled in the sought-after village of West Clandon, this exceptional detached new build on Bennett Way offers the perfe...

West Clandon, Surrey, GU4

5 Bedroom Detached House | Guide Price £2,175,000

This exceptional and beautifully presented detached family home, has been thoughtfully designed to combine modern elegan...

Seymours Prestige Homes (Ripley)

Ripley, Surrey, GU23 6BD

01483 211644

How much is your home worth?

Use our short form to request a valuation of your property.

Request a Valuation

Mortgage Calculator

Amount Borrowed: £
Total Amount Repayable: £
Total Monthly Payment: £
©2026 The Guild of Property Professionals. All rights reserved. Terms and Conditions | Privacy Policy | Cookie Policy | Complaints Policy | Members Login
The Guild of Property Professionals Trading Address: 121 Park Lane, London W1K 7AG. GPEA Limited. Registered in England & Wales.  Company No: 02819824.  Registered Office Address: 2 St. Stephen's Court, St. Stephen's Road, Bournemouth, Dorset, England, BH2 6LA.  VAT Registration No: 576 8795 61
Book a Property Valuation Update Cookies Preferences