Guildford, Surrey, GU4

Guide Price
£850,000
SSTC
This property listing is now SSTC

4 Bedroom Detached House for sale in Surrey

1 4 3

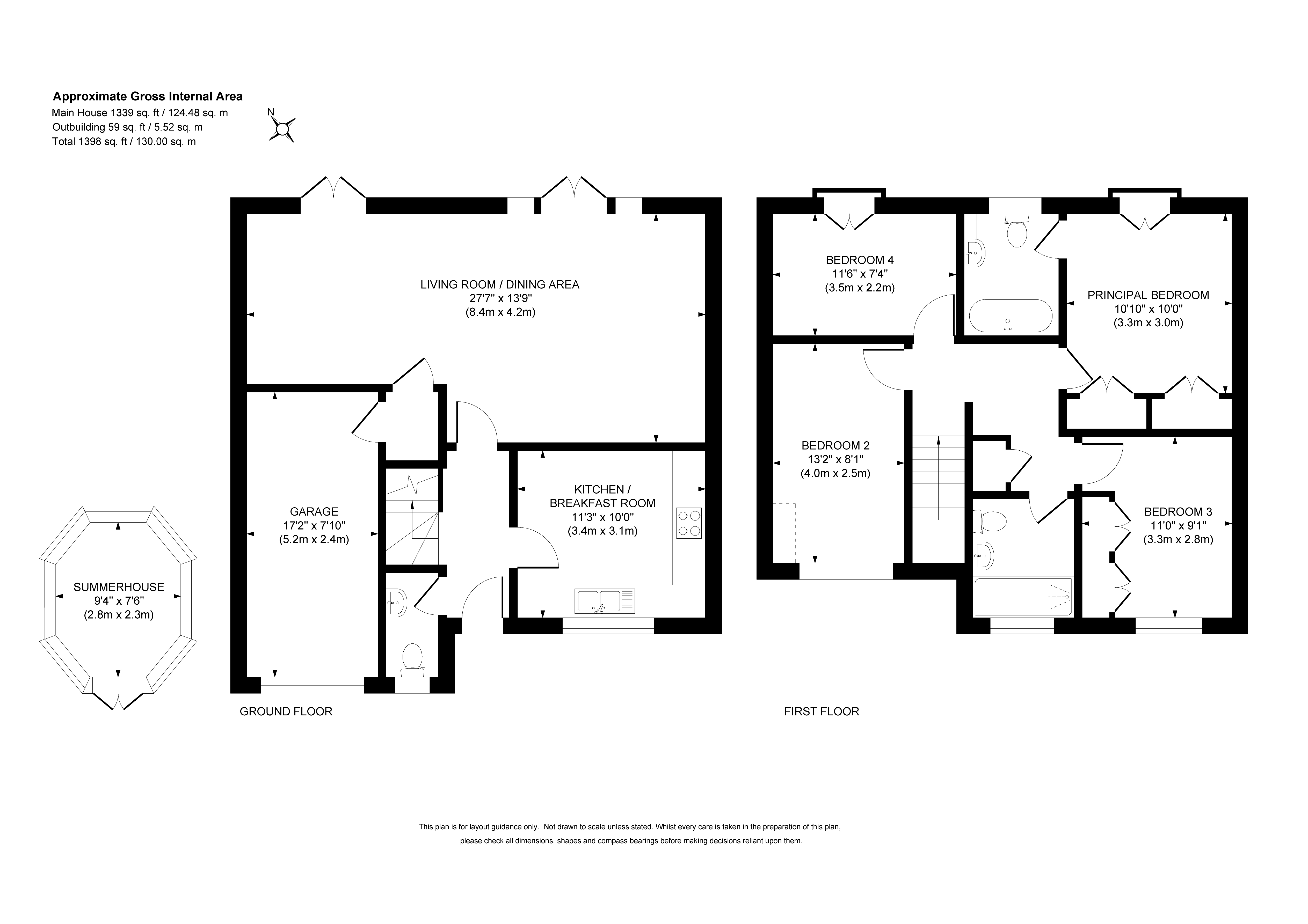
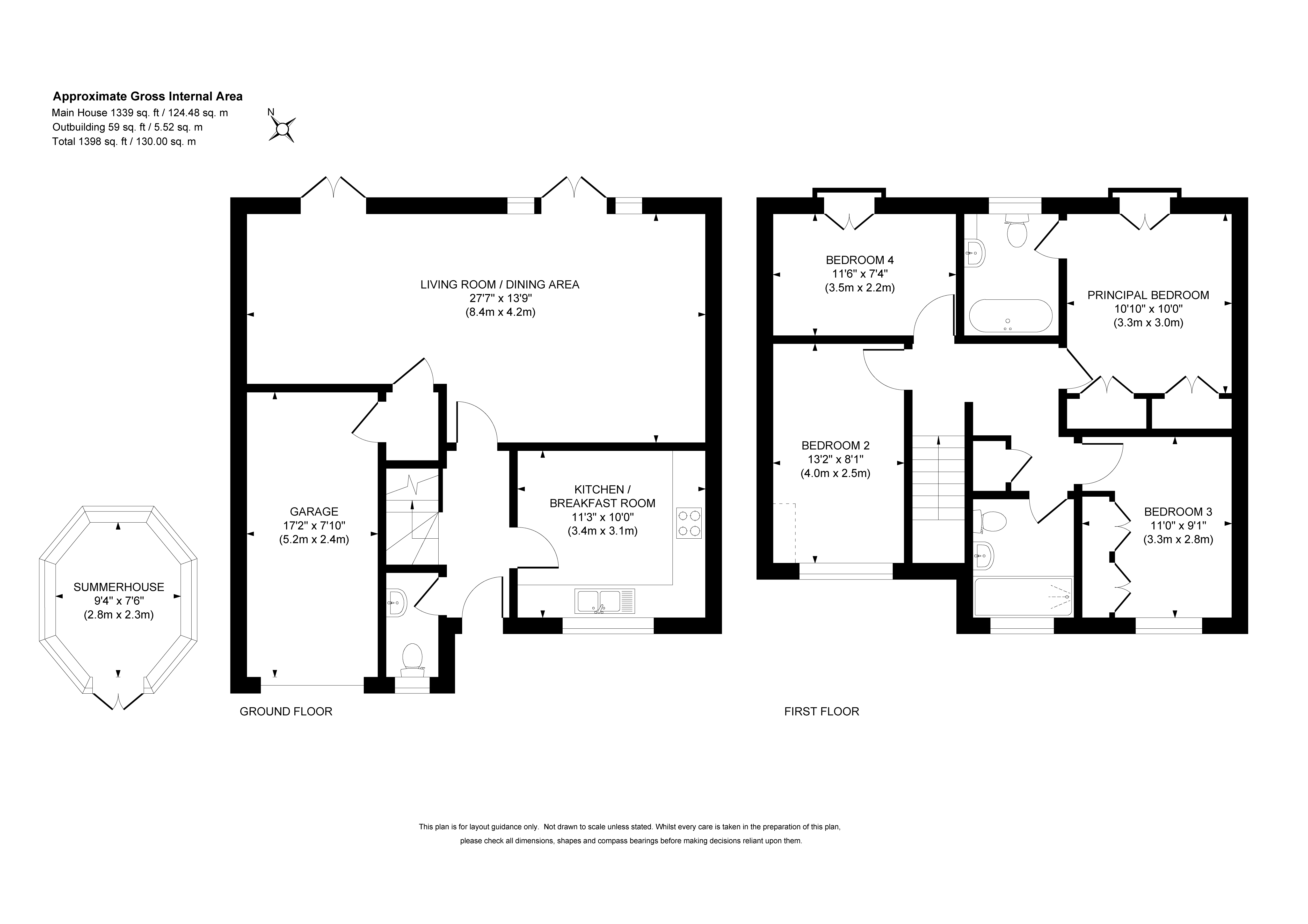
A beautifully presented four-bedroom detached family home, set within a quiet residential cul-de-sac in the highly sought-after Burpham area of Guildford. Offering well-balanced accommodation, a generous rear garden, garage and driveway parking, this attractive home is ideal for growing families and those seeking space both inside and out.The ground floor is centred around a spacious open-plan living and dining room, extending to over 27 feet in length and flooded with natural light. French doors open directly onto the rear terrace, creating an excellent space for entertaining and family living. The modern kitchen/breakfast room is well appointed with ample storage, integrated appliances and space for casual dining, while a useful downstairs cloakroom completes the ground floor accommodation. Internal access to the integral garage adds further practicality.Upstairs, the property offers four well-proportioned bedrooms, including a comfortable principal bedroom with a generous en-suite bathroom featuring a bath, along with three further versatile rooms ideal for children, guests or home working. The contemporary family bathroom is designed as a wet room, serving the remainder of the first floor.Externally, the home enjoys a generous and private rear garden, mainly laid to lawn with a paved seating area perfect for outdoor dining. A charming timber summerhouse provides an ideal home office, studio or relaxation space. To the front, the property benefits from off-street driveway parking and access to the garage.Manston Road is conveniently located for excellent local schools, nearby shops and amenities, and easy access to Guildford town centre, the A3 and mainline train station offering fast routes into London.Early viewing is highly recommended.

Property Ref: BUR260005

Share:

Similar Properties

Guildford, Surrey, GU4

5 Bedroom Link Detached House | Guide Price £825,000

This impressive property is situated in the sought-after Great Oaks Park area of Guildford, offering excellent access to...

Guildford, Surrey, GU1

4 Bedroom House | Guide Price £800,000

This attractive end of terrace home is beautifully presented throughout and offers a modern lifestyle with the added ben...

Jacobs Well, Guildford, Surrey, GU4

3 Bedroom Detached House | Guide Price £750,000

This modern chalet bungalow combines practicality with charm, offering a comfortable home with plenty of space both insi...

Burpham, Guildford, Surrey, GU4

4 Bedroom Detached House | Guide Price £875,000

Situated on a good-sized corner plot, this four-bedroom detached family home offers three reception rooms, a master bedr...

Merrow, Guildford, Surrey, GU4

4 Bedroom Semi-Detached House | Guide Price £875,000

Situated in this private residential road within the centre of Merrow Village, enjoying views onto a pretty communal gre...

Burpham, Guildford, Surrey, GU4

5 Bedroom House | Guide Price £900,000

Nestled in the sought-after Burpham area of Guildford, this impressive five-bedroom detached house offers an abundance o...

Seymours (Burpham)

Burpham, Surrey, GU1 1YP

01483 300667

How much is your home worth?

Use our short form to request a valuation of your property.

Request a Valuation

Mortgage Calculator

Amount Borrowed: £
Total Amount Repayable: £
Total Monthly Payment: £
©2026 The Guild of Property Professionals. All rights reserved. Terms and Conditions | Privacy Policy | Cookie Policy | Complaints Policy | Members Login
The Guild of Property Professionals Trading Address: 121 Park Lane, London W1K 7AG. GPEA Limited. Registered in England & Wales.  Company No: 02819824.  Registered Office Address: 2 St. Stephen's Court, St. Stephen's Road, Bournemouth, Dorset, England, BH2 6LA.  VAT Registration No: 576 8795 61
Book a Property Valuation Update Cookies Preferences