Godalming, Surrey, GU7

Guide Price
£535,000
SSTC
This property listing is now SSTC

3 Bedroom Semi-Detached House for sale in Surrey

2 3 1
  • Attractive late Victorian semi-detached home
  • Quiet cul-de-sac position near central Godalming
  • Four bedrooms and two bathrooms over three upper floors
  • Large sitting/dining room with fireplace and bay window
  • Traditional kitchen/breakfast room with orangery and garden access
  • Versatile lower ground floor basement
  • Tiered rear garden with patio and lawn
  • Period features including fireplaces and sash-style windows
  • Conveniently located for Godalming mainline station and high street amenities

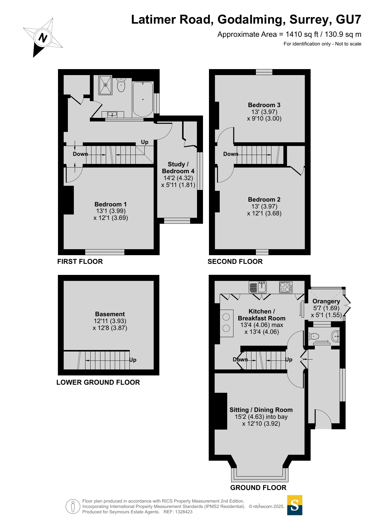
Tucked quietly away just moments from the heart of Godalming, this attractive period property offers generous family accommodation arranged across four floors. With its classic bay windows, mellow Bargate stone elevations and tile-hung detailing, it's a fine example of local late Victorian architecture.

Inside, the property presents an exciting opportunity for modernisation, with plenty of scope to enhance and personalise throughout. The welcoming ground floor centres around a full-width kitchen/breakfast room with a traditional solid fuel aga and space for casual dining. Terracotta-style flooring complements the cabinetry, and French doors lead out to a charming orangery and onward to the side garden – ideal for everyday family life and summer entertaining.

A generously sized sitting/dining room with an elegant bay window and a fireplace with tiled surround offers excellent space to relax or host guests. Throughout the home, many original details remain, providing a characterful foundation for renovation and refurbishment.

On the first floor, a spacious principal bedroom enjoys elevated views and its own feature fireplace. A family bathroom serves this level, while an additional study or occasional fourth bedroom adds useful flexibility. Two further well-proportioned bedrooms occupy the top floor, both filled with natural light.

The property also benefits from a basement space accessed via stairs at the rear of the kitchen, offering additional storage, workshop or hobby space.

Outside
Immediately to the side of the property is its own tiered garden bordered by mature trees and planting. This raised area benefits from having a patio area that is ideal for al fresco dining bordered by a small area laid to lawn.

Beyond the neighbour's property and garden (of 11a Latimer Road) is a further area of private garden/land under the title and ownership of 11 Latimer Road. Including the banked area this measures about 50ft x 30ft, is south facing and adds to the outdoor space. This could be ideal for children to play in, BBQ and certainly provides space to work from home from, subject to the necessary consents.

To the front double opening metal gates lead to a small and enclosed hardstand with small adjoining carport / store. There is also a cottage-style flower border garden which sets the tone beautifully for this attractive bargate stone cottage.

Please be aware that the attached neighbour (11a) behind 11 Latimer Road benefits from having pedestrian access rights over the front hardstand and along the side pathway to their Freehold property and gardens.

Of further note. Practical modern additions include a newly installed electric/smart meter and a water meter, ensuring efficiency and ease of management.

Important Information

  • This is a Freehold property.

Property Ref: 417898_GOD250353

Share:

Similar Properties

Godalming, GU7

3 Bedroom Semi-Detached House | Guide Price £535,000

Showhome open by appointment only.**AVAILABLE WITH £10,000 CONTRIBUTION TOWARDS STAMP DUTY**If you are in search of a co...

Milford, Surrey, GU8

3 Bedroom Semi-Detached House | Guide Price £535,000

An attractive post war built three bedroom semi detached family house situated in a rarely available cul-de-sac just mom...

Godalming, Surrey, GU7

3 Bedroom Detached House | Guide Price £535,000

Beautifully presented detached family home with landscaped gardens. Benefiting from carport and garage parking this exce...

Witley, Godalming, Surrey, GU8

3 Bedroom Semi-Detached House | Guide Price £540,000

Set along a leafy residential lane in the heart of Witley, this charming semi-detached three-bedroom home offers a wonde...

Godalming, Surrey, GU7

3 Bedroom Semi-Detached House | Guide Price £550,000

From the moment you enter the tranquil front garden, the period charm and character of this picturesque cottage are imme...

Godalming, Surrey, GU7

3 Bedroom Detached House | Guide Price £550,000

Chain free, detached and opening onto a walled rear garden, this 1930s home is ready to be refreshed and enhanced into a...

Seymours (Godalming)

Godalming, Surrey, GU7 1DJ

01483 420555

How much is your home worth?

Use our short form to request a valuation of your property.

Request a Valuation

Mortgage Calculator

Amount Borrowed: £
Total Amount Repayable: £
Total Monthly Payment: £
©2026 The Guild of Property Professionals. All rights reserved. Terms and Conditions | Privacy Policy | Cookie Policy | Complaints Policy | Members Login
The Guild of Property Professionals Trading Address: 121 Park Lane, London W1K 7AG. GPEA Limited. Registered in England & Wales.  Company No: 02819824.  Registered Office Address: 2 St. Stephen's Court, St. Stephen's Road, Bournemouth, Dorset, England, BH2 6LA.  VAT Registration No: 576 8795 61
Book a Property Valuation Update Cookies Preferences